Sfeervolle, ruime en instapklare eengezinswoning met energielabel A.
In een rustige, kindvriendelijke straat in Hazerswoude-Rijndijk staat deze verzorgde eengezinswoning met energielabel A klaar om nieuwe bewoners te verwelkomen. De woning beschikt over een royale woonkamer met moderne open keuken, drie slaapkamers en een ruime badkamer. De tuin met vrijstaande berging is netjes verzorgd en ligt op het heerlijke zuiden.
Bijzonderheden:
• Bouwjaar
• Energielabel A
• Woonoppervlakte ca. 115 m²
• Volledig kunststof kozijnen met dubbel glas
• Airco’s
• Volledig geïsoleerd
• Royale woonkamer met open keuken
• Uitbouw met sedumsdak aan de achterzijde met grote schuifpui en zonnewering
• Nette tuin op het Westen
• 4 slaapkamers (met mogelijkheid tot 5)
• Moderne badkamer met ligbad en inloopdouche
• Wasruimte
• Ruime 2de etage met aparte werkkamer
• 11 zonnepanelen (2021)
• Kozijnen voorgevel (2025)
• Dakkapel voorzijde (2025)
• Dichtbij dorpskern
• Goede auto- en openbaarvervoersverbindingen
Ligging
De Valeriusstraat bevindt zich in een rustige en groene woonwijk met in de directe omgeving diverse speelpleintjes. Binnen enkele minuten wandelen bereikt u het centrum van Hazerswoude-Rijndijk, waar u terecht kunt voor dagelijkse boodschappen, verswinkels, horecagelegenheden en andere voorzieningen. Ook basisscholen en kinderopvang liggen op korte afstand, evenals diverse sportverenigingen en recreatiemogelijkheden. Denk aan voetbal, tennis, fitness en mooie wandel- en fietsroutes door de polders en langs de Oude Rijn.
De bereikbaarheid is uitstekend: bushaltes zijn vlakbij en met de auto rijdt u zo naar Leiden, Alphen aan den Rijn of Zoetermeer. De N11 zorgt voor een snelle verbinding richting de A4 en A12, waardoor Schiphol, Amsterdam, Rotterdam, Den Haag en Utrecht goed en snel bereikbaar zijn.
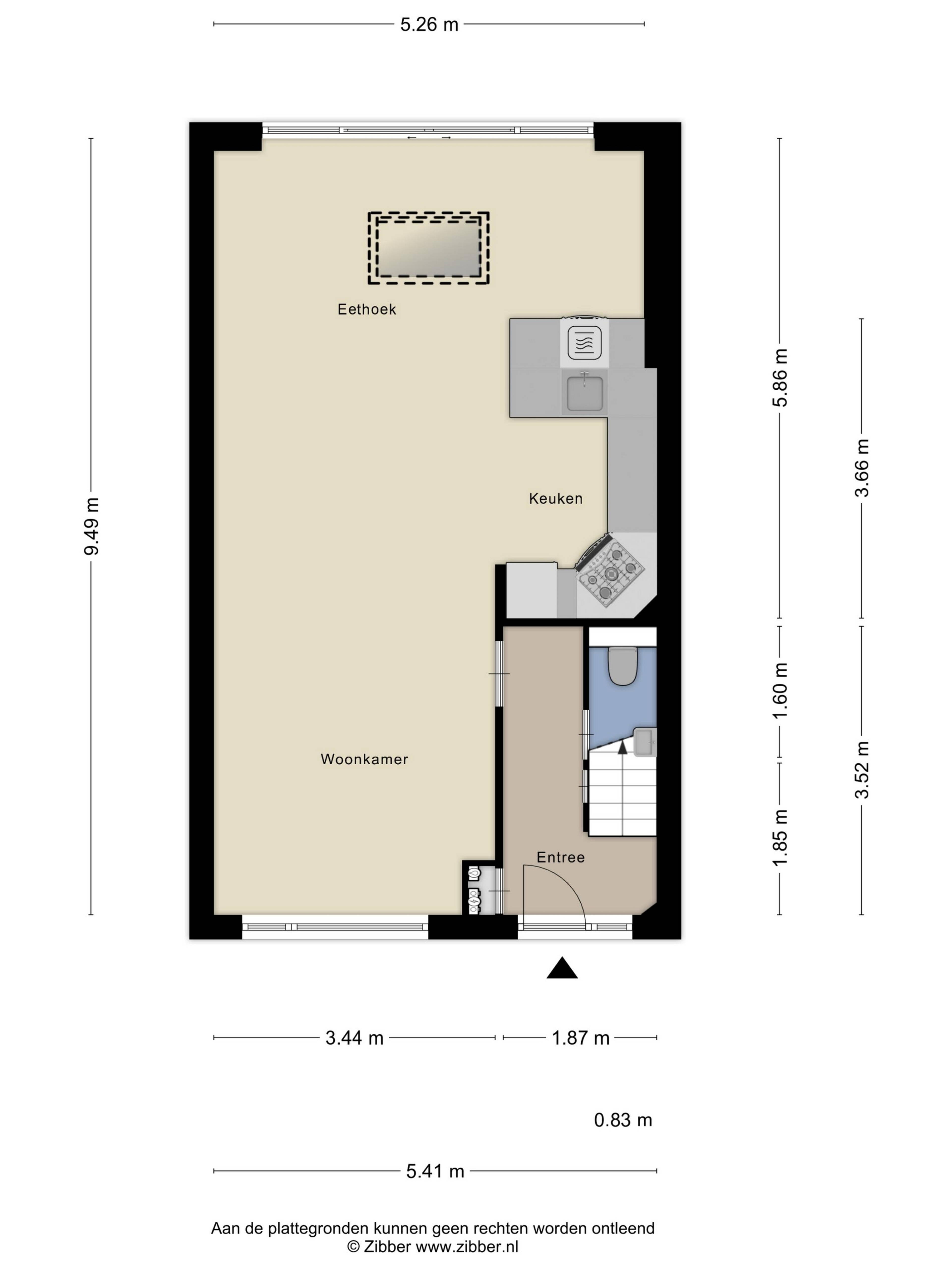
Indeling
Begane grond
Via de ruime voortuin komt u bij de entree, waar zich de moderne meterkast, het toilet met fonteintje en de trap naar de bovenverdiepingen bevinden.
De royale, uitgebouwde woonkamer profiteert van een bijzonder aangename lichtinval dankzij de grote ramen, de schuifpui en de lichtkoepel. Centraal in de woning ligt de ruim opgezette open keuken, uitgerust met diverse inbouwapparatuur en volop werk- en opbergruimte. Aan de voorzijde bevindt zich het zitgedeelte, waar u eenvoudig een comfortabele zithoek kunt creëren. Daarnaast biedt de woonkamer voldoende ruimte voor een grote eettafel. Ook vindt u hier een airco.
Eerste verdieping
Op deze verdieping bevinden zich twee ruime slaapkamers en de royale badkamer. De slaapkamers aan zowel de voor- als achterzijde zijn voorzien van grote raamkozijnen, wat zorgt voor een prettige lichtinval. In beide kamers is voldoende ruimte voor een groot bed en een kledingkast.
De verzorgde badkamer beschikt over een ligbad, een comfortabele douche en een dubbel wastafelmeubel. Het raam zorgt voor natuurlijke lichtinval en ventilatie.
In de voormalige badkamer is nu een praktische wasruimte gecreëerd, met aansluitingen voor zowel de wasmachine als de droger.
Tweede etage
Dankzij de grote dubbele dakkapel biedt de tweede etage verrassend veel ruimte, waardoor deze verdieping perfect geschikt is als master bedroom. Uiteraard kunt u hier ook eenvoudig een extra slaapkamer realiseren. De grote raamkozijnen zorgen voor volop natuurlijk licht en er is voldoende plaats voor een ruim bed en extra opbergruimte. Ook vindt u hier een airco.
Via een praktische vlizotrap heeft u toegang tot de vliering, ideaal voor het opbergen van spullen die u niet dagelijks nodig heeft.
Daarnaast is er op deze verdieping nog een extra kamer aanwezig, die zich uitstekend leent als werkruimte, hobbykamer of slaapkamer.
Buitenruimte
De achtertuin is verzorgd aangelegd, biedt volop privacy en beschikt over een leuke veranda: een ideale plek om lekker te zitten en te ontspannen. Ook heeft u hier de beschikking over een ruime berging en een achterom.
Ben je op zoek naar een duurzame, sfeervolle en instapklare woning op een fijne locatie? Dan is Valeriusstraat 21 zeker een bezichtiging waard!
Deze informatie is door ons met de nodige zorgvuldigheid samengesteld. Wij aanvaarden echter geen aansprakelijkheid voor enige onvolledigheid, onjuistheid of anderszins, dan wel de gevolgen daarvan. Voor woningen ouder dan 30 jaar hanteren wij standaard een asbest- en ouderdomsclausule.