English text, see below
Let op: Eigendom situatie betreft volledig eigendom en dus geen erfpacht!
Op een unieke locatie, net aan de rand van het (historische) centrum van Leiden, vindt u dit moderne en zeer goed onderhouden 3 kamer hoekappartement met o.a. 2 balkons en een ruime berging. Het appartementencomplex, Den Stadsjonker, stamt uit 1999 en is o.a. voorzien van een lift. Door de centrale ligging, in het Haagwegkwartier, zijn onder meer het Centraal station, meerdere ziekenhuizen (o.a. LUMC), het Bio Science park, diverse winkelstraten, scholen en opvangmogelijkheden, alsmede sportfaciliteiten op loop- of fietsafstand.
Via de diverse uitvalswegen (A4, N206, A44) bent u snel op weg naar Schiphol, Amsterdam of alle andere grote steden. Ook voor het strand of bos hoeft u niet ver te rijden. Binnen 20 minuten kunt u een leuke wandeling maken.
Indeling:
Begane grond: Gezamenlijke entree met brievenbussen, bellentableau, trappenhuis en toegang tot de berging in de onderbouw.
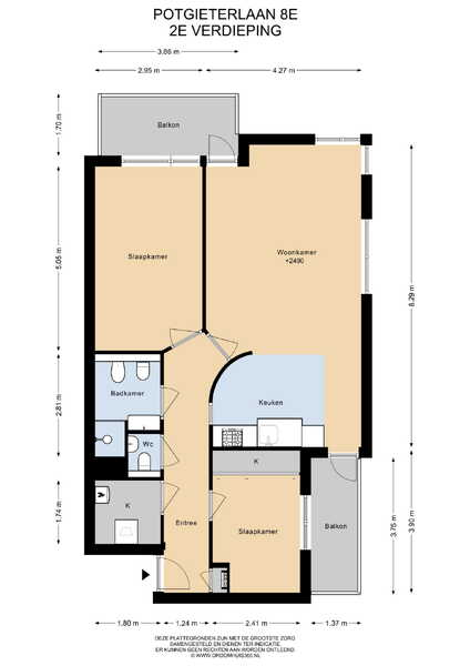
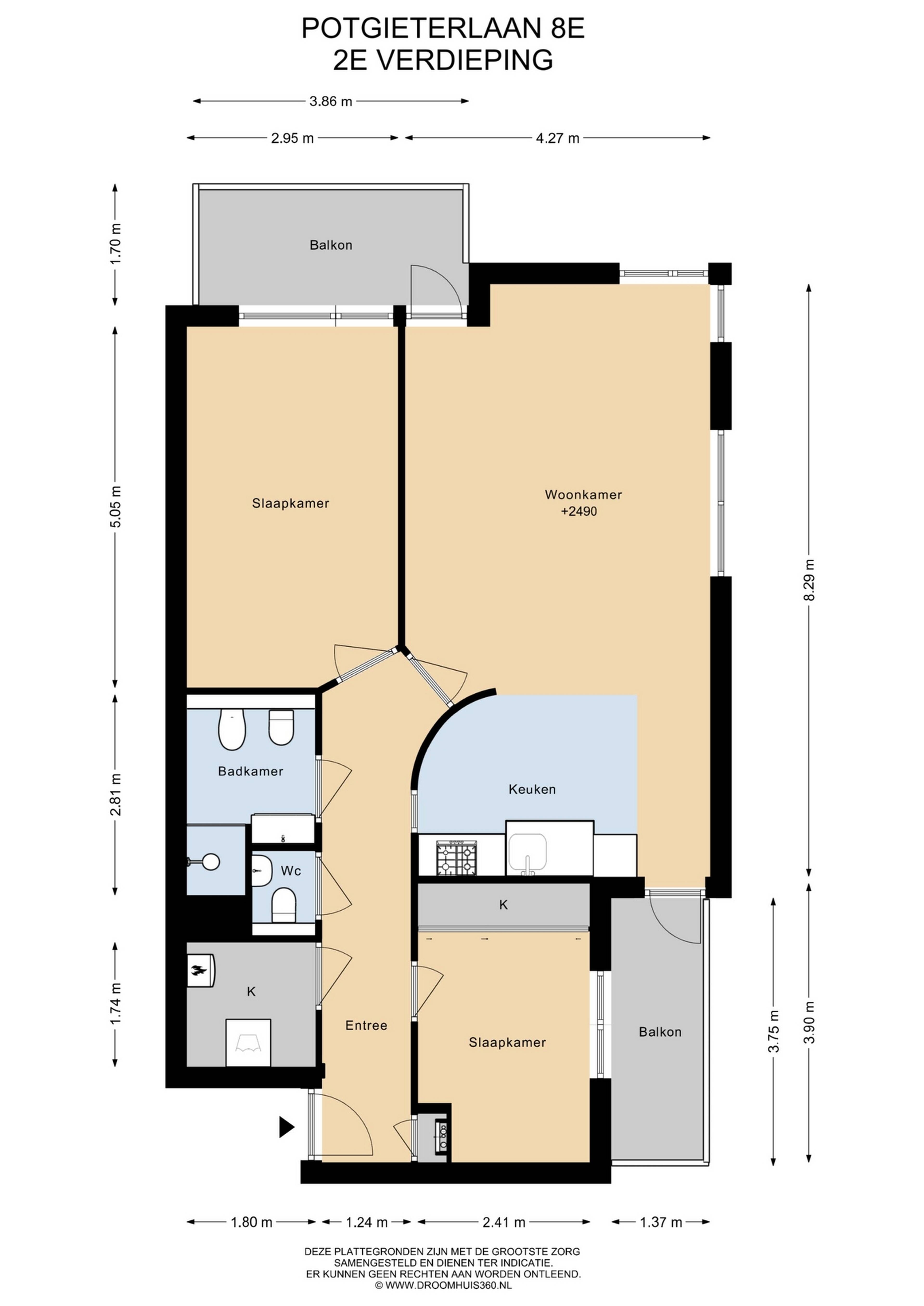
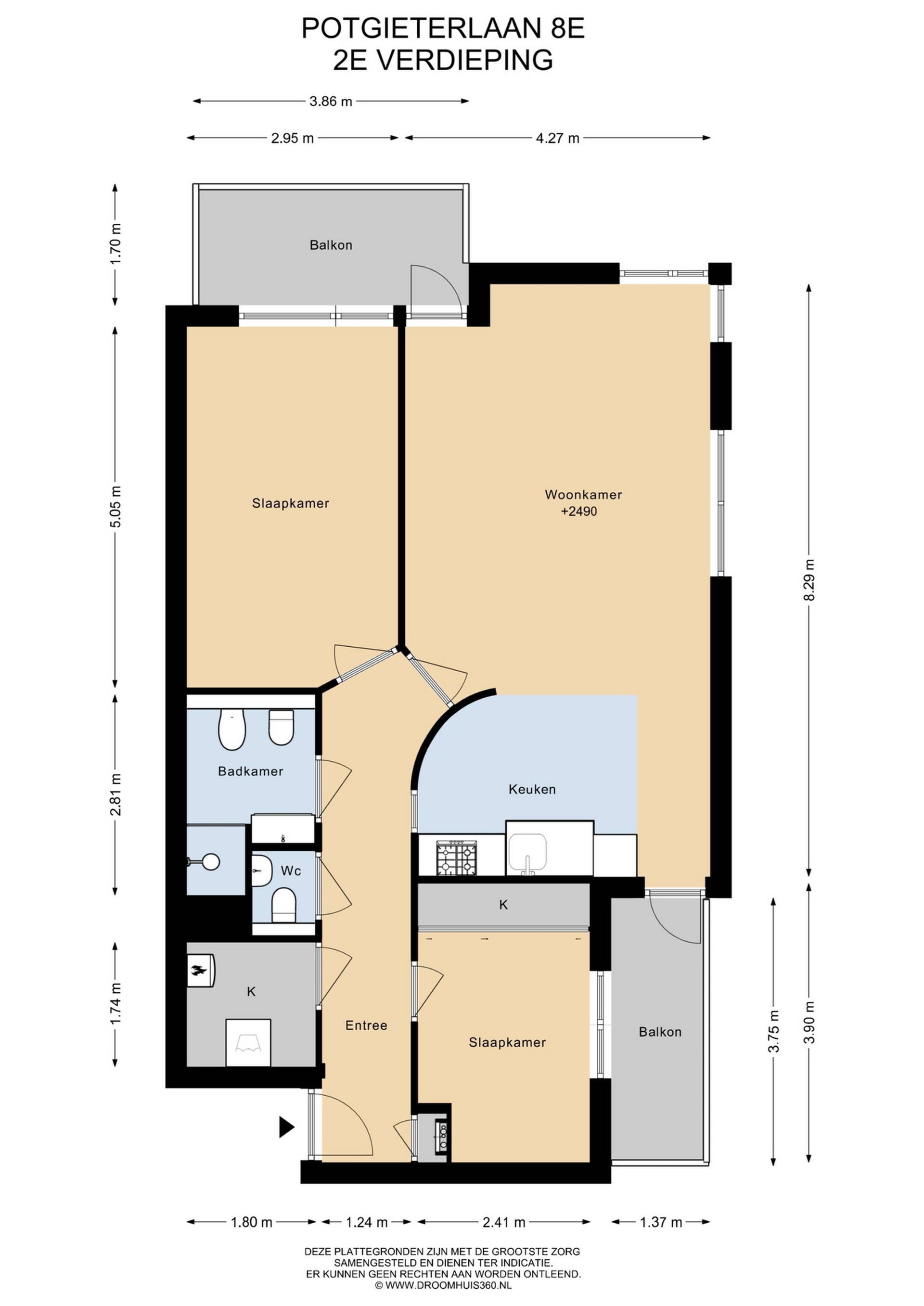
Tweede verdieping: Entree, hal met meterkast, wasruimte/berging met opstelling cv-ketel, modern toilet met fonteintje, de badkamer en toegang tot de woonkamer met open keuken. De ruime en zeer lichte woonkamer heeft een fraaie houtenvloer, glad gestuukte muren en geeft toegang tot de twee balkons (oosten en zuiden gericht).
De open keuken heeft een natuurstenen aanrechtblad en is uiteraard voorzien van diverse (inbouw) apparatuur zoals een oven, vaatwasser, 4 pits gasfornuis met afzuigkap en een koelkast. Bij de keuken is een gezellig (ontbijt)barretje gecreëerd, leuk om te ontbijten of even een kopje koffie te nuttigen.
Verder zijn er 2 slaapkamers en een moderne luxe badkamer met ruime inloopdouche, een bidet, (sani-broyeur) toilet, wastafelmeubel met spiegelkast en een design radiator.
De woning is volledig geïsoleerd, verkeert in een zeer goede staat van onderhoud en is direct te betrekken.
Goed om te weten:
- Bouwjaar: 1999
- Gebruiksoppervlakte wonen: 78 m2
- Gebouw gebonden buitenruimte (balkons): 12 m2
- Inhoud appartement: ca. 250 m3
- Op loopafstand van de Leidse binnenstad
- Energielabel A
- Verwarming d.m.v. eigen CV
- Actieve vereniging van eigenaars: service kosten ca. € 141,- per maand
- Parkeren met bewonersvergunning, ca € 60,- per jaar
- Gunstig gelegen t.o.v. uitvalswegen (N206, A44, A4)
- Oplevering: In overleg, beschikbaar per 1 maart 2026
English:
Please note: Ownership situation concerns full ownership and therefore no leasehold!
In a unique location, just on the edge of the (historic) center of Leiden, you will find this modern and very well-maintained 3-room corner apartment with, among other things, 2 balconies and a spacious storage room. The apartment complex, Den Stadsjonker, dates from 1999 and is equipped with an elevator. Due to its central location, in the Haagwegkwartier, the Central station, several hospitals (including LUMC), the Bio Science Park, various shopping streets, schools and childcare options, as well as sports facilities are within walking or cycling distance. Via the various arterial roads (A4, N206, A44) you are quickly on your way to Schiphol, Amsterdam or all other major cities. You don't have to drive far to the beach or forest either. Within 20 minutes you can take a nice walk.
Layout:
Ground floor: Communal entrance with mailboxes, doorbells, staircase and access to the storage room in the basement.
Second floor:
Entrance, hall with meter cupboard, laundry room/storage room with central heating boiler, modern toilet with sink, bathroom and access to the living room with open kitchen. The spacious and very bright living room has a beautiful wooden floor, smooth plastered walls and gives access to the two balconies (east and south facing). The open kitchen has a natural stone countertop and is of course equipped with various (built-in) appliances such as an oven, dishwasher, 4-burner gas stove with extractor hood and a refrigerator. A cozy (breakfast) bar has been created near the kitchen, nice to have breakfast or a cup of coffee. There are also 2 bedrooms and a modern luxurious bathroom with a spacious walk-in shower, a bidet, (sani-broyeur) toilet, washbasin with mirror cabinet and a design radiator.
The house is fully insulated, is in a very good state of maintenance and can be occupied immediately.
Good to know:
- Year of construction: 1999
- Living area: 78 m2
- Building-related outdoor space (balconies): 12 m2
- Apartment contents: approx. 250 m3
- Within walking distance of Leiden city center
- Energy label A
- Heating by means of own CV
- Active owners association: service costs approximately € 141 per month
- Parking with residents' permit, approximately €60 per year
- Conveniently located in relation to highways (N206, A44, A4)
- Delivery: In consultation, available from March 1, 2026