In de gezellige wijk Groenoord ligt deze ruime en speels ingedeelde 4-kamer bovenwoning uit circa 1933. Wat deze woning direct bijzonder maakt, is de indeling met de woonkamer en keuken op de bovenste verdieping. Hierdoor ontstaat een lichte, open leefruimte met vrij uitzicht en veel privacy, terwijl de slaapkamers zich op de verdieping eronder bevinden – een opzet die zorgt voor een prettige, ruimtelijke beleving en net even anders is dan standaard.
De maisonnette beschikt over drie slaapkamers, een balkon, nette badkamer, separaat toilet, wasruimte, en boven een royale woonkamer met halfopen keuken, gaskachel en zonnig dakterras. De woning ligt in een sfeervolle, karakteristieke straat op slechts vijf minuten fietsen van het centrum van Leiden, het Centraal Station en het LUMC. Winkels, scholen en sportverenigingen zijn op loopafstand, en met de auto zijn de A4, A44 en N206 snel bereikbaar richting Amsterdam, Den Haag of de kust.
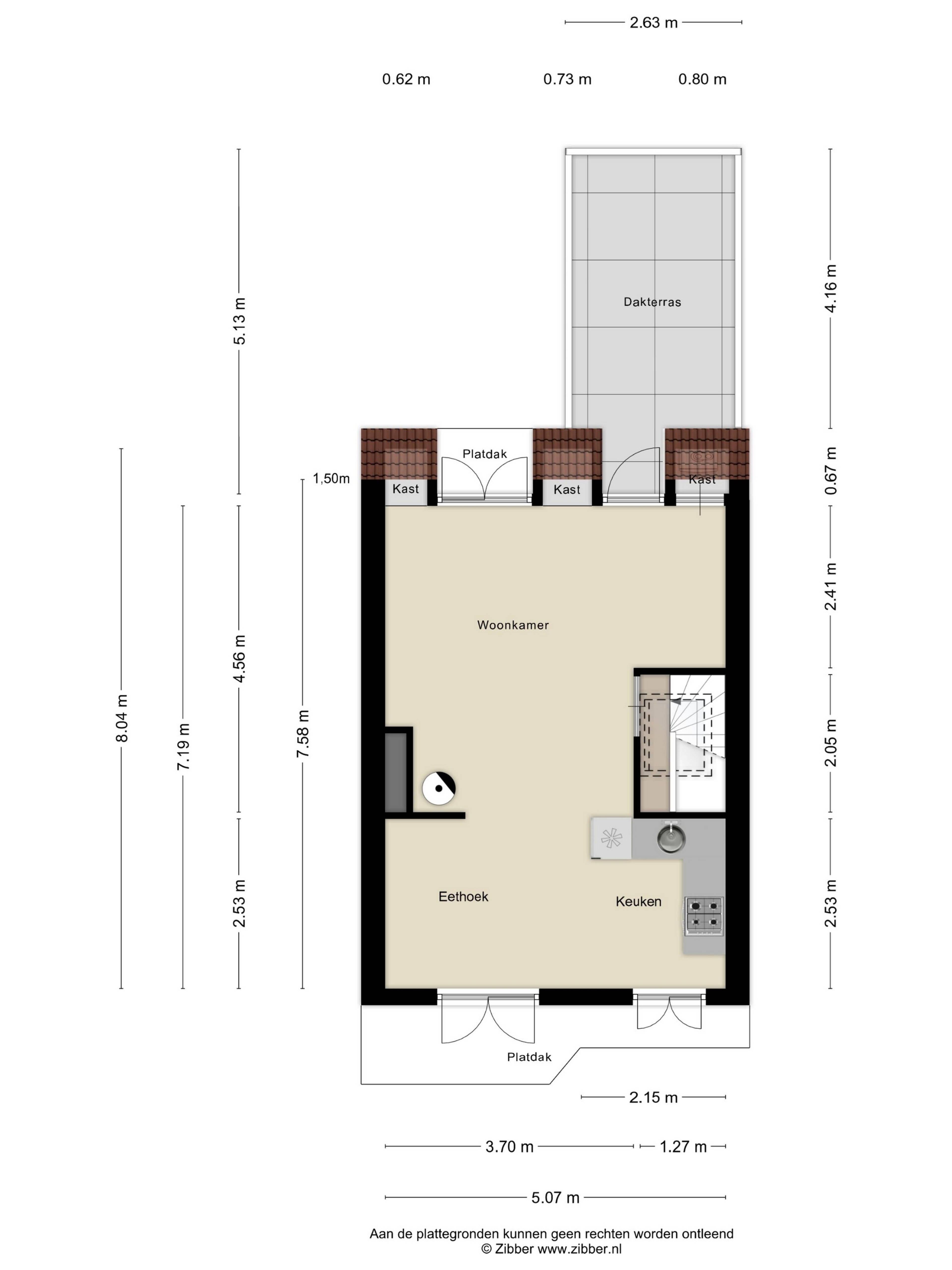
Indeling
Begane grond
Entree met hal, meterkast en trapopgang naar de eerste verdieping.
Eerste verdieping
Overloop met separaat toilet en toegang tot de verschillende ruimtes. Aan de voorzijde bevindt zich de nette badkamer met wastafel, ligbad en aparte douche, naast de ruime (ouder)slaapkamer. Aan de achterzijde liggen een tweede ruime slaapkamer met toegang tot het balkon, een wasruimte, en een derde slaapkamer of hobbykamer – ideaal als werkplek of kinderkamer.
Tweede verdieping
Via de trap met skylight wordt de lichte, open leef verdieping bereikt. Hier bevinden zich de woonkamer en keuken – een verrassende indeling die direct voor een ruimtelijk gevoel zorgt. De woonkamer heeft een sfeervolle gaskachel en airconditioning, en dankzij de ligging boven geniet deze verdieping van veel licht en privacy. De halfopen keuken in L-opstelling is voorzien van diverse inbouwapparatuur en biedt volop werk- en bergruimte. Aan de achterzijde ligt het royale dakterras, waar vanwege de hoogte heerlijk van de zon kan worden genoten – een ideale plek om te ontspannen of gezellig te borrelen met vrienden.
Bijzonderheden
Oplevering in overleg
Bij woningen ouder dan 25 jaar hanteren wij standaard een ouderdoms- en asbestclausule