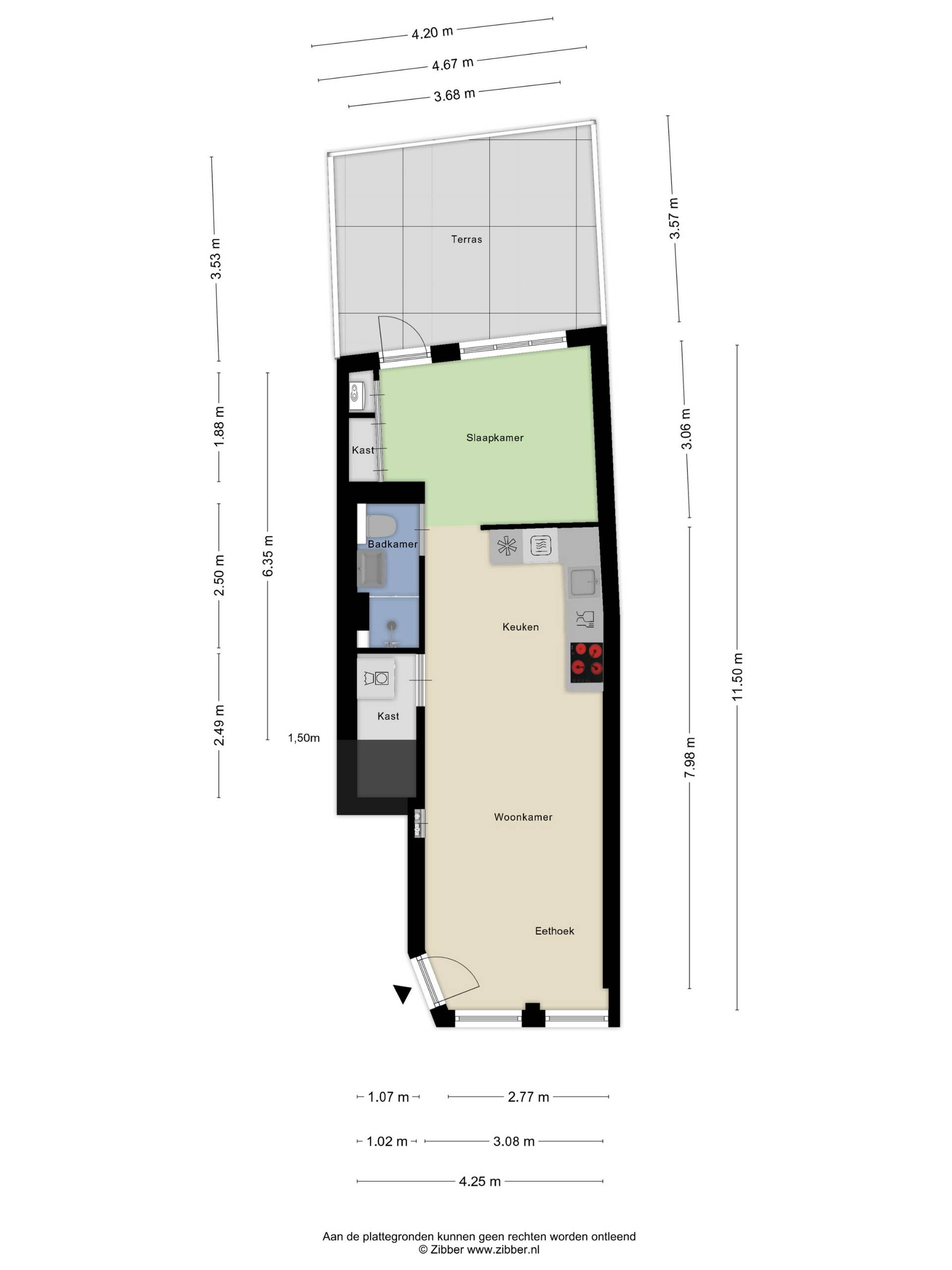
Terras, 16 m2 aan de Oude Rijn met aanlegplaats voor een sloep
For English – see below
OMSCHRIJVING
Stel je voor: je zit ’s ochtends op je ruime, zonnige terras (16m2) gelegen op
het zuiden, direct aan de Oude Rijn. De zon komt op, de eerste sloepjes
glijden voorbij. Je hebt hier altijd iets om naar te kijken: van kleine bootjes
tot grote plezierjachten. Ondanks de levendigheid van het water voelt het
terras zelf heerlijk privé, beschut en verrassend rustig. Je stapt zo aan boord
van je eigen bootje en vaart binnen een paar minuten naar hartje Leiden.
Een unieke combinatie van stadsleven en een ontspannen buitengevoel aan
het water.
Gelegen aan de Lage Rijndijk, net buiten de Singels en op loopafstand van
het historische centrum van Leiden, ligt dit bijzondere
tweekamerappartement. De verrassend praktisch ingedeelde woning is
volledig instapklaar, licht en sfeervol afgewerkt. De moderne keuken en
badkamer verkeren in uitstekende staat.
Alles is dichtbij: horeca, de haven, winkels, musea, restaurants en
bioscopen. Leiden Centraal ligt op 10 fietsminuten. Supermarkten zijn
gelegen op wandelafstand. Sportclubs en recreatievoorzieningen bevinden
zich in de directe omgeving. Een ideale combinatie van stadsdynamiek,
comfort en bereikbaarheid. De centrale ligging zorgt bovendien voor een
uitstekende bereikbaarheid met twee treinstations, diverse busverbindingen
en snelle toegang tot de verschillende uitvalswegen richting Den Haag,
Amsterdam, Utrecht en Schiphol.
INDELING
ENTREE APPARTEMENT
De woonkamer met eetgedeelte en open keuken (22m2) is sfeervol en
praktisch ingedeeld. De keuken heeft een 4-pits inductiekookplaat,
afzuigkap, combi-oven, vaatwasser, koelkast en vriezer met 3 laden. De
slaapkamer heeft uitzicht op het terras en de Oude Rijn. Aangrenzend aan
de woonkamer bevindt zich een grote bergkast o.a. met aansluitingen voor
een wasmachine en wasdroger.
TERRAS
Het sfeervolle en beschutte terras aan het water is een heerlijk aanvulling op
de woning, voor ca. € 90 per jaar is het mogelijk om hier een bootje aan te
leggen.
KENMERKEN
- Sfeervolle en ruimtelijke benedenwoning net buiten de stadssingels
- Bouwjaar 1915
- Woonoppervlakte 42 m2
- Energielabel C geldig tot 03-12-2033
- Plafond en wanden extra geïsoleerd
- Gezellig terras van 16 m2 gelegen op het zuiden, aan het water
- Aanlegplaats voor een boot, vergunning ca. € 90 per jaar
- Op loopafstand van het centrum van Leiden en nabij Leiderdorp
- Openbaar vervoer voorziening in de omgeving
- Winkels, scholen en zwembad in de buurt van de woning
- Uitvalswegen goed bereikbaar
- VVE maandelijkse bijdrage € 50 per maand
- Oplevering in overleg
- NEN 2580 meetrapportage is beschikbaar
Bij woningen ouder dan 30 jaar hanteren wij standaard een ouderdom en
asbest clausule.
De Meetinstructie is gebaseerd op de NEN2580. De Meetinstructie is
bedoeld om een meer eenduidige manier van meten toe te passen voor het
geven van een indicatie van de gebruiksoppervlakte. De Meetinstructie sluit
verschillen in meetuitkomsten niet volledig uit, door bijvoorbeeld
interpretatieverschillen, afrondingen of beperkingen bij het kadaster.
De informatie is met zorg samengesteld, aan de juistheid kunnen echter
geen rechten worden ontleend. Alle opgegeven maten en oppervlakten zijn
indicatief. De algemene verkoopvoorwaarden staan vermeld op onze
website, wij werken conform de Algemene Consumentenvoorwaarden van
VASTGOED NEDERLAND.
Heeft u vragen over dit object of over onze
dienstverlening neemt u dan gerust contact met ons op.
*English text*
DESCRIPTION
Imagine this: you're sitting on your spacious, sunny terrace (16m²) facing
south in the morning, right on the Oude Rijn river. The sun rises, and the first
boats glide by. You'll always have something to watch – from small boats to
large pleasure yachts. Despite the bustle of the water, the terrace itself feels
wonderfully private, sheltered, and surprisingly peaceful. Step aboard your
own boat and sail to the heart of Leiden in just a few minutes. A unique
combination of city life and a relaxed outdoor experience by the water.
Located on the Lage Rijndijk, just outside the canals and within walking
distance of Leiden's historic city center, lies this unique two-room apartment.
The surprisingly practical layout of the apartment is completely move-in
ready, bright, and tastefully finished. The modern kitchen and bathroom are
in excellent condition.
Everything is close by: restaurants, the harbor, shops, museums,
restaurants, and cinemas. Leiden Central Station is a 10-minute bike ride
away. Supermarkets are within walking distance. Sports clubs and
recreational facilities are in the immediate vicinity. An ideal combination of
urban dynamism, comfort, and accessibility. Its central location also provides
excellent accessibility with two train stations, various bus connections, and
quick access to various highways to The Hague, Amsterdam, Utrecht, and
Schiphol Airport.
LAYOUT
ENTRANCE APARTMENT
The living room with dining area and open-plan kitchen (22m²) is attractively
and practically laid out.
The kitchen includes a 4-burner induction cooktop, extractor hood,
combination oven, dishwasher, and a 3-drawer fridge/freezer.
The bedroom overlooks the terrace and the Oude Rijn river.
TERRACE
The inviting and sheltered waterfront terrace is a wonderful addition to the
home. For approximately €90 per year, it's possible to moor a boat there.
CHARACTERISTICS
- Charming and spacious ground-floor apartment just outside the city canals
- Built in 1915
- Living area 42 m²
- Energy label C valid until December 3, 2033
- Extra insulated ceilings and walls
- Cozy 16 m² south-facing terrace on the water
- Boat mooring, permit approx. €90 per year
- Within walking distance of Leiden city center and near Leiderdorp
- Public transport nearby
- Shops, schools, and swimming pool nearby
- Easily accessible major roads
- Homeowners' Association monthly fee €50 per month
- Delivery upon agreement
- NEN 2580 measurement report available
For homes older than 30 years, we apply an age and asbestos clause as
standard.
The information has been compiled with care, but no rights can be derived
from its accuracy. All specified sizes and surfaces are indicative. The general
terms and conditions of sale are stated on our website, we work in
accordance with the General Consumer Terms and Conditions of VBO
Makelaar.
If you have any questions about this object or about our services,
please do not hesitate to contact us.