In de gezellige Bloemstraat, vlak bij de historische binnenstad van Leiden, ligt dit charmante en praktisch ingedeelde 2-kamer appartement op de begane grond. Het appartement is goed gerenoveerd en instap klaar. Met een lichte woonkamer, ruime slaapkamer, nette keuken en badkamer én een heerlijke stadstuin aan de achterzijde, is dit een ideale plek voor wie comfortabel wil wonen op een centrale locatie.
Alle dagelijkse voorzieningen liggen om de hoek: gezellige cafés, restaurants en winkels, maar ook het Centraal Station, het Ankerpark, het Singelpark, sportvoorzieningen en diverse uitvalswegen zijn uitstekend bereikbaar.
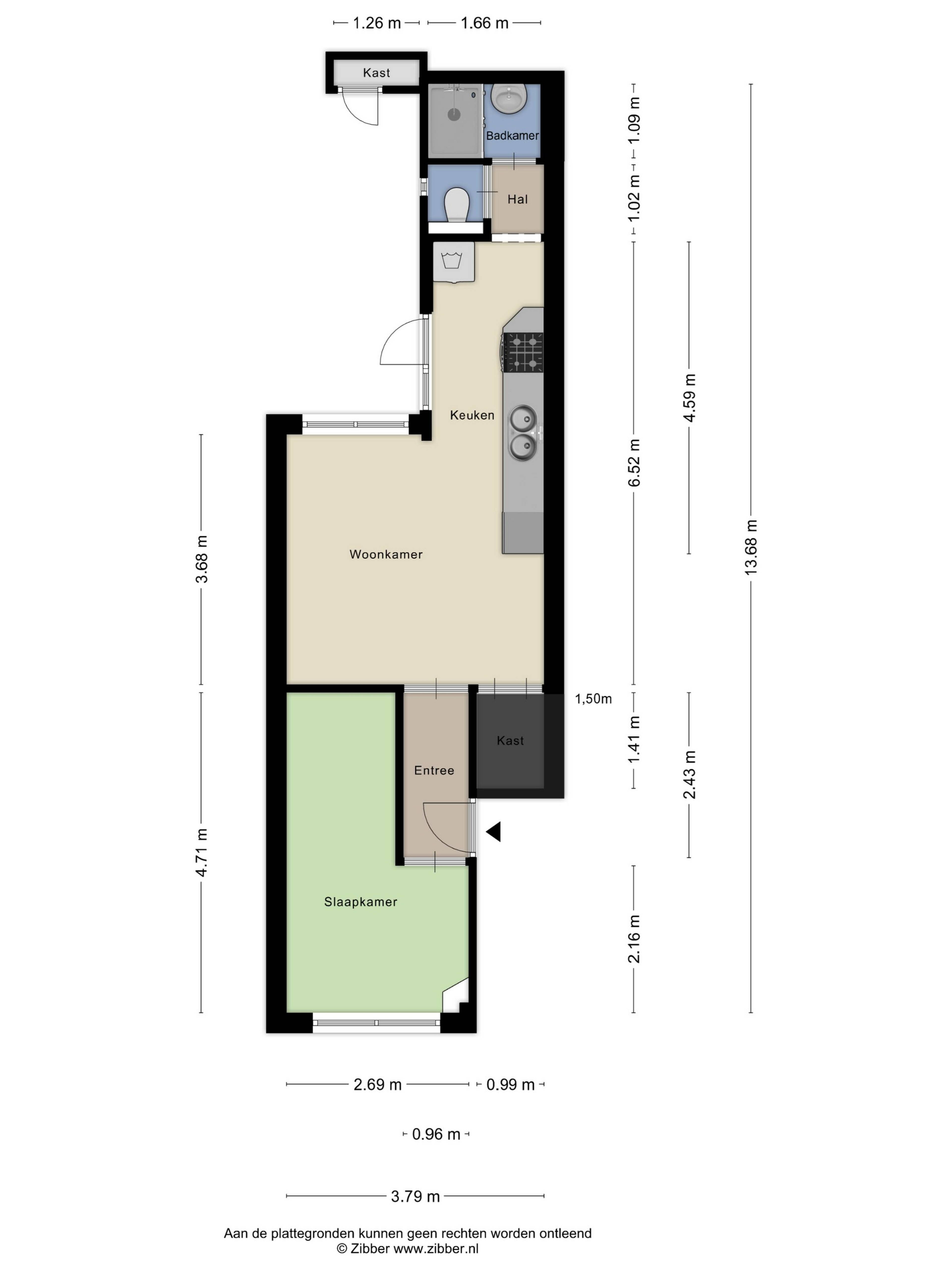
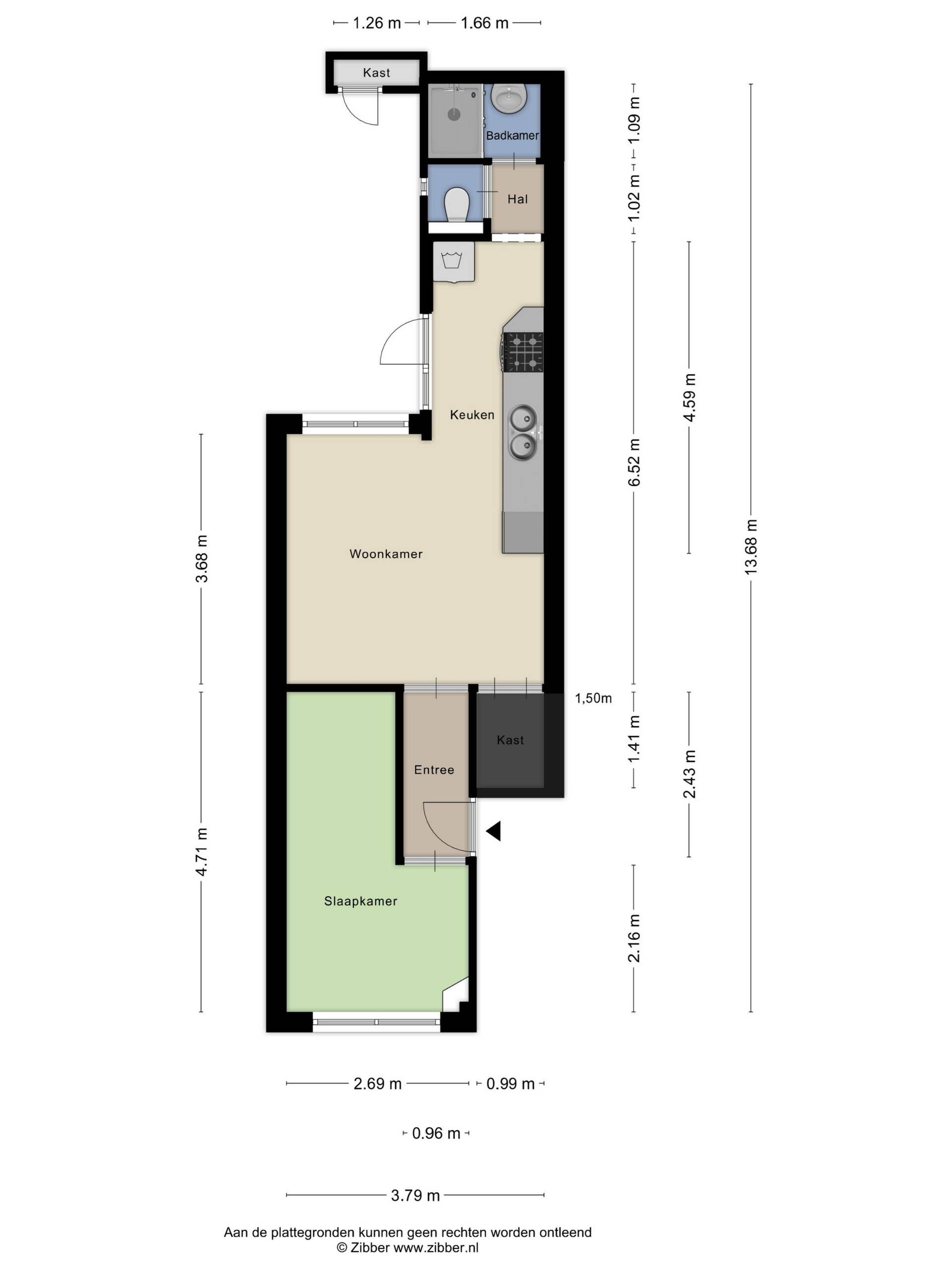
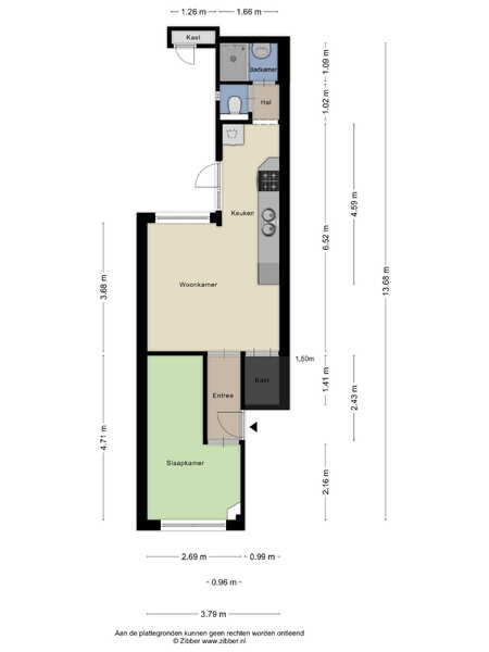
Indeling
Via de entree aan de voorzijde wordt de centrale hal bereikt, met toegang tot de verschillende vertrekken. Aan de straatzijde ligt de ruime slaapkamer, die dankzij de brede raampartij prettig licht is. Deze ruimte is bereikbaar via een eigen hal en afsluitbaar. Deze ruimte biedt voldoende mogelijkheid voor plaatsen van bureau. Eventueel kan ervoor worden gekozen om de eigen hal bij de slaap- werkruimte te betrekken.
De lichte woonkamer met ruime trapkast ligt centraal in het appartement en vormt een fijne leefruimte, met direct aansluitend de nette halfopen keuken. Deze keuken biedt volop werk- en kastruimte en heeft een logische indeling met zicht op zowel de woonkamer als de achtertuin. Achter de keuken ligt de ruime stadstuin. Hier is genoeg ruimte voor een gezellige zit plek, planten of een compacte buitenkeuken. Daarnaast is er een buitenkast voor opslag.
Aan de achterzijde bevindt zich verder een hal met toegang tot het moderne toilet en de badkamer, voorzien van douche en wastafel. Hiernaast is ruimte voor wasmachineplaatsing, waardoor alles praktisch bij elkaar ligt.
Bijzonderheden:
- Oplevering in overleg, kan snel
- De woning is recent gesplitst waarbij tevens de VvE is geactiveerd
- Bewoner heeft recht tot overname van huur van ruime schuur/berging in schurencomplex achter in de Bloemstraat.
- Bij woningen ouder dan 25 jaar hanteren wij standaard een ouderdoms- en asbestclausule
- Niet-bewonersclausule van toepassing