Op zoek naar een sfeervol, gemeubileerd appartement in het populaire Noorderkwartier? Aan de rand van het centrum, net achter de Maresingel, bevindt zich dit charmante 2-kamer appartement op de begane grond. Het geheel is in 2022 smaakvol gerenoveerd, onlangs gesplitst en direct klaar voor bewoning.
De woning beschikt over een lichte woonkamer met moderne open keuken, een nette badkamer en een fijne slaapkamer met toegang tot een zonnige patio op het zuiden – een heerlijke plek om in alle rust buiten te zitten.
Het appartement ligt in een rustige woonwijk, terwijl het bruisende centrum van Leiden met winkels, terrassen, cafés, restaurants en Leiden Centraal op loopafstand te bereiken zijn. Ook de uitvalswegen richting Amsterdam en Den Haag zijn snel en eenvoudig bereikbaar.
Indeling
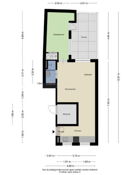
Via de gezamenlijke entree bereik je het appartement op de begane grond. Je komt binnen in de lichte keuken met grote raampartijen aan de voorzijde. De keuken is volledig uitgerust met onder andere een inductiekookplaat, combi-oven/magnetron, afzuigkap, vaatwasser, koelkast met vriesvak, koffiezetapparaat en waterkoker. Ook pannen, servies en bestek zijn aanwezig.
Aan de achterzijde ligt de sfeervolle woonkamer met hoog plafond en uitzicht op de patio. Hier is ruimte om te ontspannen op de comfortabele bank of een film te kijken. De eettafel kan eenvoudig worden vergroot en biedt tevens een fijne werkplek. Vanuit de woonkamer zijn de badkamer en slaapkamer bereikbaar. De badkamer is voorzien van douche, wastafelmeubel en toilet. In de slaapkamer staat een tweepersoonsbed, zijn twee ruime kasten aanwezig, waarvan één met aansluiting voor de wasdroogcombinatie, en zorgen verduisterende rolgordijnen voor een goede nachtrust. Vanuit hier stap je zo de zonnige patio op.
Bijzonderheden
Volledige inventaris ter overname
Gedeelde berging op de begane grond
Oplevering in overleg, kan snel
Bij woningen ouder dan 25 jaar hanteren wij standaard een ouderdoms- en asbestclausule
Niet-bewonersclausule van toepassing
Projectnotaris TeekensKarstens