Instapklaar appartement met kookeiland en zonnig terras in het centrum van Leiden
Wonen in het centrum van Leiden met ruimte, licht en een terras op het zuiden?
Dit goed onderhouden 3-kamer appartement combineert een centrale ligging met een nette afwerking en een doordachte indeling. Gelegen in een modern appartementencomplex met lift, op loopafstand van winkels, horeca, musea en het Plantsoen, biedt deze woning een comfortabele basis voor prettig stads wonen voor jong en oud.
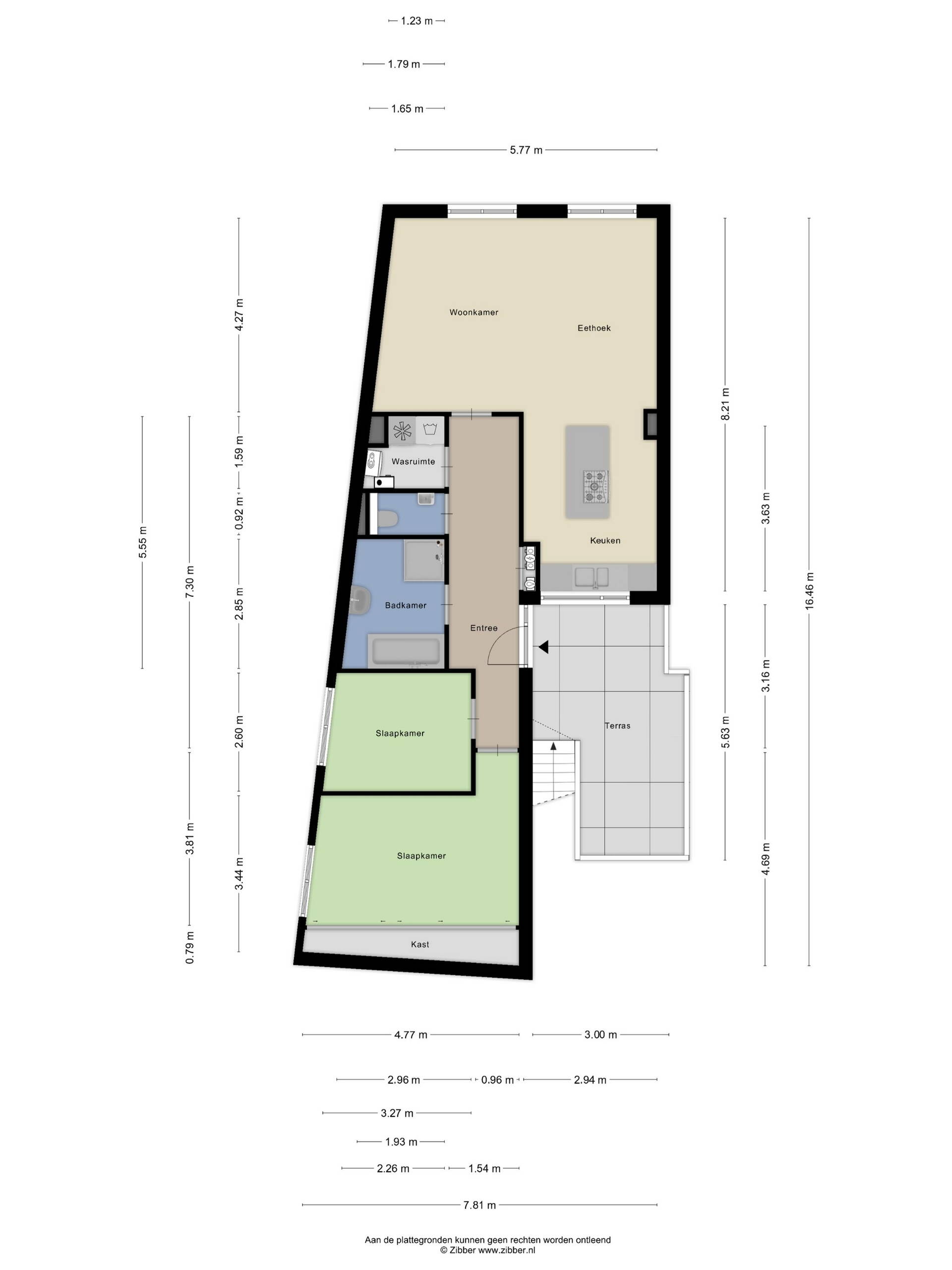
De woonkamer is licht en ruim opgezet en staat in open verbinding met de keuken. De open keuken vormt het centrale punt van de woning. Het royale kookeiland met RVS-werkblad geeft de ruimte een eigentijdse uitstraling en maakt dit appartement duidelijk onderscheidend binnen dit segment. De grote vloeroppervlakken en rustige afwerking zorgen voor een aangename leefruimte met veel flexibiliteit in inrichting.
Het appartement beschikt over twee volwaardige slaapkamers. De ruime hoofdslaapkamer is voorzien van een praktische inbouwkast over de volledige breedte, wat zorgt voor veel bergruimte. De tweede slaapkamer is uitstekend geschikt als werk-, logeer- of kinderkamer.
De badkamer is verzorgd en compleet ingericht met een ligbad, aparte douche, wastafel en handdoekradiator. Het toilet is separaat en bereikbaar vanuit de hal. Daarnaast is er een aparte wasruimte met opstelling van de cv-ketel, wat bijdraagt aan een nette en functionele indeling. De woning verkeert in een nette staat van onderhoud en is direct te betrekken.
Een groot pluspunt is het terras van circa 16 m² aan de voorzijde. Met deze afmeting is het terras opvallend ruim voor een appartement in het centrum en biedt het volop mogelijkheden om buiten te zitten, te eten of te ontspannen. Een waardevolle aanvulling op het wooncomfort.
Het appartement ligt op de 1e verdieping van een goed onderhouden complex met lift. In de onderbouw is een eigen berging aanwezig, geschikt voor fietsen en extra opslag. Parkeren is mogelijk via een parkeervergunning bij de gemeente.
Een comfortabel en goed ingedeeld appartement op een centrale locatie, waar je de dynamiek van de stad combineert met rust en wooncomfort.
Bijzonderheden
- Bouwjaar 2004
- Gebruiksoppervlakte wonen 86m2
- Gebouw gebonden buitenruimte 16m2 (terras)
- Externe bergruimte 5m2 (berging)
- Inhoud 284m2
- Energielabel A
- Actieve VvE, maandelijkse bijdrage €248,37
- Cv-ketel uit 2004
- Parkeervergunning op aanvraag bij de gemeente
- Oplevering in overleg (direct)
- Niet bewoningsclausule van toepassing
Move-in ready apartment with kitchen island and sunny terrace in the heart of Leiden
Looking to live in the center of Leiden with space, light and a south-facing terrace?
This well-maintained three-room apartment combines a prime central location with a neat finish and a well-thought-out layout. Situated in a modern apartment complex with an elevator, within walking distance of shops, restaurants, museums and the Plantsoen park, this property offers a comfortable base for pleasant city living for both young and old.
The living room is bright and spacious and connects seamlessly with the kitchen. The open-plan kitchen forms the heart of the home. The generous kitchen island with stainless steel worktop gives the space a contemporary feel and clearly sets this apartment apart within its segment. The large floor areas and calm finishes create an inviting living space with plenty of flexibility for furnishing.
The apartment features two full-sized bedrooms. The spacious master bedroom is fitted with a practical built-in wardrobe spanning the full width of the room, providing ample storage space. The second bedroom is ideal as a home office, guest room or child’s bedroom.
The bathroom is well maintained and fully equipped with a bathtub, separate shower, washbasin, and towel radiator. The toilet is separate and accessible from the hallway. In addition, there is a separate laundry/utility room with the central heating boiler, contributing to a tidy and functional layout. The apartment is in good condition and ready for immediate occupancy.
A major highlight is the terrace of approximately 16 m² at the front of the apartment. Its generous size is exceptional for a city-center apartment and offers plenty of space for outdoor seating, dining or relaxing. An invaluable addition to the overall living comfort.
The apartment is located on the first floor of a well-maintained complex with an elevator. A private storage unit is available in the basement, suitable for bicycles and additional storage. Parking is possible through a municipal parking permit.
A comfortable and well-laid-out apartment in a central location, where the vibrancy of city life is perfectly balanced with peace and residential comfort.
Key Features
- Year of construction: 2004
- Living area: 86 m²
- Building-related outdoor space: 16 m² (terrace)
- External storage space: 5 m² (storage unit)
- Volume: 284 m³
- Energy label: A
- Active homeowners’ association (VvE), monthly contribution €248.37
- Central heating boiler from 2004
- Parking permit available upon application with the municipality
- Delivery in consultation (available immediately)
- Non-occupancy clause applicable