appartement/flat appartement

Bronkhorststraat 72316 SW  Leiden

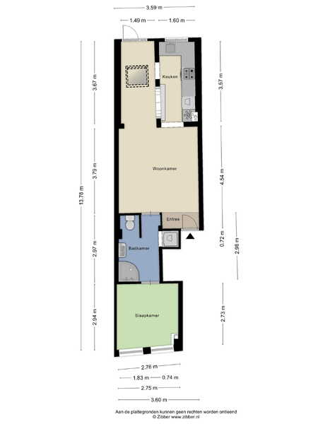
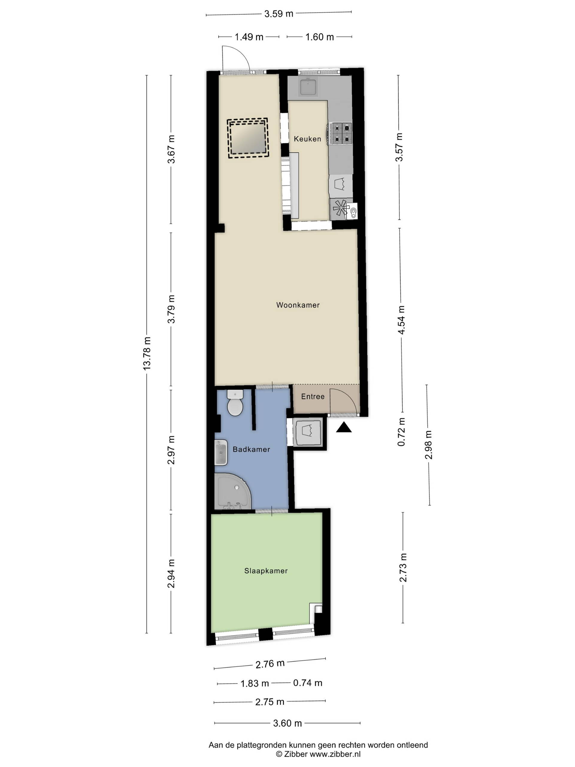
42 m2 2 kamers 1 slaapkamer

295.000 k.k.

A
Bronkhorststraat 7 Leiden
Naar boven