Op zoek naar een instap klaar, luxeappartement met optimaal klimaatbeheer en een heerlijke buitenruimte? Dit schitterende tweekamerappartement op de eerste verdieping is in 2025/2026 volledig verbouwd met oog voor luxe en duurzaamheid (Energielabel A). Van geïntegreerde bluetooth speakers in het plafond tot verwarming én koeling via airconditioning: hier geniet je van modern wooncomfort in een karakteristieke setting. Door de hoekligging en grote raampartijen is dit een heerlijk licht en ruimtelijk appartement.
De Haarlemmerweg 58A is de perfecte uitvalsbasis voor starters en expats die het maximale uit de Randstad willen halen. Op slechts enkele minuten wandelen of fietsen sta je in het historische hart van Leiden, vol sfeervolle grachten, terrassen en cultuur.
Voor de dagelijkse dynamiek is de ligging ideaal: het treinstation Leiden Centraal, het Bio Science Park en de Universiteit Leiden zijn razendsnel bereikbaar. Dankzij de nabijheid van de A4 en A44 zijn steden als Amsterdam, Den Haag en Schiphol binnen 20 tot 30 minuten bereikbaar. Of je nu werkt bij een internationale organisatie (zoals ESA-ESTEC) of geniet van het bruisende stadsleven, deze locatie biedt de perfecte balans tussen werk en ontspanning.
Indeling van het appartement
Begane grond:
Gezamenlijke entree met bellentableau, brievenbus en trapopgang naar de eerste verdieping.
Eerste verdieping:
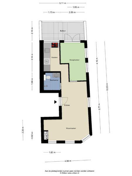
Centrale binnenkomst in het appartement waar grote raampartijen zorgen voor een prachtig lichtinval en levendig uitzicht over de Haarlemmertrekvaart. De fijne woonkamer is gelegen aan de voorzijde waar tevens de meterkast gesitueerd is. De tussenliggende, moderne badkamer is strak afgewerkt en voorzien van een douche, toilet, wastafelmeubel, spiegel met verlichting en een comfortabele elektrische handdoekenradiator.
Aan de achterzijde bevindt zich de luxe keuken, voorzien van hoogwaardige inbouwapparatuur waaronder een inductiekookplaat met afzuiging, koelkast met vriesvak, vaatwasser en combi magnetron/oven en aangename elektrische vloerverwarming. In de keuken is tevens de warmtepompboiler geplaatst en is er ruimte en zijn alle benodigde aansluitingen voor een wasmachine/droger combinatie.
De slaapkamer is eveneens aan de rustige achterzijde gelegen. Vanuit de slaapkamer is er toegang tot het royale dakterras van ca. 9m², een ideale plek voor ontspanning in de zon.
Bijzonderheden:
•Appartementen gesplitst in 2025
•Geheel vernieuwd in 2025/2026 (leidingwerk, hal, deuren, vloeren, isolatie, afwerking).
•Energielabel A.
•Oplevering in overleg, kan snel.
•Projectnotaris Klaver Notariaat.
•Niet-bewonersclausule van toepassing.