Merelstraat 7 – Leiden
Sfeervolle jaren ‘20 woning met moderne keuken en multifunctionele zolder
In een rustige, karakteristieke straat in de Vogelwijk van Leiden staat deze charmante jaren ’20 eengezinswoning met een woonoppervlakte van maar liefst 148 m². De woning heeft een sfeervol ingebouwd balkon aan de voorzijde. Op de begane grond zijn en suitedeuren en nog een aantal paneeldeuren aanwezig, die samen met de hoge plafonds een authentiek karakter geven aan de open ruimte. Aan de achterzijde bevindt zich een gesloten moderne keuken uit 2023. De zolderverdieping met eigen keuken en badkamer is ideaal als zelfstandig appartement, kantoor of logeerruimte.
Omgeving
De Merelstraat ligt in een populaire woonwijk vlak bij het centrum van Leiden en grenzen aan Oegstgeest. In de directe omgeving vind je winkels, scholen, sportfaciliteiten en openbaar vervoer. Op loopafstand vind je gezellige winkels aan de Kempenaerstraat in Oegstgeest en het groene park De Leidse Hout, waar je heerlijk kunt wandelen en tot rust komen. Met de fiets ben je binnen enkele minuten bij het historische centrum, station Leiden Centraal en de gezellige straten met haar speciaalzaken en cafés.
De uitvalswegen richting Den Haag en Amsterdam zijn bovendien snel bereikbaar.
Indeling
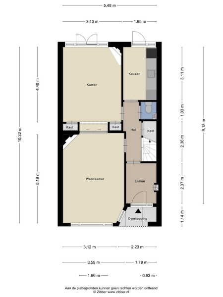
Begane grond
Entree met ruime vestibule en een hal met toegang tot de trapopgang, toilet en woonkamer. De ruime woonkamer heeft veel lichtinval dankzij de grote raampartijen en openslaande deuren naar de tuin. Authentieke details, zoals de schouwen, en suitedeuren en hoge plafonds, geven direct sfeer en karakter aan de woonkamer.
De nieuwe keuken (2023) bevindt zich aan de achterzijde en is voorzien van moderne inbouwapparatuur, voldoende kastruimte, inductie kookplaat, oven, vaatwasser en koel/vries combinatie.
Daarbij heeft de keuken een directe verbinding met de tuin — perfect voor wie houdt van koken én buitenleven.
Eerste verdieping
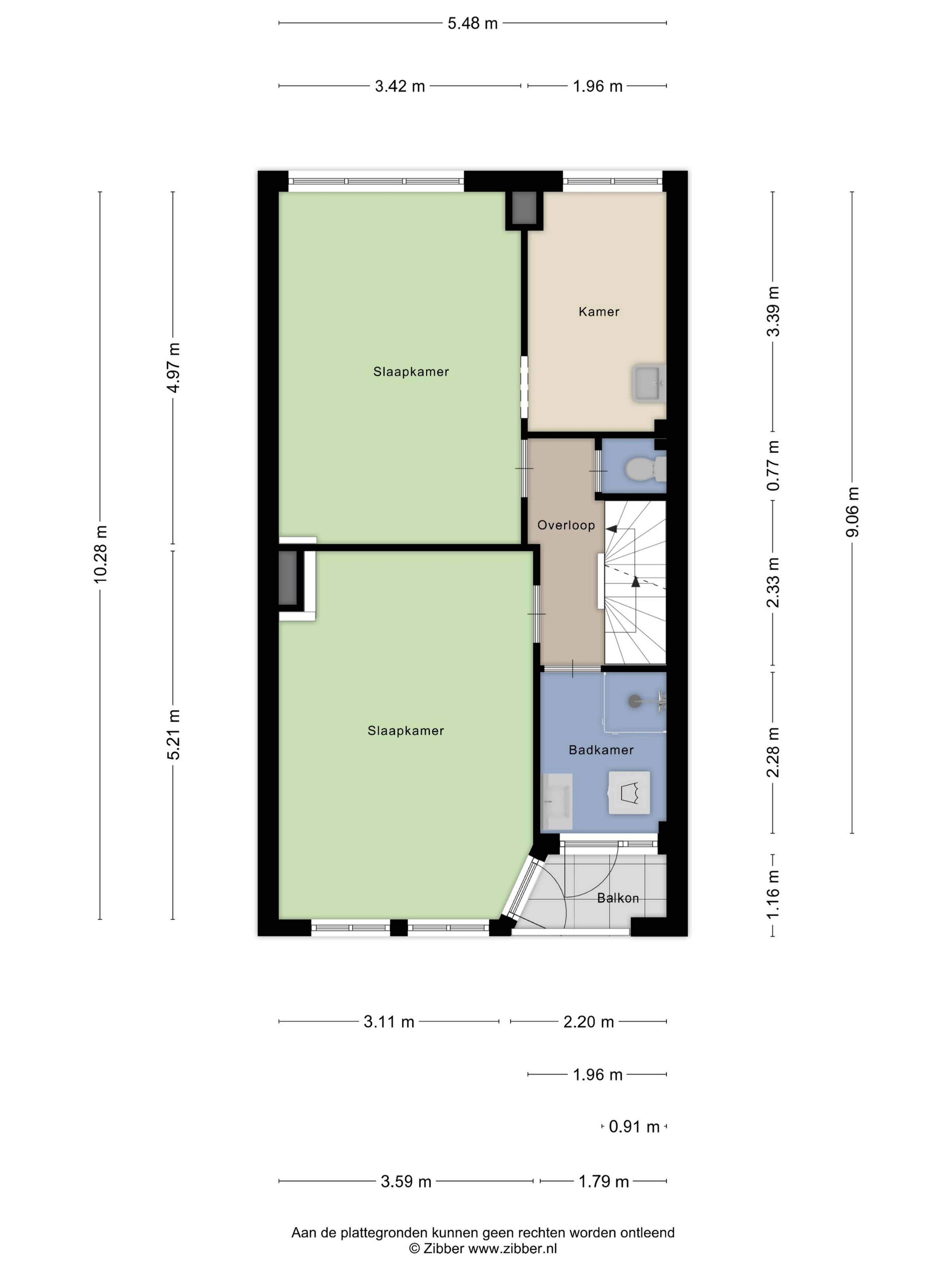
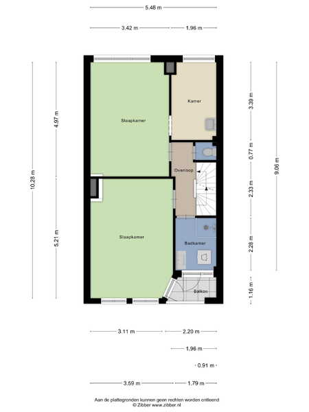
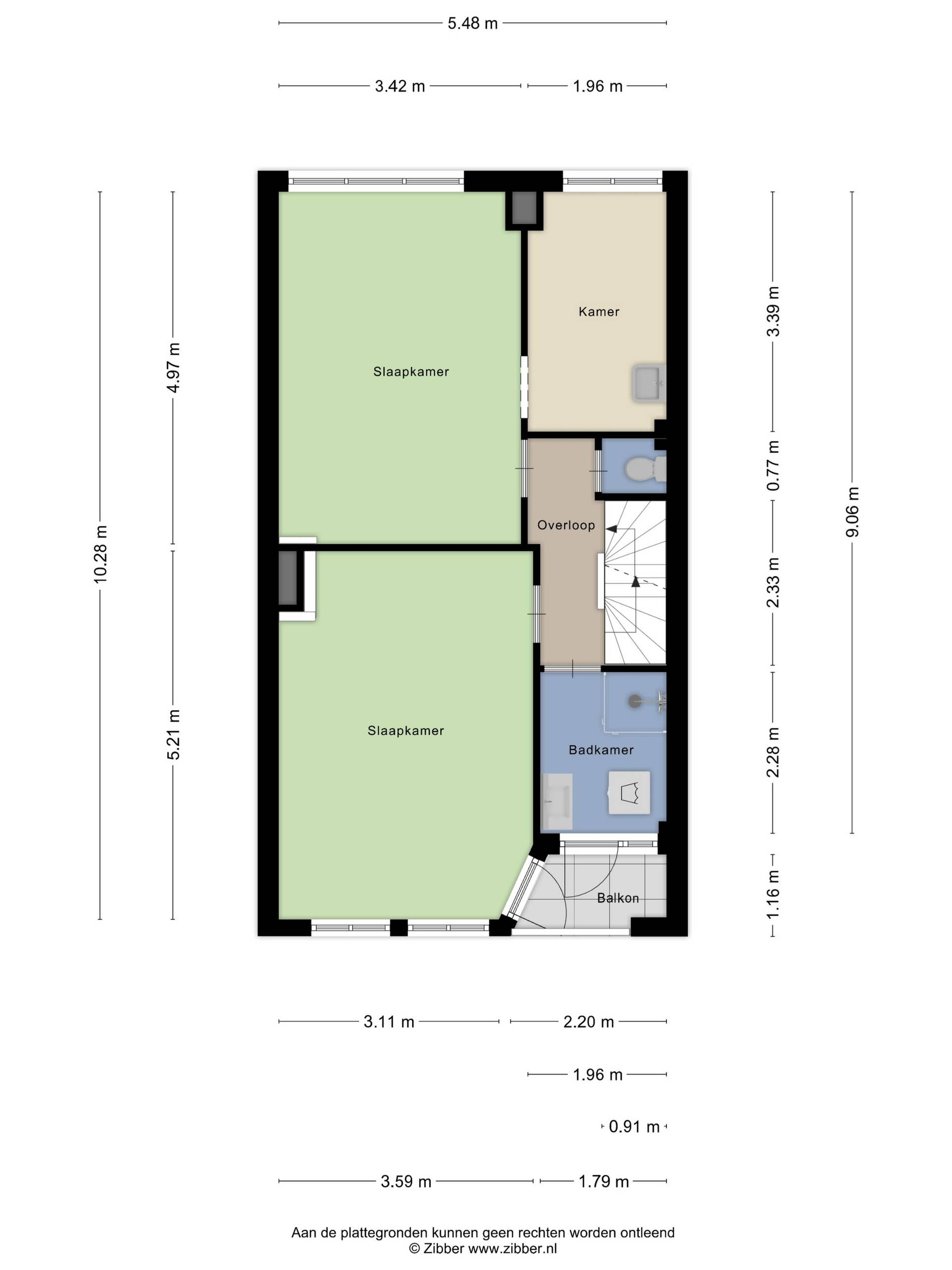
Op de eerste verdieping bevinden zich twee ruime slaapkamers, een apart toilet en badkamer. De derde kamer op deze verdieping is bereikbaar vanuit de achter slaapkamer en is te gebruiken als kantoor, kleding- of hobbyruimte. Door het terugplaatsen van de deur en tussenwand is een derde slaapkamer te realiseren. De badkamer met douche, wastafelmeubel en aansluiting voor de wasmachine geeft toegang tot het inpandige balkon, welke tevens via de voorslaapkamer te bereiken is.
Tweede verdieping (zolder)
Een grote verrassing is de zolderverdieping: een volwaardige woonlaag met eigen keuken, douche en slaapruimte. Hierdoor is deze verdieping uitstekend geschikt als zelfstandig appartement, studio voor oudere kinderen, gastenverblijf of werkruimte. Dankzij de goede lichtinval en het royale vloeroppervlak voelt het hier als een compleet tweede woonunit.
Buitenruimte
Achter de woning ligt een fijne stadstuin met privacy en een externe berging (3 m²) voor fietsen en tuingereedschap.
Kenmerken
Bouwjaar: 1926
Woonoppervlakte: ca. 148 m²
Perceeloppervlakte: 179 m²
Nieuwe keuken (2023)
Authentieke en suitedeuren
Zolder met eigen keuken en douche – geschikt als apart appartement
Centrale ligging nabij centrum en station
Energielabel: C
CV-ketel: 20..
Bijzonderheden
Deze woning biedt volop ruimte en mogelijkheden – ideaal voor wie op zoek is naar een karakteristiek huis met flexibele indeling. Of je nu een gezin hebt, wilt werken aan huis of een separate woonruimte zoekt, de Merelstraat 7 past zich moeiteloos aan jouw woonwensen aan.
Op de woning zijn de volgende clausules van toepassing:
- Ouderdomsclausule
- Asbestclausule
- Niet bewoningclausule