Sfeervol wonen in een moderne bungalow met zonnige tuin rondom
Welkom bij Saffraantuin 2, een verrassend ruime en volledig gemoderniseerde bungalow in de geliefde Merenwijk. Deze woning combineert comfort, stijl en duurzaamheid op een manier die meteen als thuis voelt. Met een woonoppervlakte van maar liefst 139 m², drie slaapkamers, een royale tuin rondom en talloze moderne voorzieningen is dit een plek waar je elke dag met plezier thuiskomt.
‘’Ruimte, licht en comfort’’
Zodra je binnenstapt, valt het heerlijke natuurlijke licht op dat via de grote raampartijen binnenstroomt. De woonkamer is ruim opgezet, met een prettige indeling en een directe verbinding met de tuin – ideaal voor wie graag binnen en buiten laat samenkomen.
De strakke wanden (gestuct), moderne laminaatvloer en de neutrale kleuren zorgen voor een rustige, eigentijdse uitstraling. Dankzij de airconditioning is het in de zomer heerlijk koel en in de winter behaaglijk warm.
De moderne keuken is praktisch ingericht en biedt volop kastruimte en werkoppervlak – perfect voor de hobbykok. Hier kook je met plezier terwijl je uitkijkt over de tuin.
‘’Slimme indeling met 3 slaapkamers’’
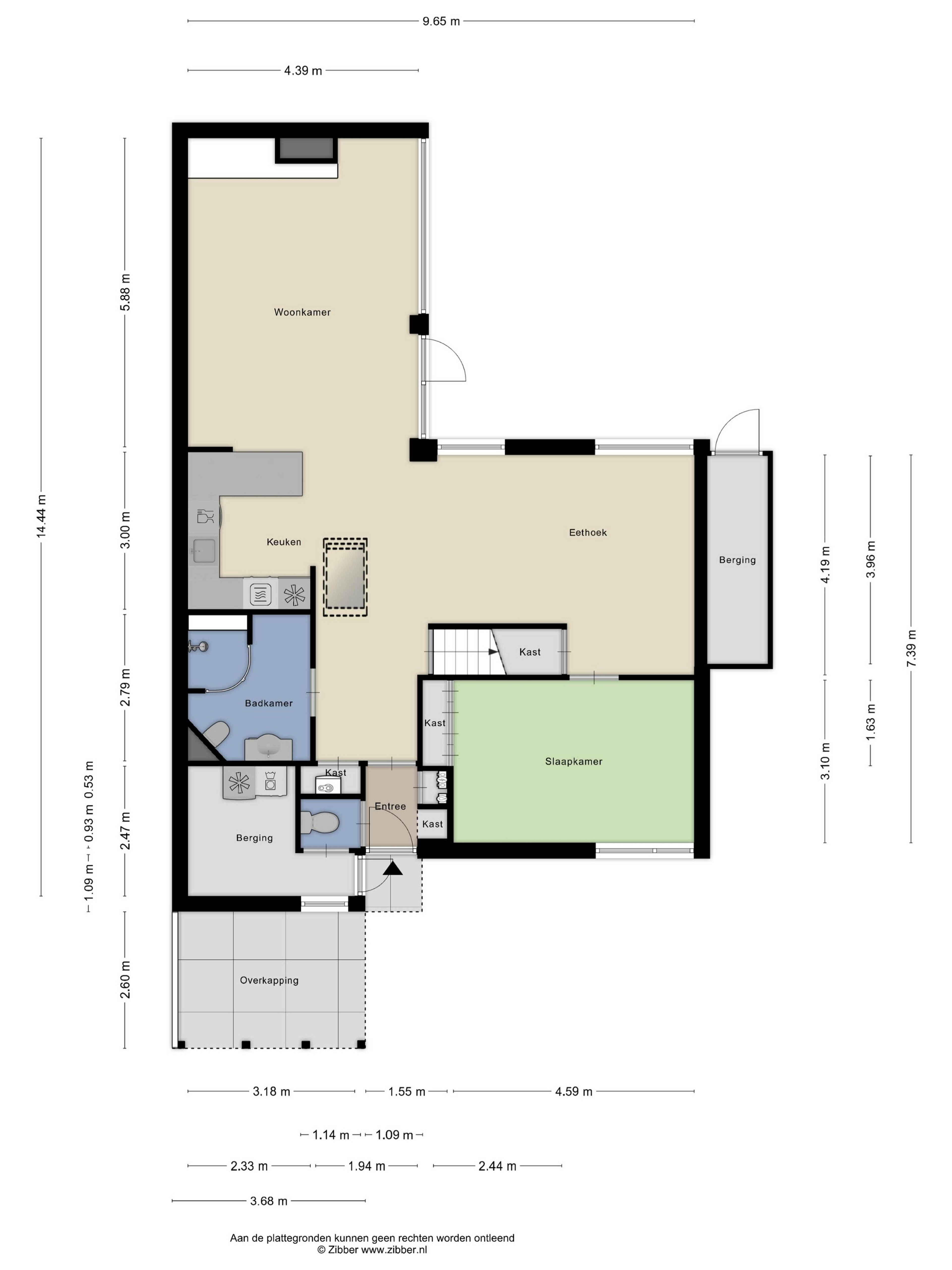
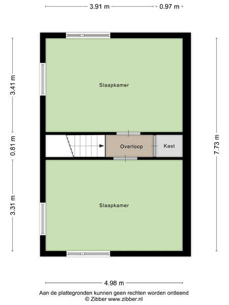
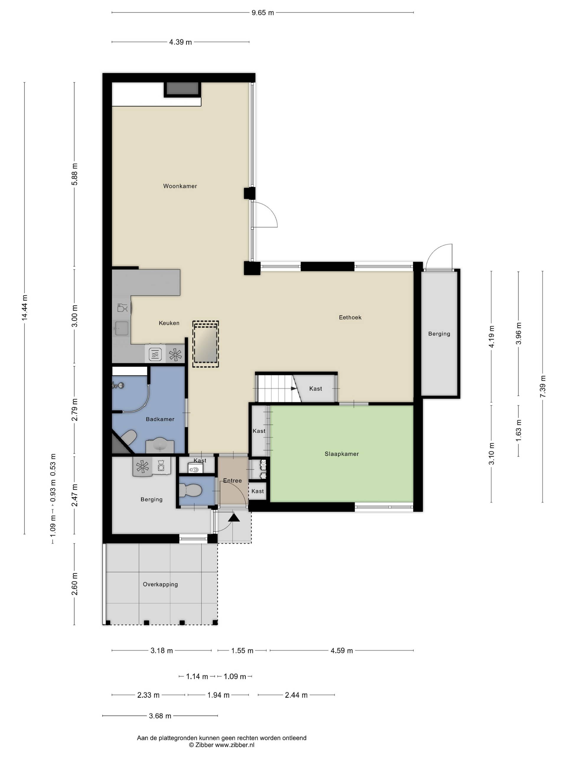
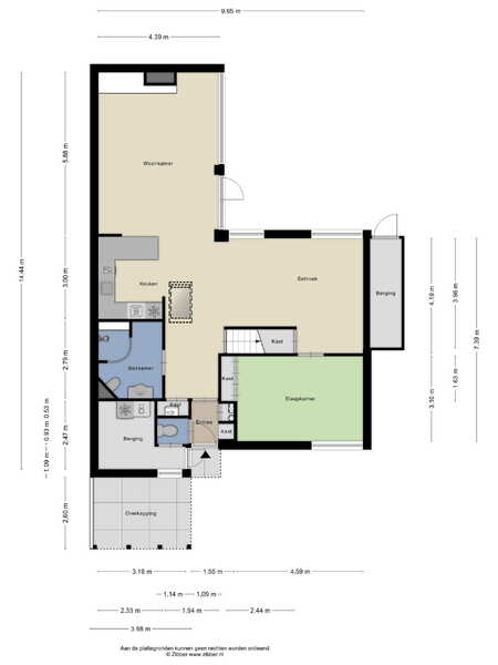
De woning beschikt over drie comfortabele slaapkamers, waarvan één op de begane grond voorzien is van rolluiken – ideaal voor een goede nachtrust. Dat maakt de bungalow uitermate geschikt voor wie gelijkvloers wil wonen of een fijne werkkamer zoekt. Op de verdieping bevinden zich nog twee slaapkamers met veel bergruimte. De ruime badkamer op de begane grond is stijlvol afgewerkt en voorzien van moderne faciliteiten.
‘’Energiezuinig en goed onderhouden’’
Deze bungalow is helemaal klaar voor de toekomst. Dankzij 10 zonnepanelen, een CV-installatie uit 2023, extra groepen in de meterkast en deels kunststof kozijnen woon je hier niet alleen comfortabel, maar ook energiezuinig. Het onderhoudsniveau is uitstekend – verhuizen zonder klussen dus!
‘’Genieten van buiten’’
Rondom de woning ligt een fraai aangelegde tuin, met zon en schaduw op elk moment van de dag. Of je nu van een kop koffie in de ochtendzon houdt of ’s avonds wilt dineren in alle rust – hier kan het allemaal. Aan de voorzijde vind je een handige overkapping voor fietse, en achterin de tuin staat een houten berging met volop ruimte voor opslag. Er is binnen aan de voorkant ook nog een handige voorraadkast beschikbaar.
‘’Ligging’’
De Merenwijk staat bekend als een groene, kindvriendelijke wijk met veel voorzieningen binnen handbereik. Winkels, scholen, sportfaciliteiten en openbaar vervoer liggen op loop- of fietsafstand. Bovendien ben je binnen enkele minuten in het centrum van Leiden, op de fiets bij de Kagerplassen of met de auto op de A4 richting Amsterdam of Den Haag.
Belangrijkste kenmerken op een rij:
– Woonoppervlakte:139 m² (meetrapport beschikbaar)
– Perceeloppervlakte: 200 m²
– 3 slaapkamers (waarvan 1 op de begane grond)
– Ruime badkamer op de begane grond
– Lichte woonkamer met tuinzicht
– Gestucte wanden en nette laminaatvloer
– Airconditioning
– Deels kunststof kozijnen
– 10 zonnepanelen
– Rolluiken op slaapkamer
– Extra groepen in meterkast
– Houten berging en overkapping aan de voorzijde
– Grote tuin rondom met veel privacy
– Gelegen in een rustige straat in de Merenwijk
Saffraantuin 2 – klaar om te genieten
Een instapklare bungalow met stijl, comfort en karakter, waar je direct kunt gaan wonen en genieten. Of je nu een gezin bent, een stel dat gelijkvloers wil wonen, of gewoon houdt van rust en ruimte— Saffraantuin 2 biedt het allemaal.
Kom kijken, voel de ruimte, en laat je verrassen door de sfeer!
Stylish Living in a Modern Bungalow with a Sunny Garden All Around
Welcome to Saffraantuin 2, a surprisingly spacious and fully modernized bungalow located in the popular Merenwijkarea. This home combines comfort, style, and sustainability in a way that immediately feels like home. With a living area of no less than 139 m², three bedrooms, a generous garden surrounding the property, and numerous modern features, this is a place where you’ll love coming home every day.
“Space, Light, and Comfort”
As soon as you step inside, you’ll notice the wonderful natural light streaming through the large windows. The living room is spacious and well laid out, with a direct connection to the garden—perfect for those who enjoy blending indoor and outdoor living.
Smooth plastered walls, modern laminate flooring, and neutral tones create a calm and contemporary atmosphere. Thanks to the air conditioning, the home stays pleasantly cool in summer and comfortably warm in winter.
The modern kitchen is smartly designed, offering ample storage and workspace—ideal for cooking enthusiasts. You can prepare your meals here while enjoying the view of the garden.
“Smart Layout with 3 Bedrooms”
The home offers three comfortable bedrooms, one of which is located on the ground floor and fitted with roller shutters—ideal for a good night’s sleep. This makes the bungalow perfect for those who prefer single-level living or need a quiet home office. Upstairs, there are two additional bedrooms with plenty of storage space. The spacious ground-floor bathroom is stylishly finished and equipped with modern facilities.
“Energy Efficient and Well Maintained”
This bungalow is completely ready for the future. With 10 solar panels, a central heating system (2023), upgraded electrical panel, and partly PVC window frames, you’ll enjoy both comfort and energy efficiency. The property is in excellent condition—so you can move in without any renovations needed!
“Enjoy Outdoor Living”
Surrounding the home is a beautifully landscaped garden that offers both sun and shade throughout the day. Whether you enjoy a morning coffee in the sunshine or dining in peace in the evening—everything is possible here. At the front, there’s a convenient covered area for bicycles, and at the back, a wooden shed provides ample storage space. There’s also an extra storage cupboard at the front of the house.
“Location”
Merenwijk is known as a green, family-friendly neighborhood with all amenities within easy reach. Shops, schools, sports facilities, and public transport are all within walking or cycling distance. In just a few minutes, you can be in the center of Leiden, at the Kagerplassen lakes, or on the A4 motorway towards Amsterdam or The Hague.
Key Features
– Living area: 139 m² (measurement report available)
– Plot size: 200 m²
– 3 bedrooms (including 1 on the ground floor)
– Spacious ground-floor bathroom
– Bright living room with garden view
– Smooth plastered walls and neat laminate flooring
– Air conditioning
– Partly PVC window frames
– 10 solar panels
– Roller shutters on the bedroom
– Upgraded electrical system
– Wooden shed and covered bike area
– Large, private garden surrounding the house
– Located in a quiet street in the Merenwijk area
Saffraantuin 2 – Ready to Enjoy
A move-in-ready bungalow with style, comfort, and character—ready for you to start living and enjoying right away. Whether you’re a family, a couple looking for single-level living, or simply someone who values peace and space, Saffraantuin 2 has it all.
Come and see for yourself—feel the space, and let the atmosphere surprise you!