English text below.
Sfeervol wonen in een hofjesstraatje met de Leidse binnenstad om de hoek
Stel je voor: wonen in een rustig hofjesstraatje, terwijl de gezellige binnenstad van Leiden op loopafstand ligt. In de geliefde wijk Groenoord vind je deze charmante woning met een heerlijke woonkamer, twee slaapkamers, een fijne badkamer en een sfeervol binnenplaatsje. Voor de deur zitten en genieten? Hier kan het, dankzij de autovrije straat.
Bijzonderheden
•Bouwjaar 1910
•Woonoppervlakte ca. 74 m²
•Energielabel E
•Hofjeswoning
•Binnenstad om de hoek
•Heerlijke woonkamer
•2 slaapkamers
•Fijne badkamer
•Dakisolatie en volledig voorzien van kunststof kozijnen met HR-glas
•Patio
•Oplevering in overleg
Bewoners aan het woord
Met veel plezier heb ik hier gewoond en genoten van deze fijne plek.
De woonkamer beneden is sfeervol en gezellig en ook de slaapkamers boven voelen prettig en authentiek aan door de mooie balken.
De buurt maakt het wonen hier extra prettig: het is een autovrije, rustige straat waar buren elkaar kennen en waar je heerlijk voor de deur kunt zitten en tot laat van de zon kunt genieten.
Met een beetje pijn in mijn hart neem ik afscheid van dit fijne huis en ik hoop dat de volgende bewoners hier net zo gelukkig zullen zijn!
Locatie
De woning is gelegen in de Raamstraat, een charmant hofjes-achtig straatje in de geliefde wijk Groenoord, waar rust en sfeer samenkomen. Ondanks de rustige ligging zijn alle dagelijkse voorzieningen binnen handbereik: van supermarkten en speciaalzaken tot gezondheidscentra en scholen. Binnen enkele minuten loop je naar de historische binnenstad van Leiden, met haar gezellige terrasjes, restaurants, boetiekjes, musea en het karakteristieke winkelstraatje de Haarlemmerstraat.
Ook culturele en sportieve activiteiten zijn dichtbij: denk aan theaters, bioscopen, sportclubs en het populaire Valkenburgpark. NS-station Leiden Centraal is op loopafstand bereikbaar. Daarnaast zorgen de nabijgelegen A4 en A44voor uitstekende verbindingen met de regio en de kust.
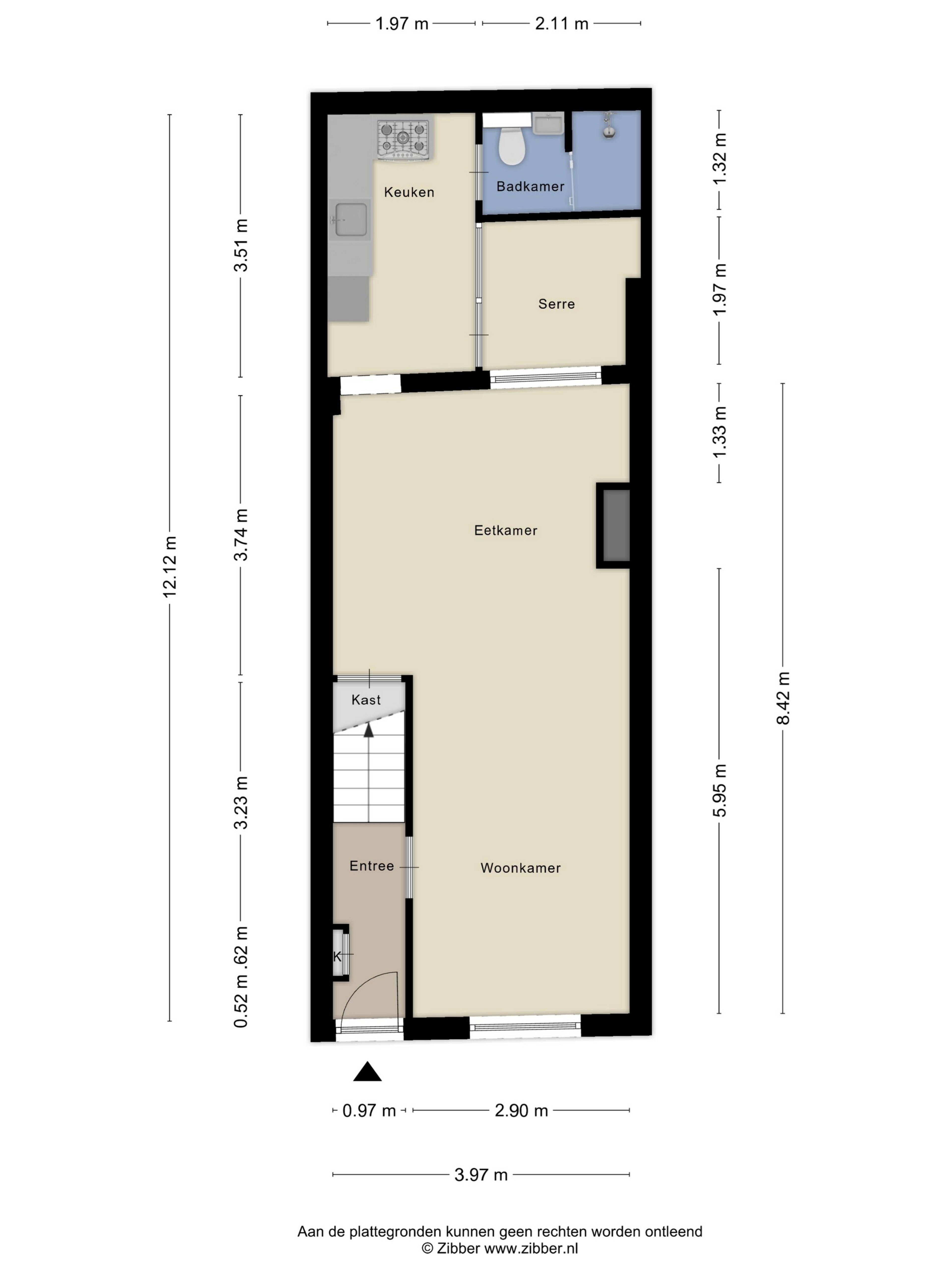
Begane grond
Via de entree kom je in de hal met meterkast en trapopgang naar de eerste verdieping. De lichte en sfeervolle woonkamer heeft een mooie parketvloer en veel natuurlijk lichtinval. Aan de achterzijde van de woning bevindt zich de nette keuken, uitgerust met diverse inbouwapparatuur, waaronder een koel-/vriescombinatie, 4-pits gaskookstel, afzuigkap, combi-oven, vaatwasser en aansluiting voor de wasmachine. Vanuit de keuken heb je toegang tot de fijne badkamer, voorzien van een inloopdouche, wastafel en toilet. Zowel de keuken als de badkamer beschikken over vloerverwarming voor extra comfort. Vanuit de keuken loop je ook zo het overdekte binnenplaatsje in, een heerlijke plek om van buiten te genieten.
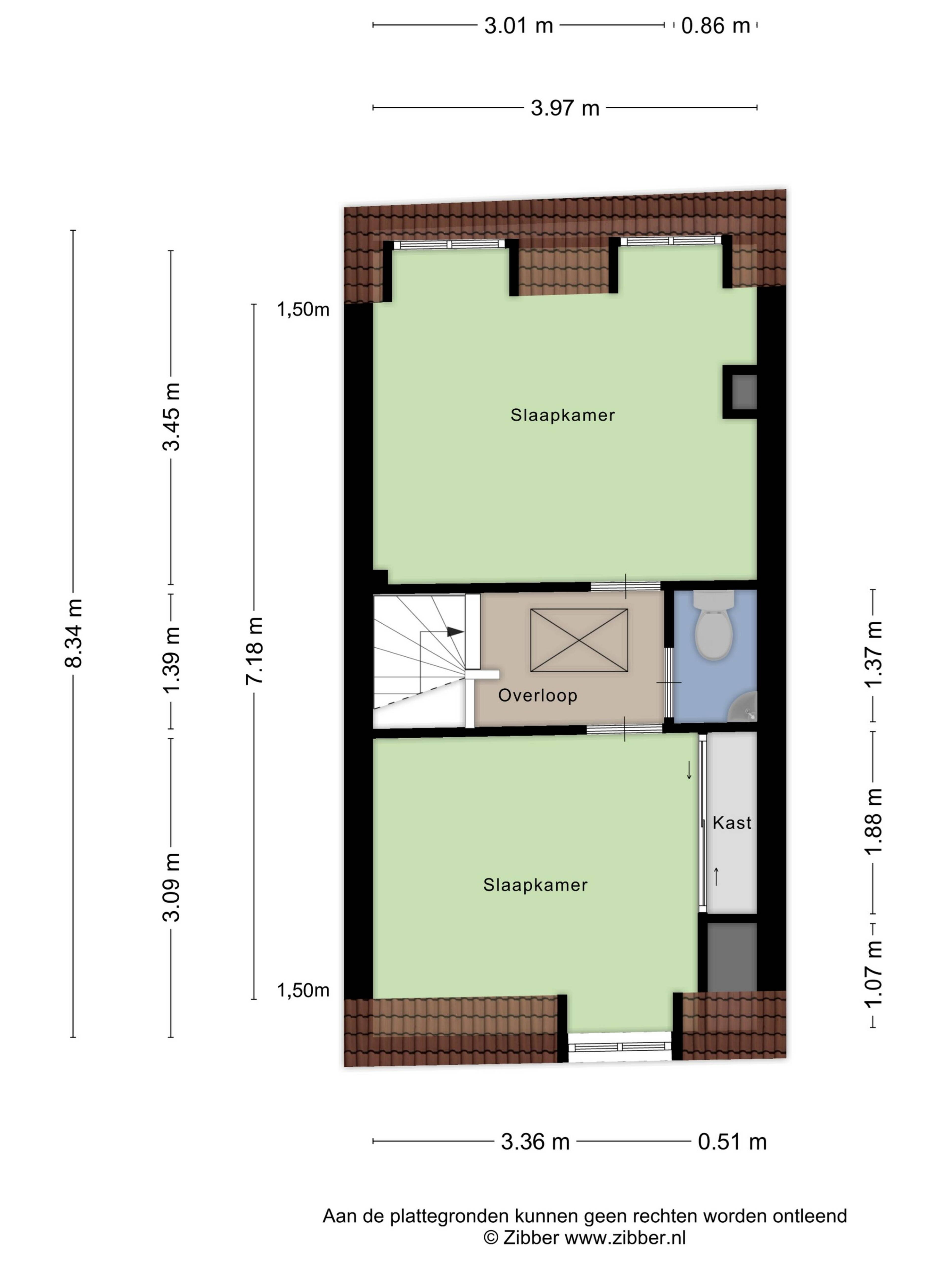
Eerste verdieping
De ruime overloop geeft toegang tot twee slaapkamers. De slaapkamer aan de achterzijde is royaal van formaat en kan eventueel worden opgesplitst in twee kamers. De slaapkamer aan de voorzijde beschikt over een inbouwkast. Op de overloop bevindt zich daarnaast een separaat toilet met fonteintje.
Vliering
Via een vlizotrap is de ruime vliering bereikbaar, waar de cv-ketel is opgesteld en extra bergruimte aanwezig is.
Deze informatie is met de grootst mogelijke zorg samengesteld. Echter, wij aanvaarden geen aansprakelijkheid voor eventuele onvolledigheden of onjuistheden. Voor woningen ouder dan 30 jaar hanteren wij standaard een asbest- en ouderdomsclausule.
English text:
Atmospheric living in a courtyard street with Leiden’s historic city center just around the corner.
Imagine living in a quiet little courtyard street, while the lively city center of Leiden is just a short walk away. In the popular Groenoord neighborhood, you’ll find this charming home with a delightful living room, two bedrooms, a modern bathroom, and a cozy patio. Want to sit outside and enjoy the atmosphere? Here you can, thanks to the car-free street.
Key features
•Built in 1910
•Living area approx. 74 m²
•Energy label E
•Courtyard-style home
•City center within walking distance
•Bright and spacious living room
•2 bedrooms
•Modern bathroom
•Roof insulation and fully fitted with double-glazed synthetic window frames
•Patio
•Handover in consultation
Location
The property is located in Raamstraat, a charming courtyard-like street in the sought-after Groenoord district, where peace and atmosphere come together. Despite its tranquil setting, all daily amenities are close at hand: from supermarkets and specialty shops to health centers and schools. Within just a few minutes, you can walk into Leiden’s historic city center, with its lively terraces, restaurants, boutiques, museums, and the characteristic Haarlemmerstraat shopping street.
Cultural and sports activities are also nearby, including theaters, cinemas, sports clubs, and the popular Valkenburg Park. Leiden Central Station is within walking distance, and the nearby A4 and A44 highways provide excellent connections to the region and the coast.
Ground floor
Through the entrance, you enter the hallway with meter cupboard and staircase to the first floor. The bright and atmospheric living room features a beautiful parquet floor and plenty of natural light. At the rear of the house is the neat kitchen, equipped with built-in appliances including a fridge-freezer, 4-burner gas hob, extractor hood, combi-oven, dishwasher, and washing machine connection. From the kitchen, you have access to the comfortable bathroom, fitted with a walk-in shower, sink, and toilet. Both the kitchen and the bathroom have underfloor heating for extra comfort. The kitchen also opens onto the covered patio, a lovely spot to enjoy the outdoors.
First floor
The spacious landing provides access to two bedrooms. The bedroom at the rear is generously sized and could potentially be divided into two rooms. The bedroom at the front comes with a built-in wardrobe. On the landing, you will also find a separate toilet with a small washbasin.
Attic
A loft ladder provides access to the spacious attic, where the central heating boiler is located and additional storage space is available.
This information has been compiled with the greatest possible care. However, we do not accept any liability for any inaccuracies or omissions. For properties older than 30 years, we apply a standard asbestos and age clause.