See English text below
Een verrassend ruime en lichte twee-onder-een-kap gezinswoning, gelegen in de geliefde Merenwijk in Leiden. De woning beschikt over maar liefst vijf (slaap)kamers, twee badkamers en een heerlijk zonnige, op het zuiden gelegen tuin met berging en achterom. Deze uitgebouwde en sfeervolle woning is niet alleen ruim en comfortabel maar ook duurzaam!
De Lauwerbes ligt in een rustige wijk met alle belangrijke voorzieningen op korte afstand: winkelcentrum, gezondheidscentrum, horecagelegenheden en zelfs een kinderboerderij. Daarnaast zijn er verschillende scholen in de buurt en sta je in 10 minuten fietsen in het historische centrum van Leiden. De Veerpolder en de Kagerplassen liggen op slechts een paar minuten wandelen. Ook het strand is met de auto in 20 minuten te bereiken. De bushalte ligt om de hoek en de uitvalswegen naar Amsterdam, Den Haag en Utrecht zijn eenvoudig te bereiken.
Bekijk ook de bezichtigingsvideo!
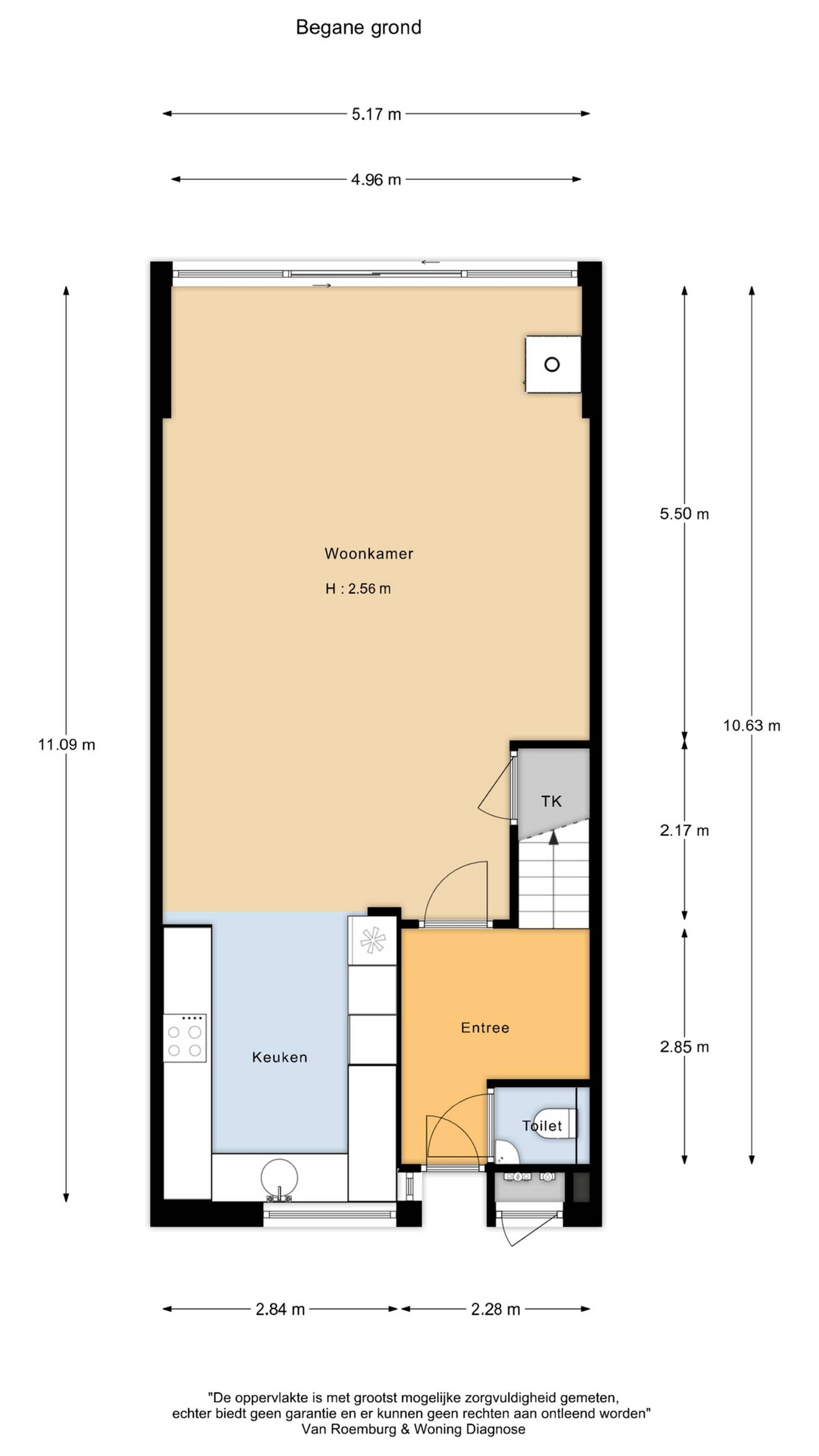
Indeling:
Entree met een royale hal. Hier is een toilet met fonteintje en toegang tot de fraaie uitgebouwde woonkamer. Op de vloer ligt een massief eikenhoutenparket. Voor zowel sfeer als warmte staat er een spekstenen houtkachel, die de hele ruimte goed verwarmt. De uitbouw is voorzien van een grote schuifpui naar de tuin op het zuiden, waardoor de ruimte heerlijk licht en zonnig is. De royale en moderne keuken is uitgerust met een Dekton werkblad en diverse inbouwapparatuur, waaronder een inductiekookplaat met geïntegreerde afzuiging, een combi-stoomoven/magnetron, een vaatwasser en een koel-vriescombinatie.
De sfeervolle, op het zuiden gelegen tuin biedt een groot terras, fraaie beplanting en een praktische achterom. Daarnaast heeft de tuin geen tot weinig inkijk van achterburen. U zit echt vrij. De berging is voorzien van elektra en biedt ruimte voor meerdere fietsen. Over de hele breedte van de woonkamer is een elektrisch zonnescherm aanwezig.
1e Etage:
De overloop brengt de 2 ruime slaapkamers (voorheen 3 slaapkamers) samen. De doorgebroken slaapkamer wordt nu gebruikt als walk-in closet. De badkamer heeft een ligbad, wastafel, 2e toilet, wasmachine/drogeraansluiting en mechanische ventilatie. Ook biedt deze veel opbergruimte. De gehele etage is voorzien van eikenhouten lamelparket en heeft een sfeervolle en lichte uitstraling.
2e Etage:
Ruime overloop met cv-opstelling, een lichtkoepel en toegang tot de drie kamers en de tweede royale badkamer. De tweede etage heeft een volledige dakuitbouw over de gehele lengte. De voor- en achterkamer zijn voorzien van een vaste kastenwand. Deze zijn tevens de ombouw voor de radiatoren. In de badkamer vindt u een inloopdouche, wastafel en 3e toilet. De gehele etage is voorzien van hetzelfde eikenhouten lamelparket.
Bijzonderheden:
- Bouwjaar 1977
- Woonoppervlak 148 m2
- Externe bergruimte: 7 m2 (berging tuin)
- Inhoud: 519 m3
- Perceel: 120 m2
- 5 slaapkamers (voorheen 6)
- 2 badkamers en 3 toiletten;
- Ruime en zonnige achtertuin op het zuiden, met stenen berging;
- Energielabel B;
- Dubbele beglazing, muur- en dakisolatie;
- Elektrische buitenzonwering begane grond;
- 10 zonnepanelen en 2 zonnecollectoren met zonneboiler;
- Energiebesparende spekstenen kachel;
- Combi ketel Remeha (2023)
- Bouwkundige keuring aanwezig
- Gratis parkeergelegenheid direct voor het huis;
- Oplevering in overleg.
Bij woningen ouder dan 30 jaar hanteren wij standaard een ouderdoms- en asbestclausule.
___________________________________________________________________________________________________
A surprisingly spacious and bright semi-detached family home, located in the sought-after Merenwijk area of Leiden. The house offers no fewer than five (bed)rooms, two bathrooms, and a wonderfully sunny south-facing garden with storage and rear access. This extended and charming home is not only spacious and comfortable but also highly sustainable!
Location
De Lauwerbes is situated in a quiet neighborhood with all essential amenities close by: a shopping center, healthcare facilities, restaurants, and even a petting zoo. Several schools are located nearby, and the historic center of Leiden can be reached by bike in just 10 minutes. The Veerpolder nature area and the Kagerplassen lakes are only a short walk away, and the beach is just a 20-minute drive. A bus stop is around the corner, and major roads to Amsterdam, The Hague, and Utrecht are easily accessible.
Layout
Ground floor
Entrance into a spacious hallway with a toilet and sink, and access to the beautiful extended living room. The floor is finished with solid oak parquet. For both warmth and atmosphere, there is a soapstone wood-burning stove that heats the entire space efficiently. The extension features large sliding doors to the south-facing garden, allowing plenty of natural light to fill the room. The generous and modern kitchen is equipped with a Dekton worktop and various built-in appliances, including an induction hob with integrated extractor, a combination steam oven/microwave, a dishwasher, and a fridge-freezer.
The charming south-facing garden offers a large terrace, attractive landscaping, and a convenient rear entrance. The garden provides excellent privacy with little to no overlooking from neighboring houses, giving a true sense of freedom. The storage shed, equipped with electricity, offers ample space for multiple bicycles. Across the full width of the living room, there is an electric awning for shade on sunny days.
First floor
The landing connects two spacious bedrooms (previously three). The combined room is currently used as a walk-in closet. The bathroom features a bathtub, washbasin, second toilet, washer/dryer connection, mechanical ventilation, and generous storage space. The entire floor is finished with oak engineered parquet, giving it a warm and light ambiance.
Second floor
A spacious landing with central heating system, skylight, and access to three rooms and the second large bathroom. This floor features a full-width dormer extension. Both the front and rear rooms are fitted with built-in wardrobes that also serve as radiator covers. The bathroom includes a walk-in shower, washbasin, and third toilet. The same oak engineered parquet continues throughout this floor.
Details:
Year of construction: 1977
Living area: 148 m²
External storage: 7 m² (garden shed)
Volume: 519 m³
Plot size: 120 m²
5 bedrooms (formerly 6)
2 bathrooms and 3 toilets
Spacious and sunny south-facing garden with brick shed
Energy label B
Double glazing, wall and roof insulation
Electric sunshade on the ground floor
10 solar panels and 2 solar collectors with solar water heater
Energy-efficient soapstone wood stove
Remeha combi boiler (2023)
Building inspection report available
Free parking directly in front of the house
Handover in consultation
Please note: For properties older than 30 years, an age and asbestos clause is standardly applied.