Royale eengezinswoning met 5 slaapkamers, zonnige tuin en dakterras in Leiden.
Deze ruime 6-kamer eengezinswoning biedt dankzij de uitbouw op de begane grond en de opbouw op de tweede verdieping bijzonder veel leefruimte, met een totaal gebruiksoppervlak van circa 136 m². De woning beschikt over een lichte woonkamer, moderne keuken en badkamer, vijf slaapkamers, en zowel een voor- als achtertuin.
De woning is gebouwd in de vroege jaren ’90 en daardoor goed geïsoleerd (vloer-, muur- en dakisolatie). In recente jaren is er bovendien veel vernieuwd: de woning is volledig voorzien van kunststof kozijnen met HR++ beglazing, zonnepanelen, en de platte daken van de uitbouw en dakopbouw zijn tevens in de afgelopen jaren vervangen. Hierdoor is deze woning instapklaar en energiezuinig.
De Glenn Millerstraat ligt in een rustige, kindvriendelijke wijk met een kinderboerderij en speeltuin in de buurt. Op slechts tien minuten fietsen bevinden zich de binnenstad van Leiden, het Centraal Station, het LUMC en het Bio Science Park. Ook winkelcentrum De Luifelbaan ligt om de hoek. Dankzij de gunstige ligging ten opzichte van de A4 en A44 zijn steden als Amsterdam, Den Haag en Rotterdam snel bereikbaar.
Indeling
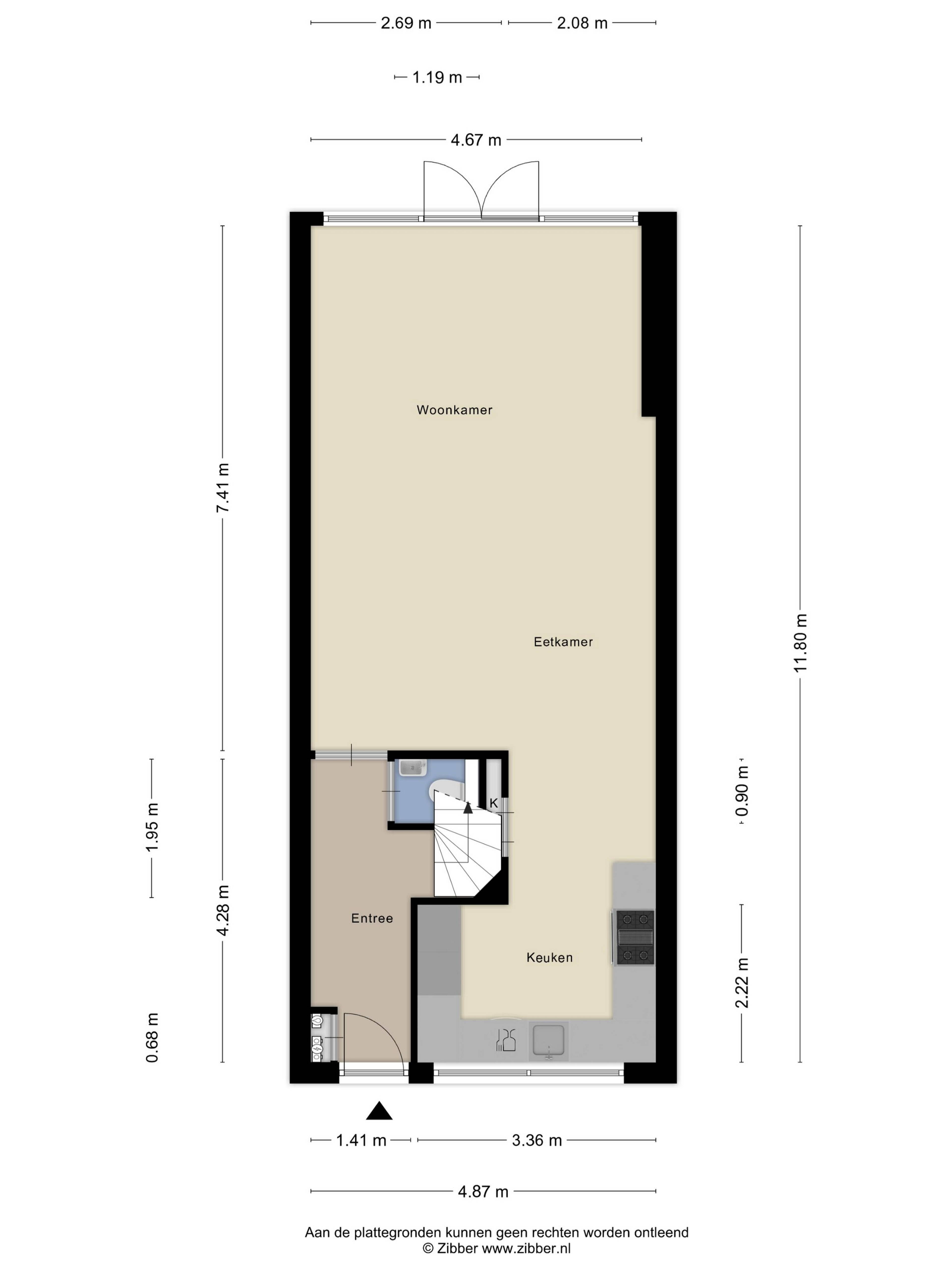
Begane grond
Entree met hal, meterkast, modern toilet met fonteintje en trapopgang naar de eerste verdieping. De royale, aan de achterzijde uitgebouwde woonkamer is heerlijk licht en biedt via openslaande deuren toegang tot de zonnige achtertuin op het westen. De tuin beschikt over een zonnescherm, berging en achterom – ideaal voor fietsen of tuinspullen.
Aan de voorzijde ligt de moderne hoekkeuken, voorzien van diverse inbouwapparatuur, waaronder een koelkast, vriezer, vaatwasser en een 6-pits SMEG-fornuis met grote oven en rvs-afzuigkap.
Eerste verdieping
Overloop met toegang tot alle vertrekken. Aan de voorzijde ligt een ruime slaapkamer met een grote inbouwkast over de gehele breedte van de kamer. Aan de achterzijde bevinden zich nog twee prettige slaapkamers van goed formaat.
De moderne badkamer uit eind 2021 is centraal gelegen en voorzien van een royale inloopdouche, wastafel en tweede toilet. Op de overloop is een praktische wasruimte met aansluitingen voor wasmachine en droger, en tevens de cv-ketel (2022). Daarnaast is er nog een vaste bergkast aanwezig.
Tweede verdieping
Overloop met vaste kast en toegang tot twee royale slaapkamers, gelegen aan de voor- en achterzijde. De hoofd(slaap)kamer bevindt zich aan de achterzijde en biedt toegang tot het zonnige dakterras op het westen – een heerlijke plek om in alle rust van de avondzon te genieten.
Bijzonderheden
Oplevering in overleg, kan snel
Ouderdoms- en asbestclausule van toepassing