Sfeervolle hoekwoning in hartje Leiden – instapklaar, karaktervol en met heerlijk dakterras
In de Herenstraat, midden in het levendige hart van Leiden, staat deze charmante hoekwoning met beschermd stadsgezicht uit 1915, die in 2020 is gerenoveerd naar een gezellige, lichte woning. Een groot pluspunt is het ruime dakterras, waar je de gehele dag van de zon kunt genieten. Een heerlijke plek voor een kop koffie in de ochtend of een borrel bij zonsondergang – midden in de stad, met alle rust en gemak van je eigen buitenruimte.
Bij de renovatie in 2020 is het gehele trappenhuis vernieuwd met daarbij de realisatie van een vaste trapopgang naar de 2e verdieping. De 2e verdieping telt door de beperkte hoogte niet mee in het gebruiksoppervlakte. De ruimte is echter goed als extra kamer, kantoor of logeerruimte te gebruiken. De kunststof kozijnen en dubbel glas door de gehele woning bieden duurzaamheid en comfort.
Indeling:
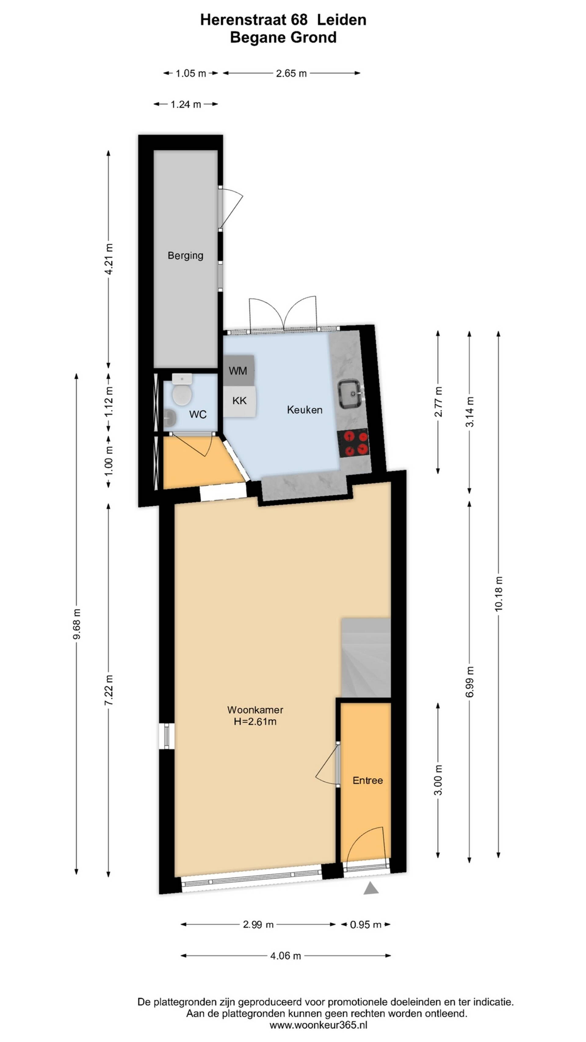
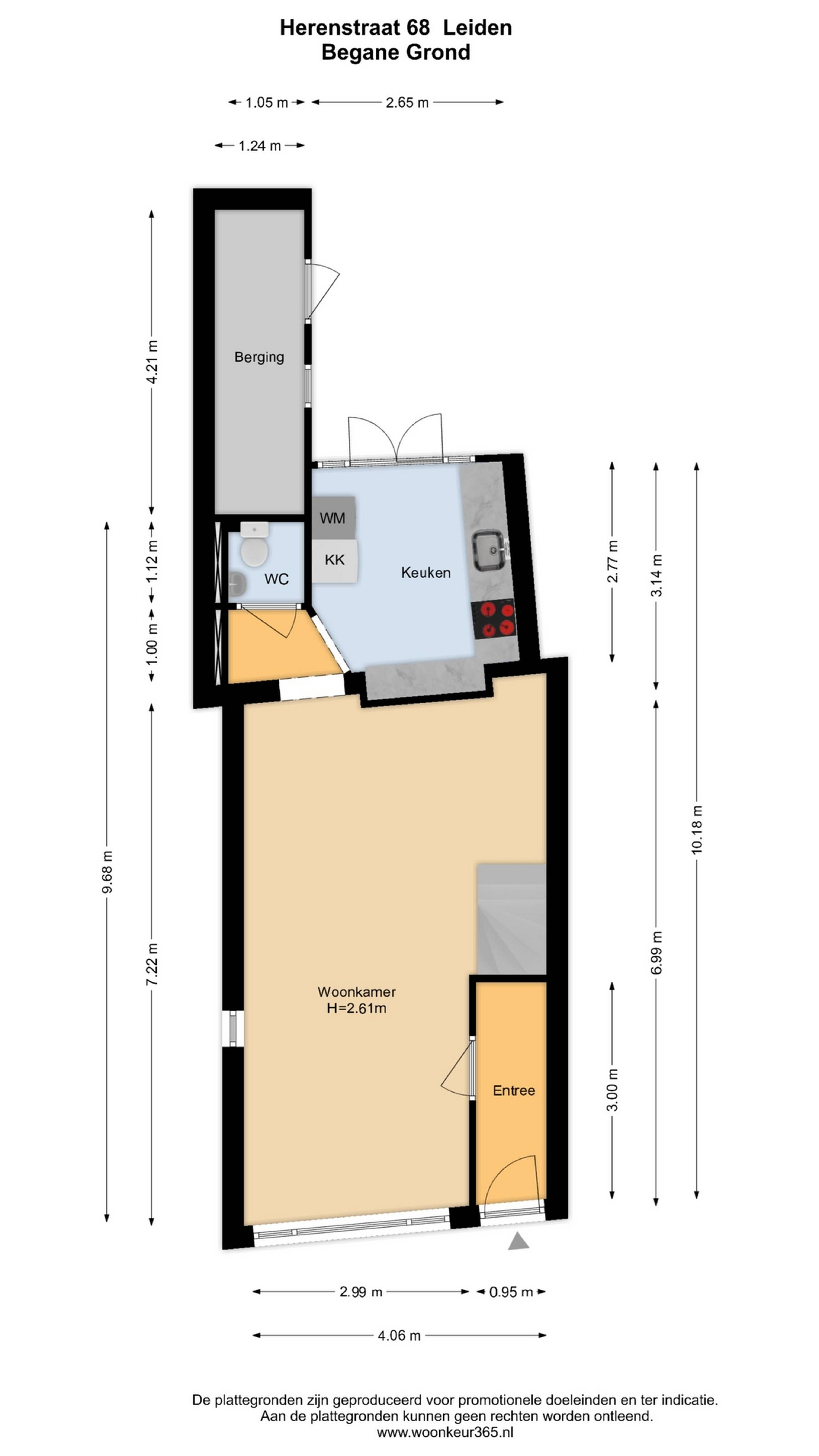
Begane grond:
Na de entree betreed je een kleine hal met toegang tot de trap naar de bovenverdiepingen, de meterkast en de woonkamer. De lichte woonkamer biedt ruimte voor een gezellige zithoek en eettafel, achterin de woning staat een lichte keuken, waarvan de kastdeurtjes in 2020 in een lichte kleur zijn gespoten. Vanuit de keuken is de kleine binnenplaats te bereiken, waar zich de berging de achterom bevinden. Het toilet bevindt zich in een tussenhalletje ter hoogte van de keukenn
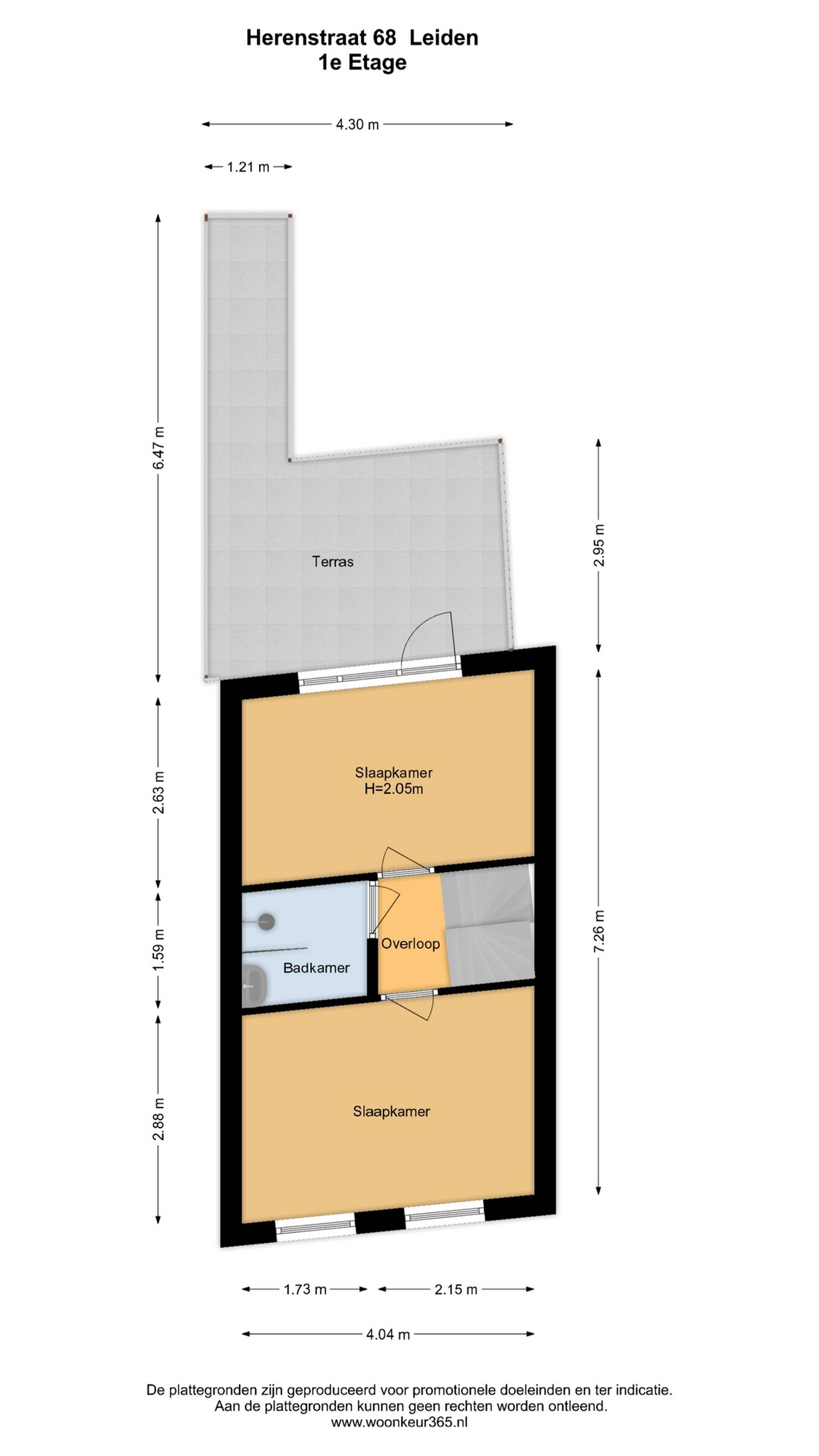
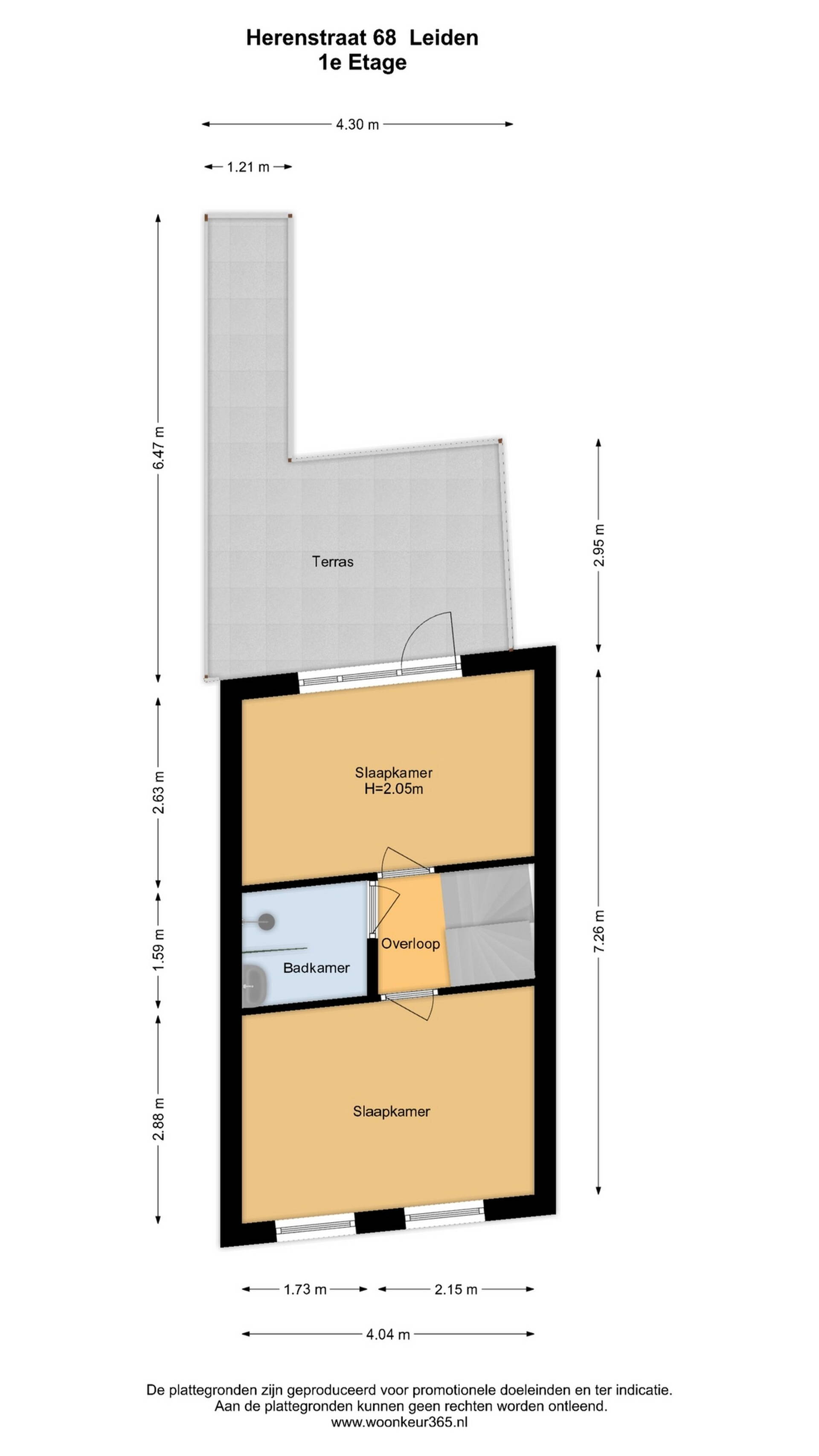
Eerste verdieping:
Boven vind je twee ruime slaapkamers en een moderne badkamer met inloopdouche, wastafelmeubel en designradiator. Vanuit de achter slaapkamer is het ruime, zonnige balkon bereikbaar.
Tweede verdieping:
De tweede verdieping is te bereiken via een vaste trap. Eenmaal boven kom je in een lichte open ruimte, die als slaapkamer, kantoor of bergruimte kan dienen.
Bijzonderheden:
•Bouwjaar 1915
•Gebruiksoppervlakte 71m2 (en een zolder van 9 m2)
•Cv-ketel: Nefit (2024)
•Vernieuwde groepenkast (2020)
•Volledig voorzien van kunststof kozijnen en dubbel glas
•Energielabel F
•Zonnig dakterras
•Centrumlocatie
•Beschermd stadgezicht
Asbestclausule en Ouderdomsclausule van toepassing