English text see below
Zeer ruime, gemoderniseerde hoekwoning met een riante living, 5 (slaap)kamers, een zonnige achtertuin met schuur en achterom, een dakterras en aan de voorzijde parkeerruimte met een elektrische oplader en ruimte voor 2 auto’s. Deze duurzame woning (label A) is op een hoog niveau afgewerkt en beschikt daarnaast over 8 zonnepanelen, isolatie en volledig dubbel glas!
De Ann Burtonstraat is een rustige, groene straat in de kindvriendelijke wijk “De Coebel”, een wijk zonder doorgaand verkeer. De woning heeft een zeer gunstige ligging, met alle voorzieningen binnen handbereik. Aan het einde van de wijk ligt het water van de Korte Vliet, waar u volop kunt recreëren. Daarnaast bevinden het Winkelcentrum De Luifelbaan en het bruisende centrum van Leiden — met zijn vele winkels, restaurants, grachten en musea — zich op korte fietsafstand. Ook diverse basis- en middelbare (internationale) scholen en sportverenigingen liggen om de hoek. De uitvalswegen A4, A44 en N11 zijn bovendien eenvoudig bereikbaar.
Indeling:
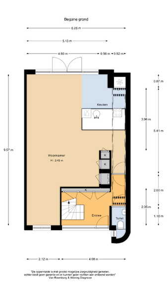
Begane grond:
Voortuin, met eigen laadpaal en ruimte om 2 auto’s op eigen terrein te parkeren.
Entree:
Zeer ruime en lichte hal met inbouwkasten en een modern toilet met fonteintje. Via een lange hal met glazen dak/lichtkoepel en een glazen taatsdeur bereik je de riante tuingerichte woonkamer met een fraaie gietvloer met vloerverwarming (gehele begane grond) en openslaande deuren naar de zonnige achtertuin op het westen. Er zijn meerdere vaste kasten mooi weggewerkt die voor extra bergruimte zorgen. De mooie moderne keuken is voorzien van diverse luxe inbouw apparatuur zoals een modern 3 pits-gasfornuis , een Quooker en een ingebouwde hoge kastenwand met o.a. een stoomoven en koelkast. Het grote kookeiland heeft een prachtig natuurstenen blad.
De zonnige tuin (W) is extra breed door de hoekligging en heeft een ruim terras direct aan de woonkamer, een gezellig zitje aan de achterzijde en is voorzien van mooie beplanting en Leilinden. Daarnaast is er een vrijstaande stenen berging, voorzien van sedumdak, en een achterom.
1e Verdieping:
Via de trapopgang bereik je de zeer ruime overloop met tevens de mogelijkheid voor bijvoorbeeld een extra werkplek, logeerbed of tv-hoek. De vele ramen in het trappenhuis zorgen ook hier voor veel licht en ruimte. Vanuit de overloop bereik je de drie fijne slaapkamers, de badkamer en de technische/CV-ruimte en wasmachine aansluiting. De moderne badkamer heeft een ligbad, aparte douche in een ronde aparte ruimte, een wastafelmeubel en een toilet. De badkamer is voorzien van vloerverwarming en heeft een raam.
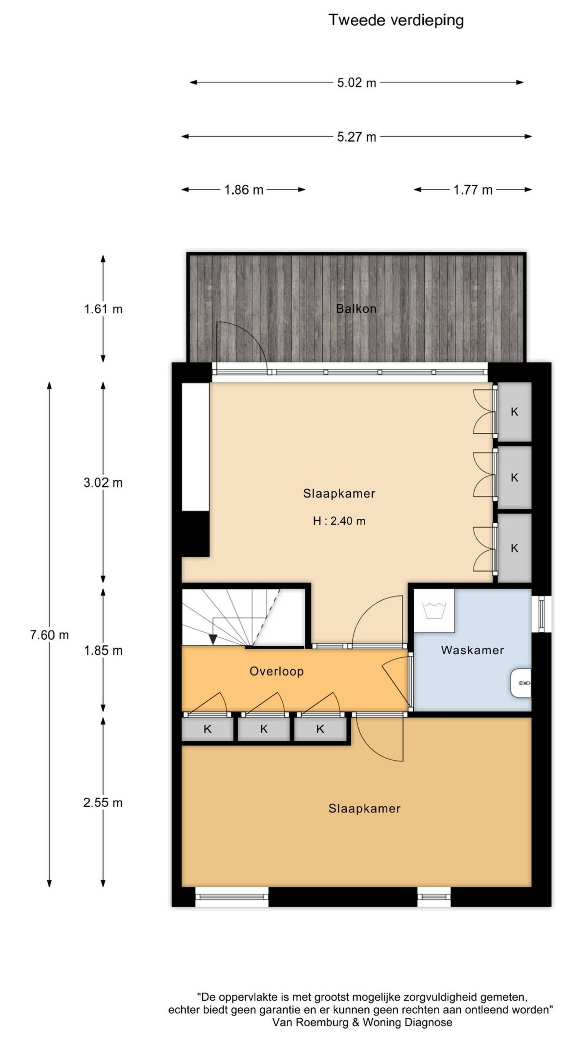
2e verdieping:
Deze grote dakopbouw is in 2001 gerealiseerd en geeft de woning een volledige extra verdieping. Vanuit de overloop met vaste kasten bereik je een zeer ruimte slaapkamer aan de achterzijde over de gehele breedte met een fraaie op maat gemaakte kastenwand ingebouwde verlichting en toegang tot een zonnig dakterras. Aan de voorzijde bevindt nog een slaapkamer van een mooi formaat met ingebouwde verlichting en een op maat gemaakte bedopbouw met veel bergruimte.
Daarnaast bevindt zich op deze woonlaag een extra waskamer met een wastafel en de opstelling voor de wasmachine en droger. Hier zou eenvoudig een tweede badkamer kunnen worden gerealiseerd.
Bijzonderheden:
- Bouwjaar 1991
- Gebruiksoppervlakte 150 m2
- Perceeloppervlakte 202 m2
- Gebouw gebonden buitenruimte 8 m2 (dakterras)
- Externe bergruimte 7 m2 (berging tuin)
- Inhoud 509 m3
- Nefit CV-ketel, bouwjaar 2018
- Meterkast met 10 groepen
- 8 zonnepanelen
- Overal dubbelglas
- Energielabel A
- Oplevering in overleg
Bij woningen ouder dan 30 jaar hanteren wij standaard een ouderdomsclausule.
-------------------------------------------------------------------------------------------------------------------------------------------------
Very spacious, modernised corner house with a generous living room, 5 (bed)rooms, a sunny back garden with shed and back entrance, a roof terrace, and parking space at the front with an electric charging station and room for two cars. This sustainable home (energy label A) is finished to a high standard and also features 8 solar panels, insulation and full double glazing!
Ann Burtonstraat is a quiet, green street in the child-friendly neighbourhood “De Coebel”, an area without through traffic. The house is very conveniently located, with all amenities within easy reach. At the end of the neighbourhood lies the Korte Vliet canal, offering plenty of recreational opportunities. Shopping centre De Luifelbaan and the vibrant city centre of Leiden — with its many shops, restaurants, canals and museums — are only a short bike ride away. Several primary and secondary (international) schools as well as sports clubs are close by. The A4, A44 and N11 motorways are also easily accessible.
Layout:
Ground floor:
Front garden with private charging station and space to park two cars on the property.
Entrance:
Very spacious and bright hall with built-in cupboards and a modern toilet with washbasin. A long hallway with a glass roof/light dome and a glass pivot door leads to the large, garden-facing living room, featuring a beautiful cast floor with underfloor heating (throughout the entire ground floor) and French doors opening onto the sunny west-facing back garden. Several built-in cupboards provide ample storage space.
The attractive, modern kitchen is equipped with various luxury built-in appliances, such as a modern 3-burner gas hob, a Quooker, and a tall built-in cabinet wall with, among other things, a steam oven and refrigerator. The large kitchen island has a beautiful natural stone countertop.
The sunny garden (west-facing) is extra wide due to the corner location and features a spacious terrace directly off the living room, an additional cosy seating area at the rear, and attractive planting including espalier lime trees. There is also a detached brick shed with a sedum roof and a back entrance.
First floor:
The staircase leads to the very spacious landing, which also offers room for an extra workspace, guest bed or TV corner. The many windows in the stairwell ensure plenty of light and a sense of space. From the landing you access three comfortable bedrooms, the bathroom, and the technical/boiler room with washing machine connection.
The modern bathroom features a bathtub, a separate shower in a round enclosed space, a washbasin unit and a toilet. The bathroom has underfloor heating and a window.
Second floor:
This large rooftop extension was built in 2001 and creates a full additional storey. From the landing with built-in cupboards you reach a very spacious bedroom at the rear spanning the entire width of the house, with a custom-made wardrobe wall with built-in lighting and access to a sunny roof terrace. At the front there is another well-sized bedroom with built-in lighting and a custom-made bed structure offering plenty of storage space.
This floor also includes an additional laundry room with a sink and the washing machine and dryer setup. A second bathroom could easily be created here.
Details:
- Year of construction: 1991
- Usable living area: 150 m²
- Plot size: 202 m²
- Building-related outdoor space: 8 m² (roof terrace)
- External storage: 7 m² (garden shed)
- Volume: 509 m³
- Nefit central heating boiler, 2018
- Electrical panel with 10 circuits
- 8 solar panels
- Fully double glazed
- Energy label A
- Transfer in consultation
For homes older than 30 years, we apply a standard age clause.