See English below
In de Rijndijkbuurt, aan de rand van de Professorenwijk, staat deze sfeervolle en uitgebouwde 4-kamerwoning met een heerlijke achtertuin die uitkijkt op veel groen. Op de eerste verdieping bevindt zich een fijn dakterras. Dankzij de dakopbouw is er bovendien extra veel ruimte gecreëerd. Kortom: een lichte en comfortabele gezinswoning op een prettige locatie!
De Rijndijkstraat ligt in een fijne buurt en op korte fietsafstand van het historische centrum van Leiden met de vele grachten, restaurants, winkels en musea. In de directe omgeving vind je kinderopvang, basis- en middelbare scholen, diverse sportverenigingen (hockey, tennis en voetbal) en Park Cronestein, NS-stations Lammenschans en Leiden Centraal liggen op respectievelijk 5 en 10 minuten fietsen en de uitvalswegen A4/N11 zijn ook gemakkelijk te bereiken.
Bekijk ook de bezichtigingsvideo!
Indeling:
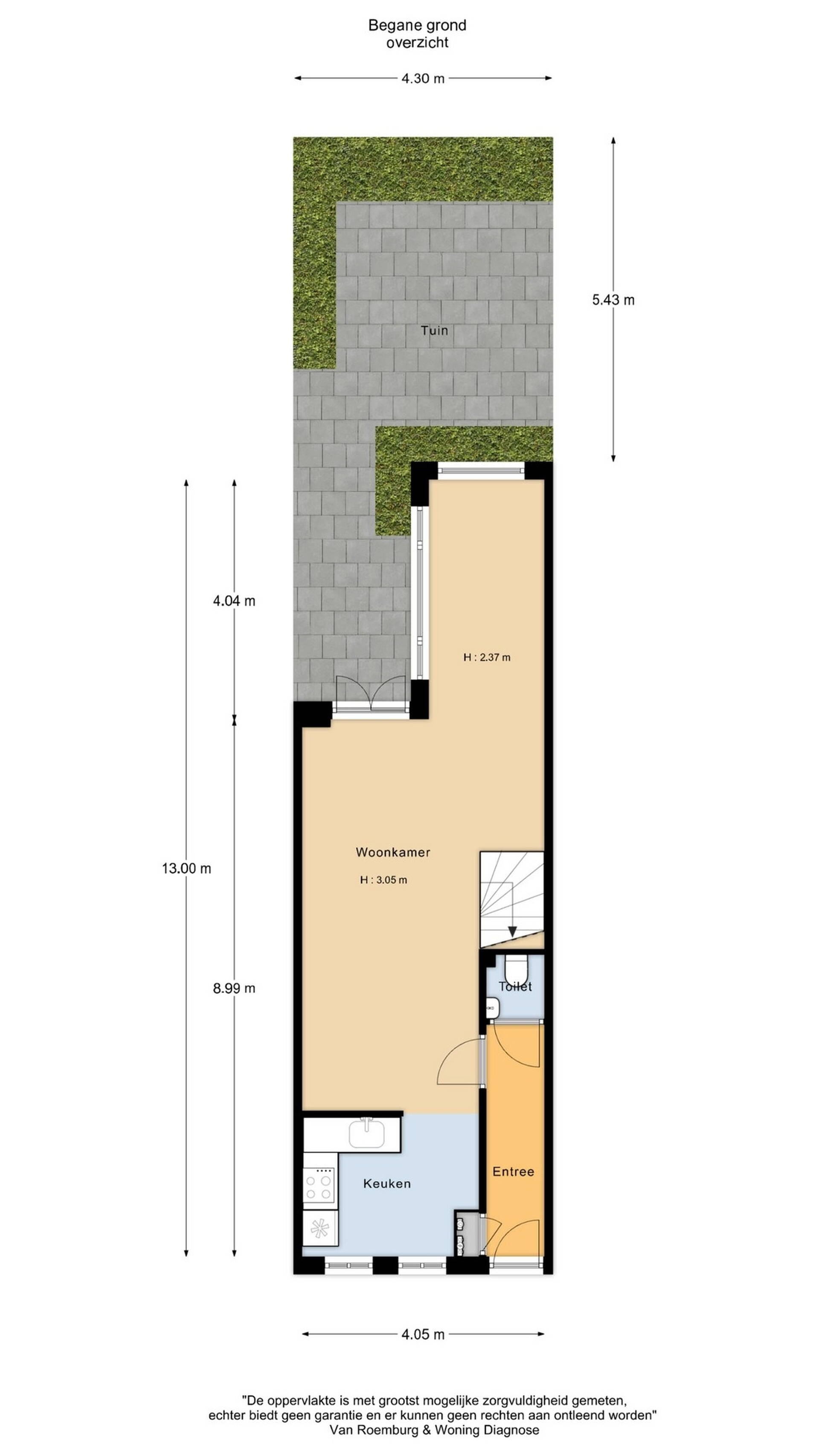
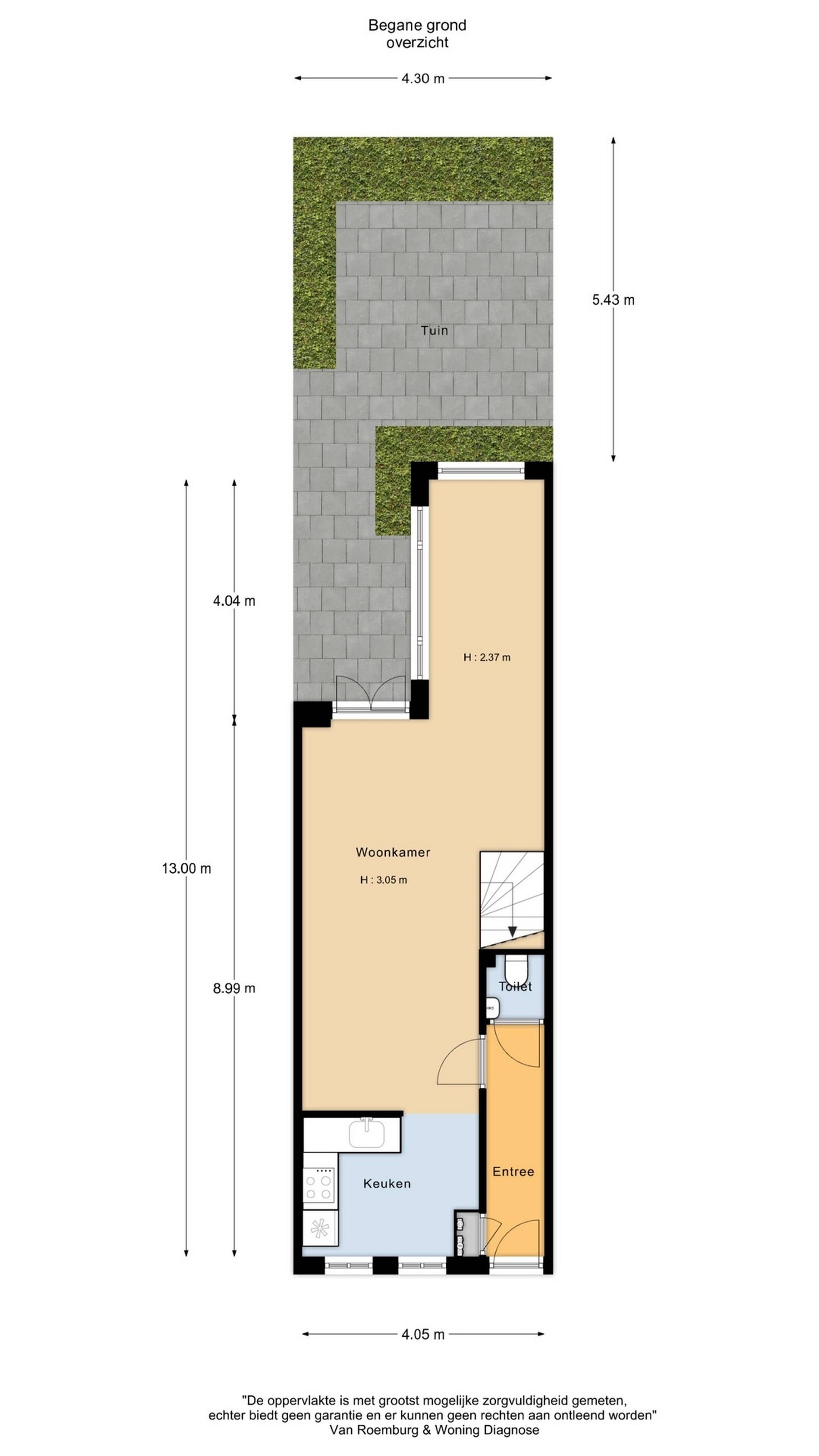
Begane grond:
Entree, hal met een originele granitovloer en een toilet met fonteintje. Ruime uitgebouwde woonkamer met een hoog plafond en een fraaie uitbouw aan de achterzijde met grote ramen waardoor de ruimte heerlijk licht is. Aan de voorzijde vind je een moderne keuken (2019) voorzien van diverse inbouwapparatuur o.a. een 4-pits gasfornuis, combi oven/magnetron, koelkast/vriezer, vaatwasser, een grote spoelbak en een ingebouwde afzuigkap in de hoge houten bovenkastjes.
Vanuit de woonkamer bereik je via openslaande deuren de L-vormige achtertuin. Deze heerlijke tuin (NW) biedt volop ruimte voor zowel een eet- als een loungegedeelte. De weelderige beplanting bestaat onder meer uit een grote vijgenboom, druifranken die over de pergola groeien en een blauwe regen. Door de vele bomen op aangrenzende percelen is dit ook in de zomer een fijne, beschutte plek met voldoende schaduw. Het is een groene, sfeervolle stadstuin die veel privacy biedt.
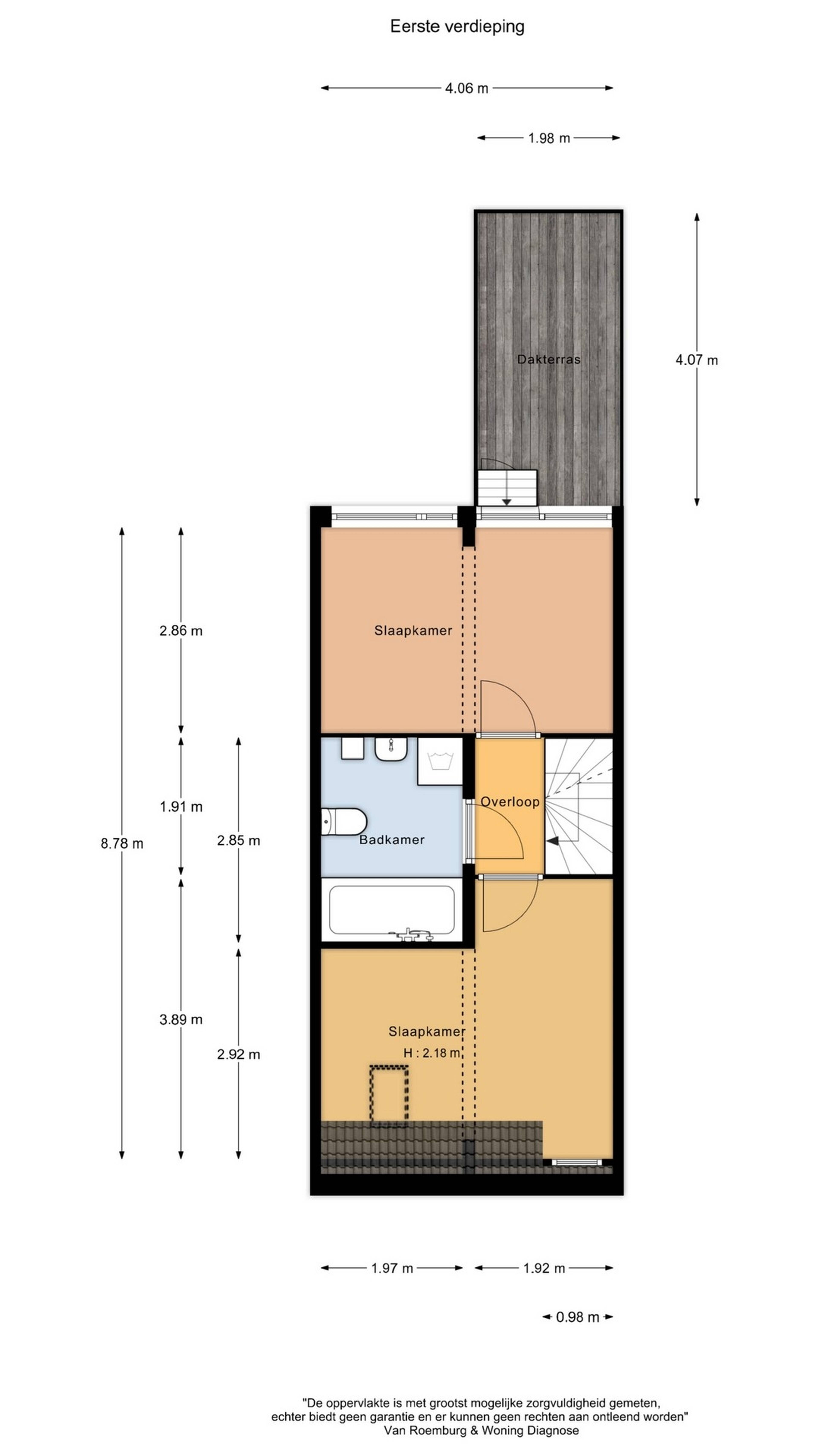
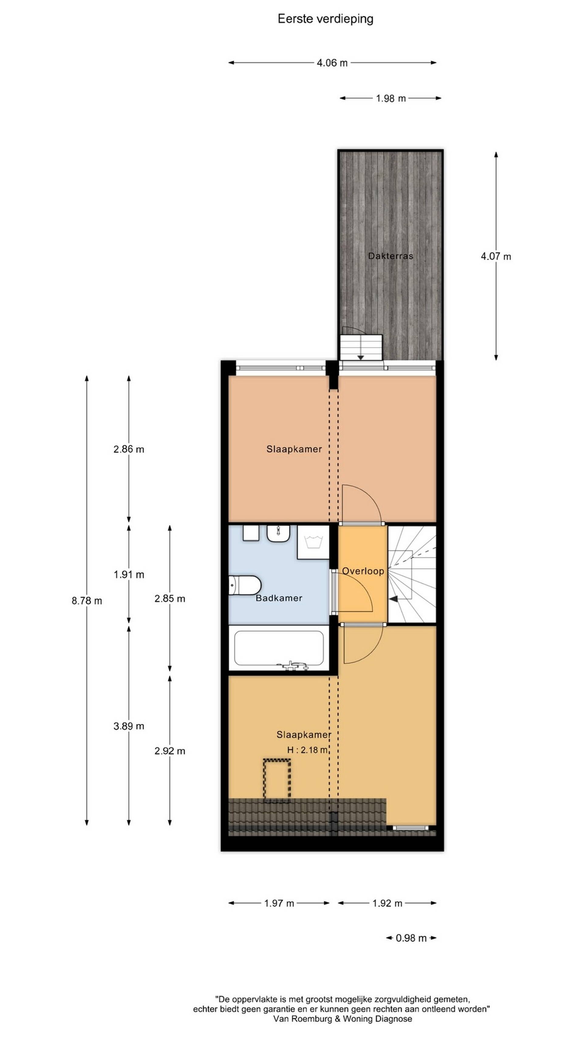
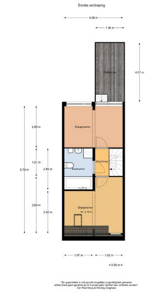
1e verdieping:
Overloop. Een fijne slaapkamer aan de voorzijde, voorzien van origineel balkenplafond en twee ramen, waaronder één Velux dakvenster. De ruime en lichte slaapkamer aan de achterzijde is tevens voorzien van balkenplafond en heeft een deur naar een gezellig dakterras.
De verrassend ruime en moderne badkamer is fraai betegeld en voorzien van een wastafelmeubel, toilet, ligbad met douche en glazen wand, wasmachineaansluiting en mechanische ventilatie. De gehele verdieping is voorzien van een mooie laminaatvloer.
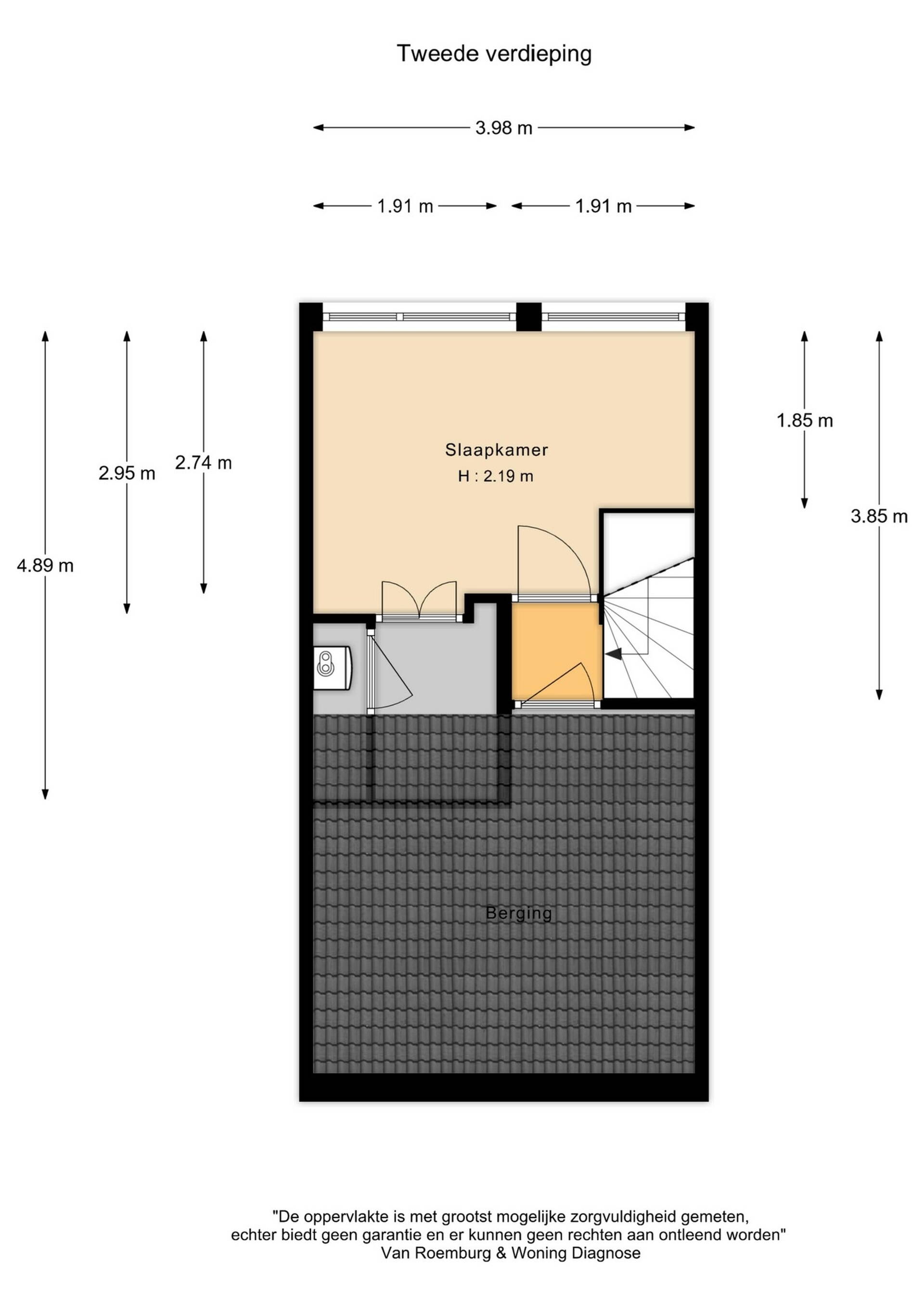
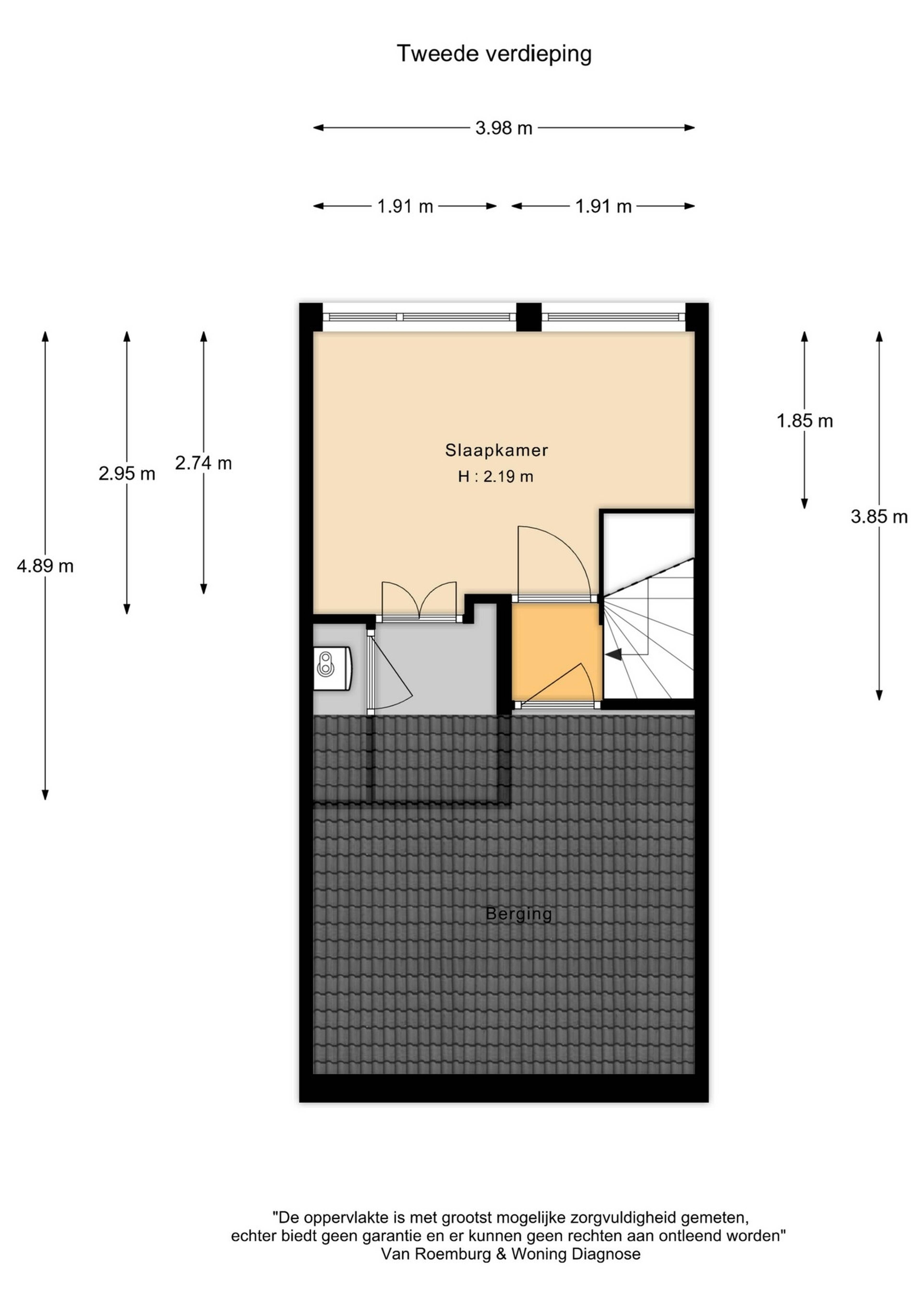
2e verdieping:
Via een vaste trap bereik je de overloop met ruime bergkast. Aan de achterzijde bevindt zich een ruime, lichte slaapkamer met elektrisch zonnescreen aan de buitenzijde en toegang tot een royale kast + bergruimte waar de CV ketel opstelling bevindt. Ook deze woonlaag is voorzien van een mooie laminaatvloer.
Bijzonderheden:
- Bouwjaar ca. 1920
- Beschermd stadsgezicht
- Gebruiksoppervlakte 94 m2
- Gebouw gebonden buitenruimte 8 m2 (dakterras)
- Inhoud 238 m3
- Perceeloppervlakte 87 m2
- Meterkast met 8 groepen (smelt) en 3 fasen groep (krachtstroom)
- CV ketel Atag Blauwe Engel 2, bouwjaar 2006
- Dakopbouw 2de verdieping (met sedum dak)
- Elektrisch screen 2e verdieping achterzijde
- Volledig dubbelglas
- Hoog plafond begane grond
- Energielabel C
- Bouwtechnisch rapport aanwezig
- Betaald parkeren (vergunning ca. € 61,- per jaar, geen wachtlijst)
- Oplevering in overleg
Bij woningen ouder dan 30 jaar hanteren wij standaard een ouderdoms- en asbestclausule.
__________________________________________________________________________________________
In the Rijndijkbuurt, on the edge of the Professorenwijk, you will find this charming and extended 4-room home with a delightful backyard overlooking lush greenery. On the first floor, there is a lovely roof terrace. Thanks to the roof extension, additional space has been created. In short: a bright and comfortable family home in a pleasant location!
Rijndijkstraat is situated in a friendly neighbourhood and within a short cycling distance of Leiden’s historic city centre, with its many canals, restaurants, shops, and museums. In the immediate vicinity, you will find childcare facilities, primary and secondary schools, various sports clubs (hockey, tennis, and football), and Park Cronesteyn. Lammenschans and Leiden Central railway stations are a 5- and 10-minute bike ride away respectively, and the A4/N11 motorways are also easily accessible.
Make sure to watch the viewing video!
Layout:
Ground floor:
Entrance, hallway with original granite flooring, and a toilet with a small sink. Spacious extended living room with high ceilings and a beautiful rear extension featuring large windows that allow plenty of natural light. At the front is a modern kitchen (2019) equipped with various built-in appliances, including a 4-burner gas hob, combi oven/microwave, fridge/freezer, dishwasher, large sink, and a built-in extractor in the tall wooden upper cabinets.
From the living room, French doors lead to the L-shaped backyard. This lovely garden (NW-facing) offers ample space for both dining and lounging areas. The lush planting includes a large fig tree, grapevines growing over the pergola, and wisteria. Thanks to the many trees on adjacent plots, this is a sheltered spot with plenty of shade in summer. It is a green and atmospheric urban garden that offers plenty of privacy.
First floor:
Landing. A pleasant bedroom at the front featuring original beamed ceiling and two windows, including one Velux roof window. The spacious and bright rear bedroom also has a beamed ceiling and access to a charming roof terrace.
The surprisingly spacious and modern bathroom is beautifully tiled and equipped with a vanity unit, toilet, bathtub with shower and glass screen, washing machine connection, and mechanical ventilation. The entire floor has a stylish laminate finish.
Second floor:
A fixed staircase leads to the landing with a large storage cupboard. At the rear is a spacious, bright bedroom with an electric sun screen on the outside and access to a generous closet + storage area housing the central heating boiler. This floor also features a beautiful laminate floor.
Specifications:
Built around 1920
Located within a protected cityscape
Living area: 94 m²
External space (roof terrace): 8 m²
Volume: 238 m³
Plot size: 87 m2
Fuse box with 8 fuses and 3-phase power supply
Central heating boiler: Atag Blauwe Engel 2, built in 2006
Roof extension on the second floor (with sedum roof)
Electric sun screen on the 2nd floor, rear
Fully double-glazed
High ceilings on ground floor
Energy label C
Structural inspection report available
Paid parking (permit approx. €61 per year, no waiting list)
Completion in consultation
For properties older than 30 years, we apply a standard age and asbestos clause.