English text see below
Ruime en lichte eengezinswoning met vernieuwde dakkapellen, royale tuin en rustige ligging
In een rustige en kindvriendelijke woonwijk ligt deze verrassend ruime en goed onderhouden eengezinswoning met maar liefst 135 m² woonoppervlakte, 5 kamers én een voor- en achtertuin. De woning biedt een zee aan leefruimte, zowel binnen als buiten. De woning is volledig voorzien van dubbel glas en beschikt over een fraai aangelegde voortuin (ZO), die zorgt voor extra afstand tot de straat en daarmee rust en privacy. Aan de achterzijde bevindt zich een ruime tuin met achterom en een praktische stenen berging.
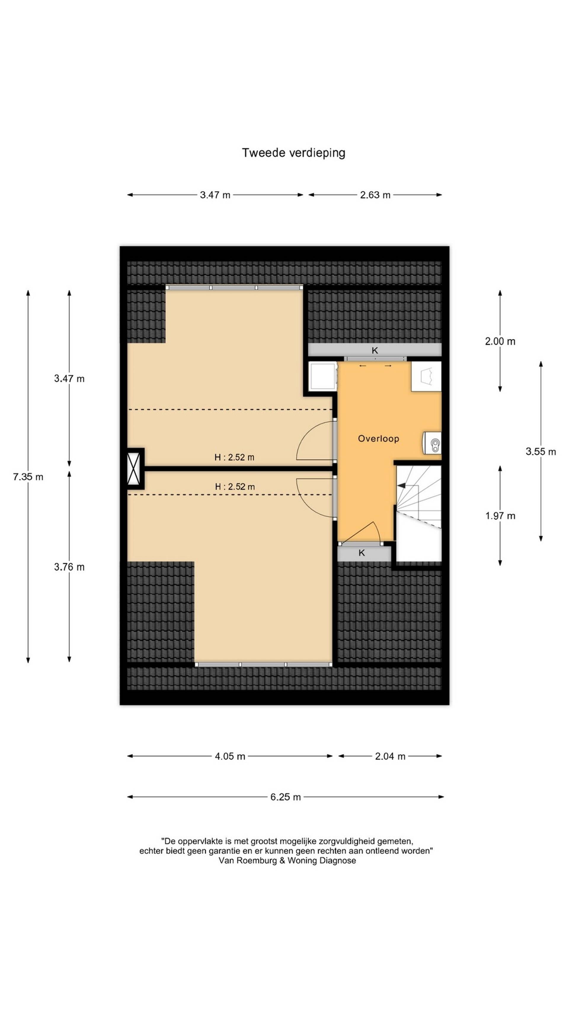
Een groot pluspunt van deze woning is de volledig vernieuwde en geïsoleerde tweede etage, waar recent 2 nieuwe dakkapellen zijn geplaatst. Dit resulteert in opvallend veel licht en extra ruimte op de bovenste verdieping, waardoor deze etage uitstekend te gebruiken is als ruime slaapkamer, werkruimte of hobbyverdieping. De badkamer is voorzien van elektrische vloerverwarming, wat zorgt voor extra wooncomfort.
Indeling:
Via de entree kom je binnen in de hal met toegang tot de woonkamer en keuken. De lichte en ruime woonkamer vormt het hart van het huis en staat in verbinding met de keuken. Vanuit de keuken is er direct toegang tot de achtertuin (NW). De keuken heeft een koelkast, vriezer, oven, en een 5 pits gascomfort.
Op de verdiepingen bevinden zich meerdere goed bemeten slaapkamers en de badkamer, voorzien van elektrische vloerverwarming. De vernieuwde tweede etage met dakkapellen biedt verrassend veel ruimte en daglicht en maakt deze woning uitermate geschikt voor gezinnen of thuiswerkers.
Omgeving & ligging:
De Jan Keldermansstraat is gelegen in een rustige, prettige woonwijk met voornamelijk bestemmingsverkeer. De buurt is geliefd bij gezinnen dankzij het groene karakter, de speelvoorzieningen in de omgeving en de gemoedelijke sfeer. Scholen, kinderopvang, winkels en sportfaciliteiten zijn goed bereikbaar, evenals openbaar vervoer en uitvalswegen. Hier woon je rustig, maar met alle dagelijkse voorzieningen binnen handbereik.
Bijzonderheden:
•Geweldige gezinswoning met maar liefst 135 m² woonoppervlak
•Gebouw gebonden buitenruimte 6m2 (balkon)
•Externe bergruimte 6m2 (berging)
•Inhoud 400m3
•5 kamers
•Voor- én achtertuin (met stenen berging)
•Volledig vernieuwde en geïsoleerde dakkapellen op de tweede etage
•Veel licht en ruimte op de bovenste verdieping
•Volledig voorzien van dubbel glas
•Elektrische vloerverwarming badkamer
•Ruime achtertuin met achterom en stenen berging
•Parkeervergunning ca. € 61,- per jaar
•Rustige en kindvriendelijke woonomgeving
•Bouwkundig rapport aanwezig
•Oplevering in overleg
Een sfeervolle en comfortabele woning op een steenworp afstand van het centrum van Leiden. Maak snel een afspraak voor een bezichtiging!
Bij woningen ouder dan 30 jaar hanteren wij standaard een ouderdoms- en asbestclausule.
-------------------------------------------------------------------------------------------------------------------------------
Spacious and bright family home with renewed dormer windows, generous garden and quiet location.
Situated in a quiet and child-friendly residential area, this surprisingly spacious and well-maintained family home offers no less than 135 m² of living space, 5 rooms, and both a front and rear garden. The property provides an abundance of living space, both indoors and outdoors. The house is fully fitted with double glazing and features a beautifully landscaped front garden (south-east facing), creating extra distance from the street and thus offering peace and privacy. At the rear, there is a spacious garden with rear access and a practical stone storage shed.
A major highlight of this home is the fully renovated and insulated second floor, where two new dormer windows were recently installed. This results in exceptional natural light and additional space on the top floor, making it ideal for use as a spacious bedroom, home office or hobby area. The bathroom is equipped with electric underfloor heating, providing extra comfort.
Layout:
Through the entrance you enter the hallway, which provides access to the living room and kitchen. The bright and spacious living room forms the heart of the home and is connected to the kitchen. From the kitchen there is direct access to the rear garden (north-west facing). The kitchen is equipped with a refrigerator, freezer, oven, and a 5-burner gas hob.
The upper floors contain several well-proportioned bedrooms and the bathroom, which features electric underfloor heating. The renovated second floor with dormer windows offers an impressive amount of space and daylight, making this home particularly suitable for families or people working from home.
Location & surroundings:
Jan Keldermansstraat is located in a quiet and pleasant residential area with mainly local traffic. The neighborhood is popular with families due to its green character, nearby playgrounds and friendly atmosphere. Schools, childcare facilities, shops and sports facilities are easily accessible, as are public transport and main roads. Here you live peacefully, with all daily amenities within easy reach.
Key features:
• Excellent family home with 135 m² of living space
• Building-related outdoor space: 6 m² (balcony)
• External storage space: 6 m² (shed)
• Volume: 400 m³
• 5 rooms
• Front and rear garden (with stone storage shed)
• Fully renewed and insulated dormer windows on the second floor
• Plenty of light and space on the top floor
• Fully fitted with double glazing
• Bathroom with electric underfloor heating
• Spacious rear garden with rear access and stone shed
• Parking permit approx. €61 per year
• Quiet and child-friendly residential environment
• Structural inspection report available
• Delivery in consultation
A charming and comfortable home just a stone’s throw from the center of Leiden. Schedule a viewing soon!
For homes older than 30 years, an age and asbestos clause is standard.