In de gezellige Rijndijkbuurt staat deze charmante stadswoning uit het begin van de vorige eeuw. Een sfeervol huis met karakter, een prettige indeling en fijne lichtinval, gecombineerd met een verrassend diepe achtertuin van bijna 11 meter op het zuidoosten. Dankzij de open ligging is hier vrijwel de gehele dag zon aanwezig. Het historische centrum van Leiden ligt op slechts enkele minuten fietsen. Net als bij meerdere woningen in de straat behoort een toekomstige opbouw tot de mogelijkheden, uiteraard mits de benodigde vergunningen worden verkregen.
Indeling
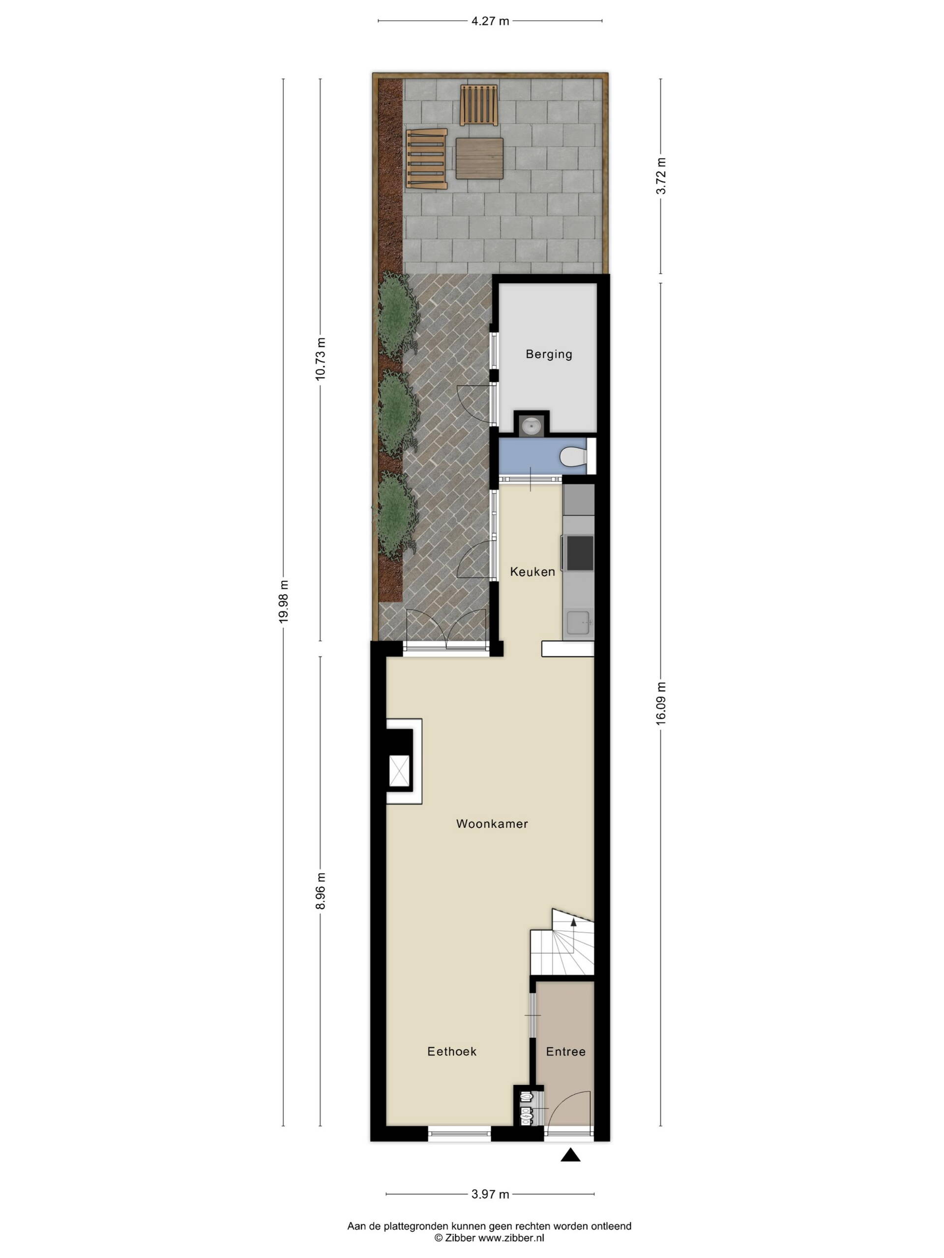
Begane grond
Via de entree wordt de hal bereikt met meterkast en garderoberuimte. De woonkamer is ruim opgezet en biedt volop mogelijkheden voor verschillende indelingen. De eikenhouten vloer, hoge plafonds, open haard en open trap zorgen samen voor een warme en uitnodigende sfeer.
Aan de achterzijde bevindt zich de uitbouw met de keuken, die in 2022 volledig is vernieuwd. Nieuwe apparatuur, kasten, een fris werkblad en een nieuwe spoelunit maken dit tot een functionele en prettige werkruimte. Direct achter de keuken ligt het toilet met hangend closet en fonteintje.
De achtertuin is zowel via de openslaande deuren in de woonkamer als via de keuken bereikbaar. De tuin strekt zich circa 10 meter diep uit en is gelegen op het zuidoosten. Door de diepte en open ligging is hier van de ochtend tot in de avond zon te vinden. Aangrenzend aan de woning bevindt zich een stenen berging met opstelplaats voor wasmachine en droger, aangevuld met een extra houten bergkast.
Eerste verdieping
De overloop geeft toegang tot alle vertrekken. Aan de voorzijde ligt een ruime slaapkamer met een volledig vernieuwde dakkapel uit 2021. In datzelfde jaar zijn ook de dakpannen vervangen en is het volledige dak voorzien van Dewin-renovatieplaten, inclusief vernieuwde loodstroken en het loodwerk rondom de schoorsteen, wat bijdraagt aan comfort en duurzaamheid.
Aan de achterzijde bevindt zich de tweede slaapkamer, eveneens voorzien van een dakkapel. Deze is in 2024 opnieuw geschilderd en daarbij is ook de boeiboord aan de achterzijde vervangen. Tussen beide slaapkamers ligt de moderne badkamer, uitgerust met een douche, toilet en wastafel. Vanaf de overloop is via een vlizotrap de praktische bergzolder bereikbaar.
Bijzonderheden
Bouwjaar circa 1910
Gelegen binnen beschermd dorps- en stadsgezicht
Bij woningen ouder dan 25 jaar hanteren wij standaard een ouderdoms- en asbestclausule
Oplevering in overleg