For English - see below
Op een populaire locatie in een prettige buurt, aan de rand van Leiden, in de ruim opgezette, kindvriendelijke, groene Merenwijk ligt dit verrassend uitgebouwde familiehuis met een woonoppervlak van 146 m2 en vrij uitzicht.
Vijf royale slaapkamers, twee badkamers en een fijne achtertuin gelegen op het oosten. In de woning is veel opbergruimte, inbouw- en maatwerkkasten door inventief gebruik van de breedte en de hoogte van het huis.
De Merenwijk is gewild, wonen dichtbij recreatiegebieden de Kagerplassen en het Joppe. Binnen 20 autominuten op het strand in Katwijk of Noordwijk. Op korte afstand van de woning liggen basisscholen, kinderdagverblijven, speelveldjes, het wijkpark “Merenwijk” met kinderboerderij, het winkelcentrum de Kopermolen, sportfaciliteiten, Golfclub Kagerzoom, fiets- en wandelroutes.
Parkeren is vergunningsvrij in de Merenwijk. De bereikbaarheid is uitstekend, vlakbij het bruisende historische centrum van Leiden en op slechts tien minuten fietsen van het NS-station Leiden Centraal. Uitvalswegen richting de A4 en A44 in de nabijheid, snel richting Amsterdam, Den Haag en Schiphol.
INDELING
ENTREE WONING
De voorzijde van de woning is gelegen op het westen. Entree met een royale hal. Een toilet met een fonteintje, toegang tot de fraai uitgebouwde woonkamer en trap naar de eerste etage. Naast de entree kunt u in deze rustige groene straat genieten van de middag- en avondzon.
BEGANE GROND
Een woonkamer van 40 m2 met uitbouw met lichtstraat (met elektrischezonwering) heeft openslaande deuren naar de tuin van op het oosten, waardoor de ruimte heerlijk licht en zonnig is. De open keuken van het merk Leicht is uitgerust met composiet aanrechtblad, een 5-pits gas-op-glas kookplaat, afzuigkap, vaatwasser, combioven met magnetron, oven en koel-vries combinatie. De vloer is van massief eiken. In de tuin kunt u de zon zien opkomen, en hiervan tot diep in de middag genieten. De tuin biedt ruimte voor diverse zitjes, fraaie beplanting en een praktische achterom. Daarnaast heeft de tuin geen inkijk van achterburen. U zit echt vrij. Aan de achterzijde van de woning kijkt u uit op mooie volwassen bomen en een waterpartij. De berging is voorzien van elektra en biedt ruimte voor meerdere fietsen. Over de hele breedte van de woonkamer is een elektrisch zonnescherm aanwezig.
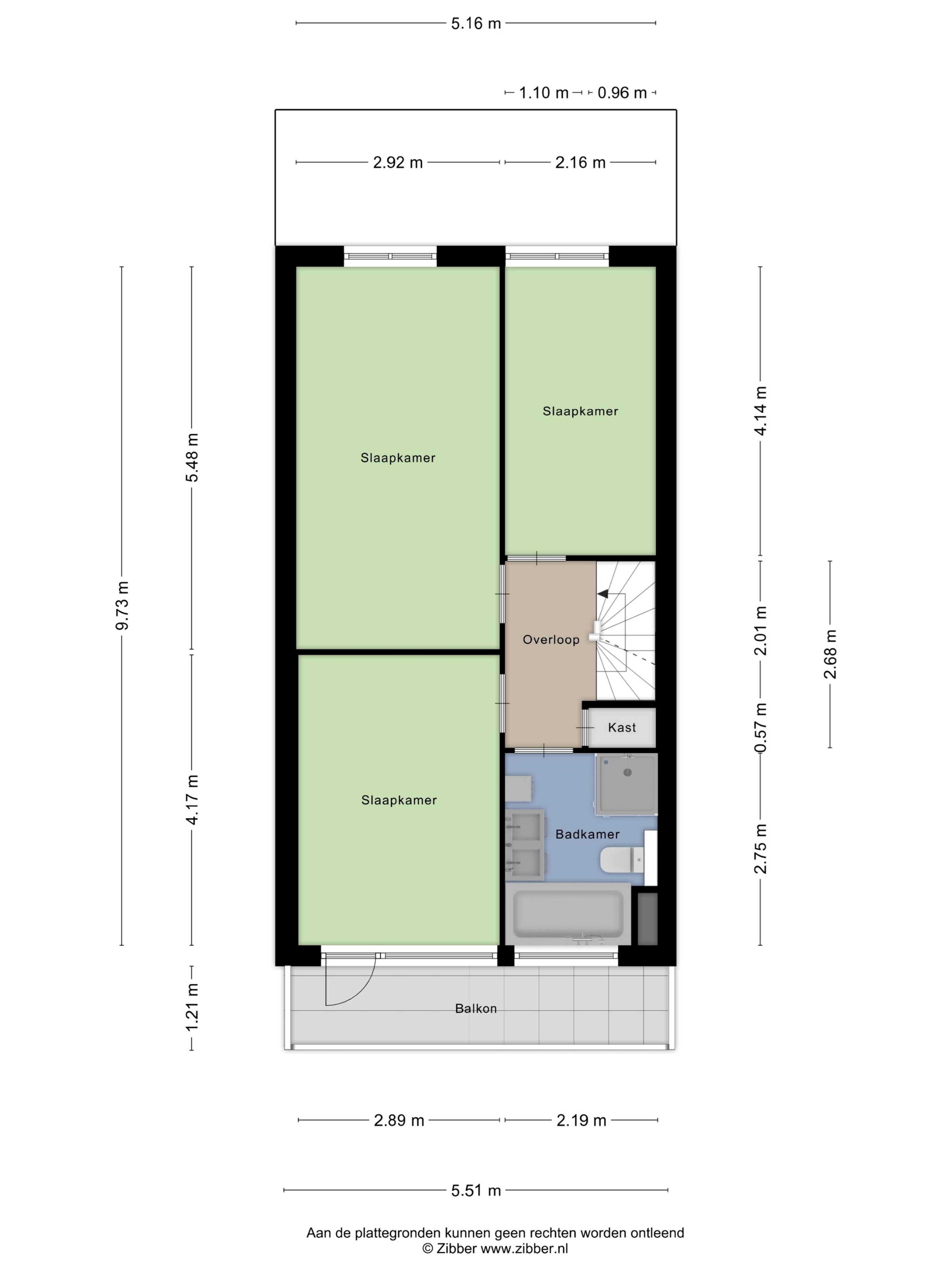
EERSTE VERDIEPING
Overloop naar drie ruime slaapkamers, waarvan de slaapkamer aan de voorzijde van de woning een overdekt balkon heeft. De badkamer (Sphinx) heeft een ligbad, douche, dubbele wastafel, mechanische ventilatie en toilet. De vloer op de 1e en 2e etage is van duurzaam marmoleum met een rustige lichte uitstraling.
TWEEDE VERDIEPING
Door de dakopbouw en brede dakkapel is deze verdieping ruim en licht. Twee slaapkamers, waarvan één, heel praktisch, met een hangende hoogslaper, te gebruiken als extra slaapplaats of als vliering. Op deze verdieping is echt optimaal gebruik gemaakt van de beschikbare ruimte. Overal vindt u mooi afgewerkte praktische opbergruimte, waaronder een hoge vaste kastenwand. Boven de open trap naar deze etage is een daklicht. In de slaapkamer aan de voorzijde, zijn de CV-opstelling en omvormer van de zonnepanelen slim weg gewerkt. Deze slaapkamer is voorzien van een elektrisch bedienbaar rolluik. De 2e badkamer heeft een solartube om daglicht toe te laten, douche, wastafelmeubel en een wasmachine-drogeropstelling.
KENMERKEN
- Lichte, uitgebouwde woonkamer met open keuken
- 5 ruime slaapkamers
- 2 badkamers, 3 toiletten
- Ruime en zonnige tuin op het oosten met achterom en berging van ongeveer 7 m2
- Bouwjaar 1977
- Gebruiksoppervlak wonen 146 m2
- Inhoud 518 m3
- Perceel 121 m2
- Energielabel A geldig tot 06-05-2035
- Dubbele beglazing, vloer- en dakisolatie
- Elektrisch bedienbare buitenzonweringen begane grond en voorzijde 2e etage
- 14 zonnepanelen 2023 (oost-west ligging) 405 Wp per paneel
- CV combiketel 2014 Nefit Topline Aquapower Plus HRC 30/CW6 II
- Mechanische ventilatie
- Meetrapport aanwezig
- Nieuwe meterkast 2023
- Gratis parkeergelegenheid aan voor- en achterzijde woning
- Oplevering in overleg
- Bij woningen gebouwd voor 1994 nemen wij standaard een ouderdoms- en asbest clausule op
DESCRIPTION
This surprisingly spacious familiy house, with 146 m² of living space and unobstructed views, is situated in a popular location in a pleasant neighborhood on the outskirts of Leiden, in the spacious, child-friendly, and leafy Merenwijk district.
Five generous bedrooms, two bathrooms, and a lovely east-facing backyard offer ample storage space, along with built-in and custom-made wardrobes, thanks to the clever use of the house's width and height.
The Merenwijk neighborhood is popular, offering easy access to the Kagerplassen and Joppe recreational areas. The beaches in Katwijk and Noordwijk are just a 20-minute drive away. A short distance from the house are primary schools, daycare centers, playgrounds, the "Merenwijk" neighborhood park with a petting zoo, the
Kopermolen shopping center, sports facilities, the Kagerzoom Golf Club, and cycling and walking routes.
Parking is permit-free in the Merenwijk district. Accessibility is excellent, close to Leiden's vibrant historic city center and just a ten-minute bike ride from Leiden Central Station. Major highways to the A4 and A44 are nearby, providing quick access to Amsterdam, The Hague, and Schiphol Airport.
LAYOUT
ENTRANCE HOME
The front of the house faces west. The entrance hall includes a spacious toilet with a small sink, access to the beautifully extended living room, and stairs to the first floor. Next to the entrance, you can enjoy the afternoon and evening sun on this quiet, leafy street.
GROUND FLOOR
A 40m² living room with an extension featuring a skylight (with electric sunblinds) has French doors leading to the east-facing garden, making the space wonderfully bright and sunny. The open-plan Leicht kitchen is equipped with composite countertops, a 5-burner gas hob, extractor hood, dishwasher, combination oven with microwave, oven, and fridge-freezer. The floor is solid oak. In the garden, you can watch the sunrise and enjoy it well into the afternoon. The garden offers space for various seating areas, beautiful plants, and a practical rear entrance. Furthermore, the garden is not overlooked by rear neighbors, giving you true privacy. At the rear of the house, you overlook beautiful mature trees and a water feature. The shed has electricity and offers space for several bicycles. An electric awning spans the entire width of the living room.
FIRST FLOOR
Landing leading to three spacious bedrooms, one of which at the front of the house has a covered balcony. The bathroom (Sphinx) has a bathtub, shower, double sink, mechanical ventilation, and toilet. The flooring on the first and second floors is durable marmoleum with a calm, light feel.
SECOND FLOOR
The roof extension and wide dormer window make this floor spacious and bright. Two bedrooms, one of which is very practical, features a suspended loft bed that can be used as an extra bed or as a loft. This floor has truly optimized the available space. You'll find beautifully finished, practical storage throughout, including a tall built-in wardrobe. A skylight above the open staircase to this floor. In the front bedroom, the central heating system and solar panel inverter are neatly concealed. This bedroom is equipped with an electric roller shutter. The second bathroom has a solar tube to allow natural light in, a shower, a vanity unit, and a washer-dryer unit.
FEATURES
- Bright, extended living room with open-plan kitchen
- 5 spacious bedrooms
- 2 bathrooms, 3 toilets
- Spacious and sunny east-facing garden with rear access and a storage shed of almost 7 m²
- Built in 1977
- Living area 146 m²
- Volume 518 m³
- Plot 121 m²
- Energy label A valid until 06-05-2035
- Double glazing, floor and roof insulation
- Electrically operated outdoor awnings on the ground floor and front of the second floor
- 14 solar panels (2023) (east-west orientation) 405 Wp per panel
- Central heating combi boiler 2014 Nefit Topline Aquapower Plus HRC 30/CW6 II
- Mechanical ventilation
- Measurement report available
- New meter cupboard (2023)
- Free parking at the front and rear of the house
- Delivery date by arrangement
- For properties built before 1994, we assume an old age and asbestos clause as standard