Karakteristieke tussenwoning met tuin en drie slaapkamers
In een rustige en geliefde woonstraat in Leiden ligt deze karakteristieke tussenwoning uit 1934, met een prettige indeling, drie slaapkamers en een fijne achtertuin. Een ideale woning voor starters, stellen of jonge gezinnen die op zoek zijn naar ruimte, sfeer en een centrale ligging.
Indeling
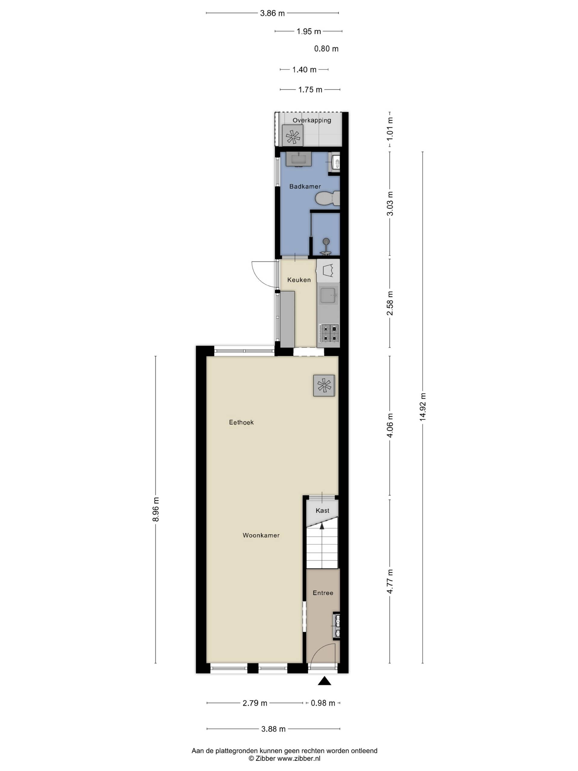
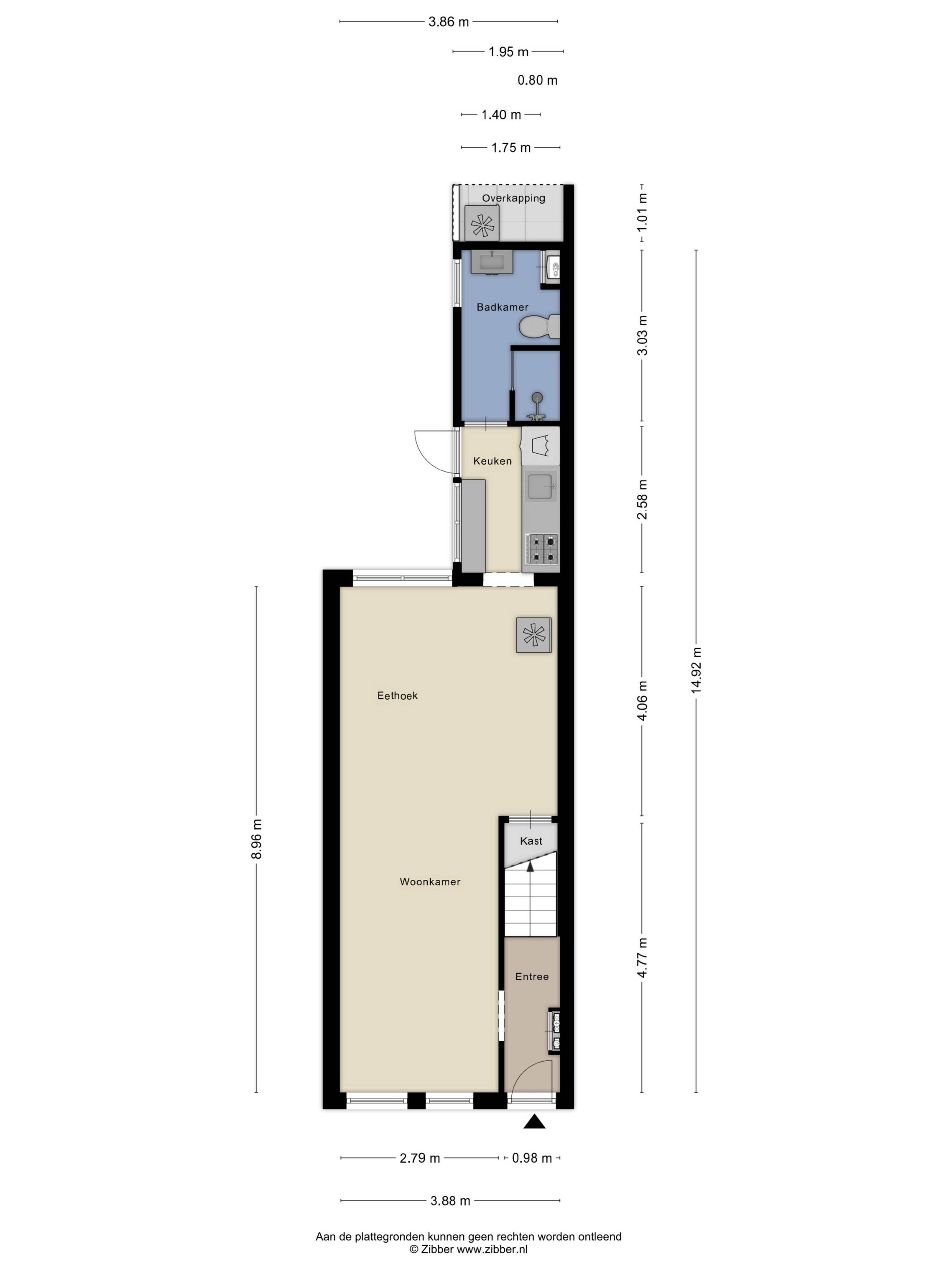
Begane grond
Via de entree kom je in de hal met trapopgang en kastruimte. De doorzonwoonkamer biedt volop ruimte voor een gezellige zithoek en een royale eethoek. Dankzij de grote ramen aan de voor- en achterzijde is de woning heerlijk licht.
Aan de achterzijde bevindt zich de keuken, die in directe verbinding staat met de tuin. Aansluitend ligt de badkamer, voorzien van douche, wastafel en toilet.
Eerste verdieping
Op de eerste verdieping bevinden zich twee goed bemeten slaapkamers, gelegen aan de voor- en achterzijde van de woning. De overloop geeft toegang tot beide kamers en de vaste trap naar de tweede verdieping.
Tweede verdieping
De zolderverdieping is ingericht als derde slaapkamer. Deze ruimte is dankzij de aanwezige ramen prettig licht en ook zeer geschikt als werk- of logeerkamer.
Buitenruimte
De woning beschikt over een achtertuin, bereikbaar vanuit de keuken. Een fijne plek om buiten te zitten en naar eigen wens in te richten.
Locatie
De Nassaustraat ligt in een rustige woonwijk met een prettige sfeer. In de directe omgeving vind je winkels, scholen, openbaar vervoer en sportvoorzieningen. Het centrum van Leiden en het centraal station zijn snel bereikbaar, net als de uitvalswegen richting Den Haag, Amsterdam en Utrecht.
Kenmerken
•Bouwjaar 1934
•Gebruiksoppervlakte wonen: ca. 93 m²
•3 slaapkamers
•Bruto inhoud: ca. 329 m³
•Energielabel C
English:
Charming house with garden and three bedrooms
Situated in a quiet and popular residential street in Leiden, this charming mid-terrace house dating from 1934 offers a pleasant layout, three bedrooms and a lovely back garden. An ideal home for first-time buyers, couples or young families looking for character, space and a central location.
Layout
Ground floor
The entrance leads into the hallway with staircase and storage space. The bright through-living room provides ample space for a comfortable seating area as well as a generous dining area. Large windows at both the front and rear ensure plenty of natural light throughout the day.
At the rear of the house is the kitchen, which has direct access to the garden. Adjacent to the kitchen is the bathroom, fitted with a shower, washbasin and toilet.
First floor
The first floor features two well-proportioned bedrooms, located at the front and rear of the property. The landing provides access to both rooms and the fixed staircase to the second floor.
Second floor
The attic floor is arranged as the third bedroom. Thanks to the available windows, this room is pleasantly bright and also suitable for use as a home office or guest room.
Outdoor space
The property benefits from a back garden, accessible from the kitchen. A pleasant outdoor space that can be arranged entirely to your own taste.
Location
Nassaustraat is located in a quiet residential neighbourhood with a friendly atmosphere. Shops, schools, public transport and sports facilities are all within close proximity. Leiden city centre and the central station are easily accessible, as are the main roads towards The Hague, Amsterdam and Utrecht.
Key features
•Year of construction: 1934
•Living area: 93 m²
•3 bedrooms
•Gross volume: approx. 329 m³
•Energy label C