English tekst below!
Ruime en lichte eengezinswoning met 4 slaapkamers, ruime tuin en modern wooncomfort
In een rustige en groene straat in Oegstgeest staat deze lichte en goed onderhouden gezinswoning, gelegen op een royaal perceel. Met vier slaapkamers, een ruime woonkamer, een ruime achtertuin en meerdere recente verbeteringen is dit een ideale woning voor gezinnen of iedereen die comfortabel wil wonen.
De woning is grotendeels voorzien van kunststof kozijnen met HR++ glas, heeft zowel dak- als vloerisolatie en beschikt over een nieuwe Vaillant cv-ketel uit 2024.
Binnen vind je een ruime en sfeervolle woonkamer met eethoek, een praktische keuken en nette sanitaire voorzieningen.
De slaapkamers zijn verdeeld over twee woonlagen en bieden volop licht en ruimte. De diepe achtertuin op het noorden is verzorgd aangelegd en beschikt over een stenen berging met elektra.
De ligging is perfect: rustig en kindvriendelijk, maar toch dichtbij winkels, scholen, sportvoorzieningen, openbaar vervoer en de uitvalswegen richting Leiden, Den Haag en Amsterdam. Een heerlijke woonplek waar je zó in kunt trekken.
Indeling:
Begane grond
Via de voortuin bereik je de entree met hal, garderobe, trapopgang en toilet. De ruime woonkamer is licht en sfeervol en biedt plek voor een comfortabele zithoek en een grote eethoek. Aan de achterzijde bevindt zich de keuken, praktisch ingedeeld en voorzien van de nodige werk- en bergruimte. Vanuit de woonkamer kijk je fraai uit op de ruime achtertuin.
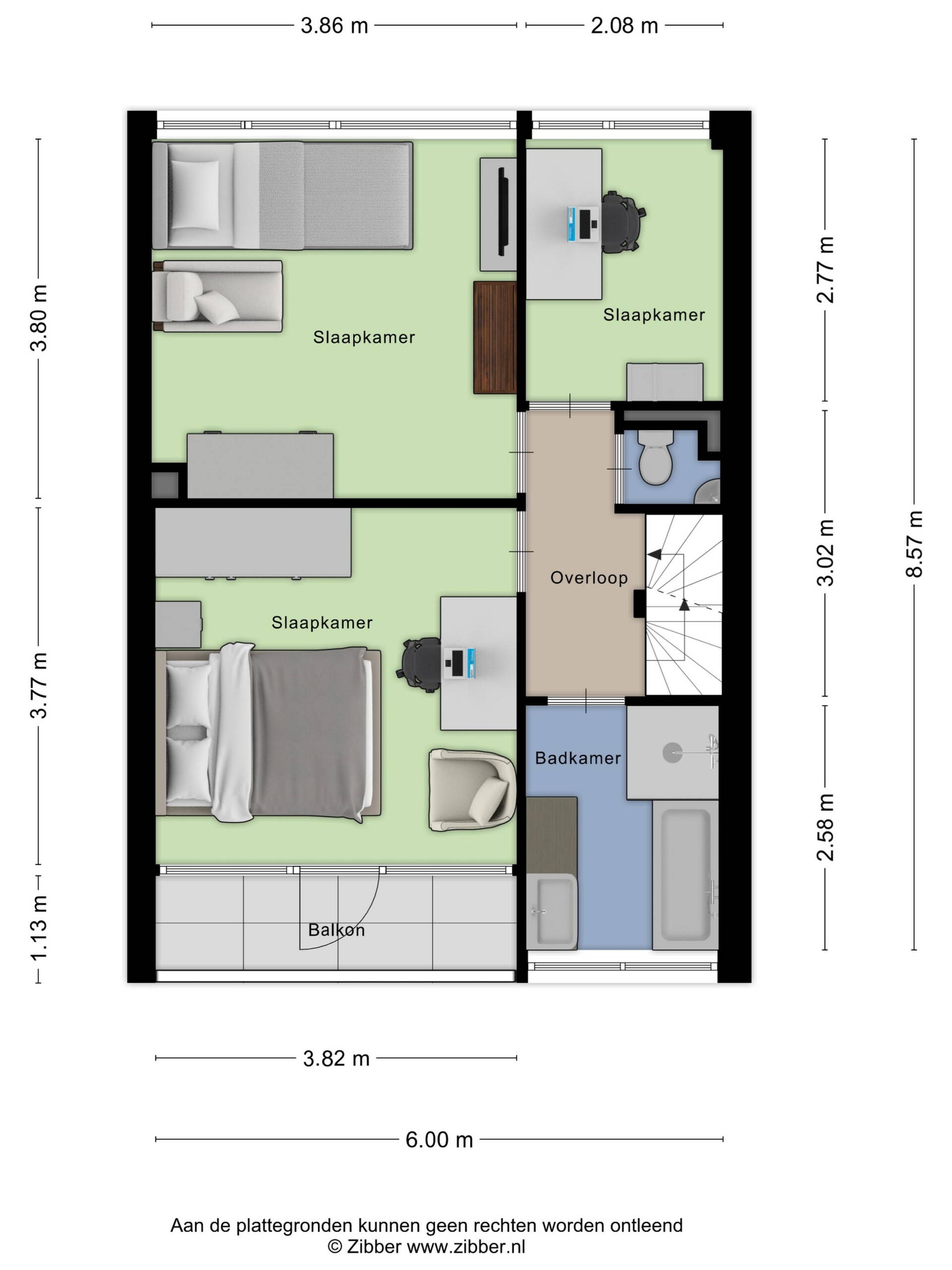
Eerste verdieping
De overloop geeft toegang tot drie ruime slaapkamers, waarvan één toegang heeft tot het balkon. Deze verdieping beschikt verder over een nette badkamer, voorzien van douche/bad, wastafel, natuurlijke ventilatie en apart toilet.
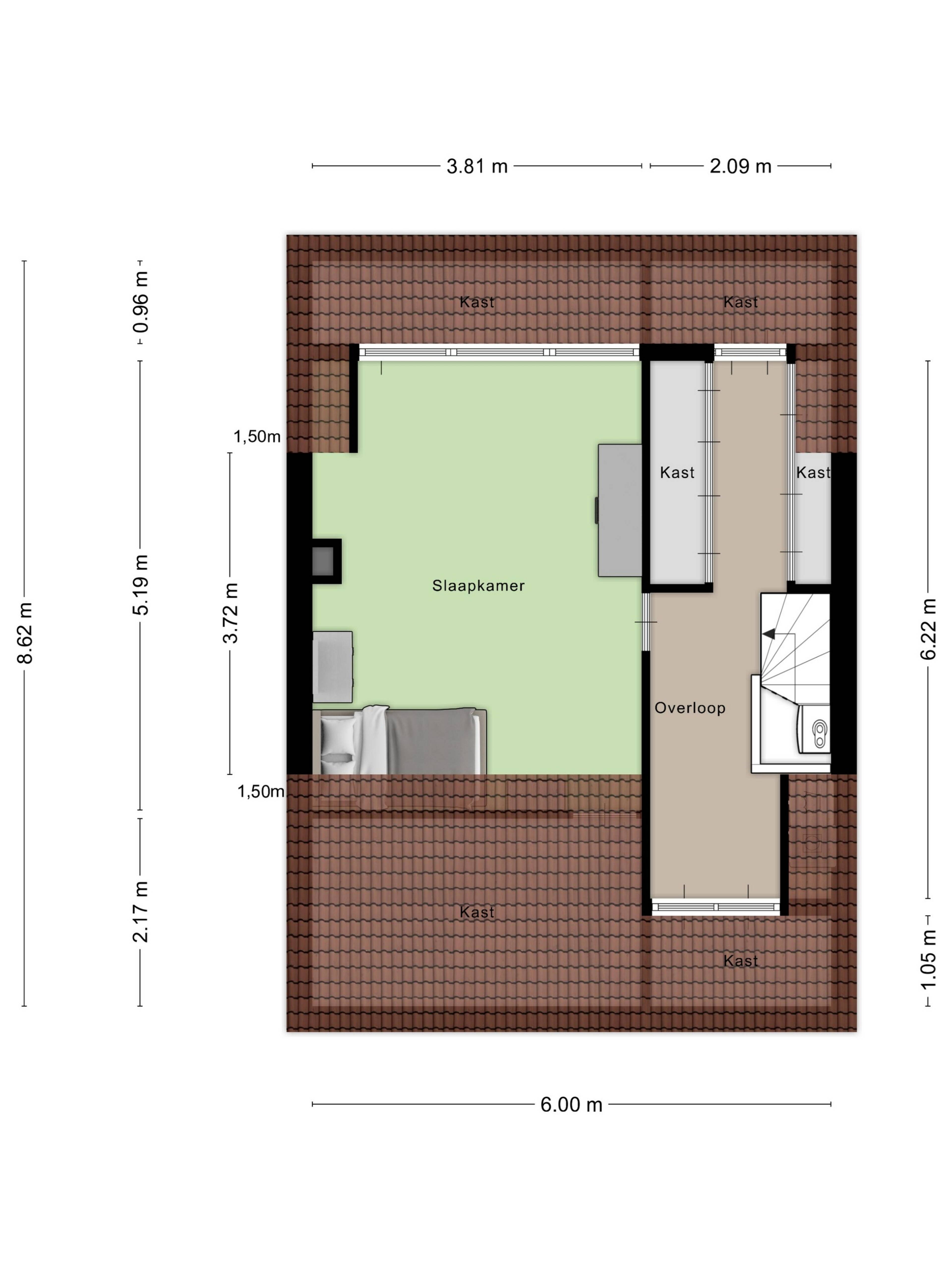
Tweede verdieping
Een vaste trap leidt naar de royale zolderverdieping, met een ruime vierde slaapkamer die dankzij de dakkapel en dakramen veel licht ontvangt. Hier is ook veel bergruimte aanwezig achter de knieschotten.
Tuin
De ruime achtertuin op het noorden biedt zowel zon- als schaduwplekken en is verzorgd aangelegd met groen en terrassen. Achter in de tuin staat een stenen berging met elektra ideaal voor fietsen, gereedschap of hobby’s. De voortuin is eveneens verzorgd en geeft de woning een vriendelijke uitstraling.
Locatie:
De Nicolaas Maeslaan ligt in een rustige, groene en kindvriendelijke woonwijk met uitsluitend bestemmingsverkeer. In de nabije omgeving vind je meerdere scholen, supermarkten, sportparken en speelvoorzieningen. Winkelcentrum Lange Voort en het gezellige centrum van Oegstgeest zijn snel bereikbaar. De ligging is gunstig ten opzichte van Leiden, Den Haag en Amsterdam via de A44, en ook openbaar vervoer is goed geregeld. Natuur, parken en recreatiegebieden liggen op korte afstand.
Kenmerken:
• Bouwjaar 1965
• Woonoppervlakte 130 m2
• Perceeloppervlakte 175 m2
• Energielabel: C
• Vier volwaardige slaapkamers
• Kunststof kozijnen met HR++ glas (balkonkozijn hout)
• Dak- en vloerisolatie aanwezig
• Nieuwe cv-ketel (Vaillant ecoTEC plus) uit 2024
• Ruime en lichte woonkamer met eethoek
• Verzorgde keuken en badkamer
• Ruime achtertuin op het noorden
• Stenen berging met elektra
• Rustige, kindvriendelijke woonomgeving
• Nabij winkels, scholen, sportverenigingen, OV en uitvalswegen
Deze informatie is met de grootst mogelijke zorg samengesteld. Echter, wij aanvaarden geen aansprakelijkheid voor eventuele onvolledigheden of onjuistheden.
Voor woningen ouder dan 30 jaar hanteren wij standaard een asbest- en ouderdomsclausule.
English text
Spacious and Bright Family Home with 4 Bedrooms, Large Garden and Modern Comfort
Situated in a quiet, green street in Oegstgeest, this bright and well-maintained family home sits on a generous plot. With four bedrooms, a spacious living room, a large rear garden and several recent upgrades, this property is ideal for families or anyone seeking comfortable living.
The house is largely fitted with maintenance-free uPVC window frames with HR++ glazing, features both roof and floor insulation, and is equipped with a new Vaillant central heating boiler (2024). Inside, you will find a spacious and inviting living room with dining area, a practical kitchen, and well-kept sanitary facilities. The bedrooms are spread across two floors and oeer plenty of light and space. The deep north-facing rear garden is neatly landscaped and includes a stone shed with electricity.
The location is excellent: peaceful and child-friendly, yet close to shops, schools, sports facilities, public transport and major roads towards Leiden, The Hague and Amsterdam. A delightful home that is ready to move into right away.
Layout:
Ground floor
Through the front garden you enter the hallway with wardrobe area, staircase and toilet. The spacious living room is bright and inviting, oeering room for a comfortable seating area and a large dining table. At the rear is the kitchen, practically laid out with ample workspace and storage. The living room provides a lovely view of the spacious back garden.
First floor
The landing provides access to three generous bedrooms, one of which has access to the balcony. This floor also features a neat bathroom with shower/bath, washbasin, natural ventilation and a separate toilet.
Second floor
A fixed staircase leads to the generous attic floor, where you will find a spacious fourth bedroom. Thanks to the dormer and skylights, this room receives plenty of natural light. Additional storage space is available behind the knee walls.
Garden
The large north-facing rear garden oeers both sunny and shaded areas and is neatly landscaped with greenery and terraces. At the back of the garden is a stone shed with electricity, ideal for bicycles, tools or hobbies. The front garden is also well maintained, giving the property a welcoming appearance.
Location:
Nicolaas Maeslaan is located in a quiet, green and child-friendly residential area with only local traeic. Several schools, supermarkets, sports facilities and playgrounds are nearby. The Lange Voort shopping centre and the cosy centre of Oegstgeest are easily accessible. The location oeers convenient access to Leiden, The Hague and Amsterdam via the A44, and public transport is well connected. Nature, parks and recreational areas are also close by.
Features
• Built in 1965
• Living area: 130 m2
• Plot size: 175 m2
• Energy label: C
• Four full-sized bedrooms
• uPVC window frames with HR++ glazing (balcony door is wood)
• Roof and floor insulation
• New central heating boiler (Vaillant ecoTEC plus, 2024)
• Spacious and bright living room with dining area
• Well-kept kitchen and bathroom
• Large north-facing rear garden
• Stone shed with electricity
• Quiet, child-friendly residential area
• Near shops, schools, sports clubs, public transport and main roads
This information has been compiled with the greatest possible care. However, we accept no liability for any inaccuracies or omissions.
As is customary with properties over 30 years old, an asbestos and age clause will be included in the purchase agreement.