Ruime en lichte bovenwoning met groot dakterras en vrij uitzicht
In het hart van het sfeervolle Zoeterwoude-Dorp bevindt zich deze royale en uitstekend onderhouden bovenwoning, voorzien van een heerlijk dakterras op het zuidoosten. Dankzij de drie woonlagen ervaar je hier de ruimte en het comfort van een volwaardige eengezinswoning, gecombineerd met een rustige ligging en een prachtig vrij uitzicht over groen en water. De woning beschikt over een ruime woonkamer, een fijne keuken en maar liefst drie grote slaapkamers. De moderne badkamer met ligbad en inloopdouche maakt het geheel helemaal af en biedt extra comfort.
Bijzonderheden:
- Bouwjaar 1980
- Woonoppervlakte ca. 127m2
- Energielabel B
- Royale woonkamer met heerlijk uitzicht
- Fijne ruime keuken
- 3 grote slaapkamers (mogelijkheid tot 4)
- Badkamer met ligbad en inloopdouche
- 2 dakkapellen
- Groot dakterras met ligging op het zuidoosten
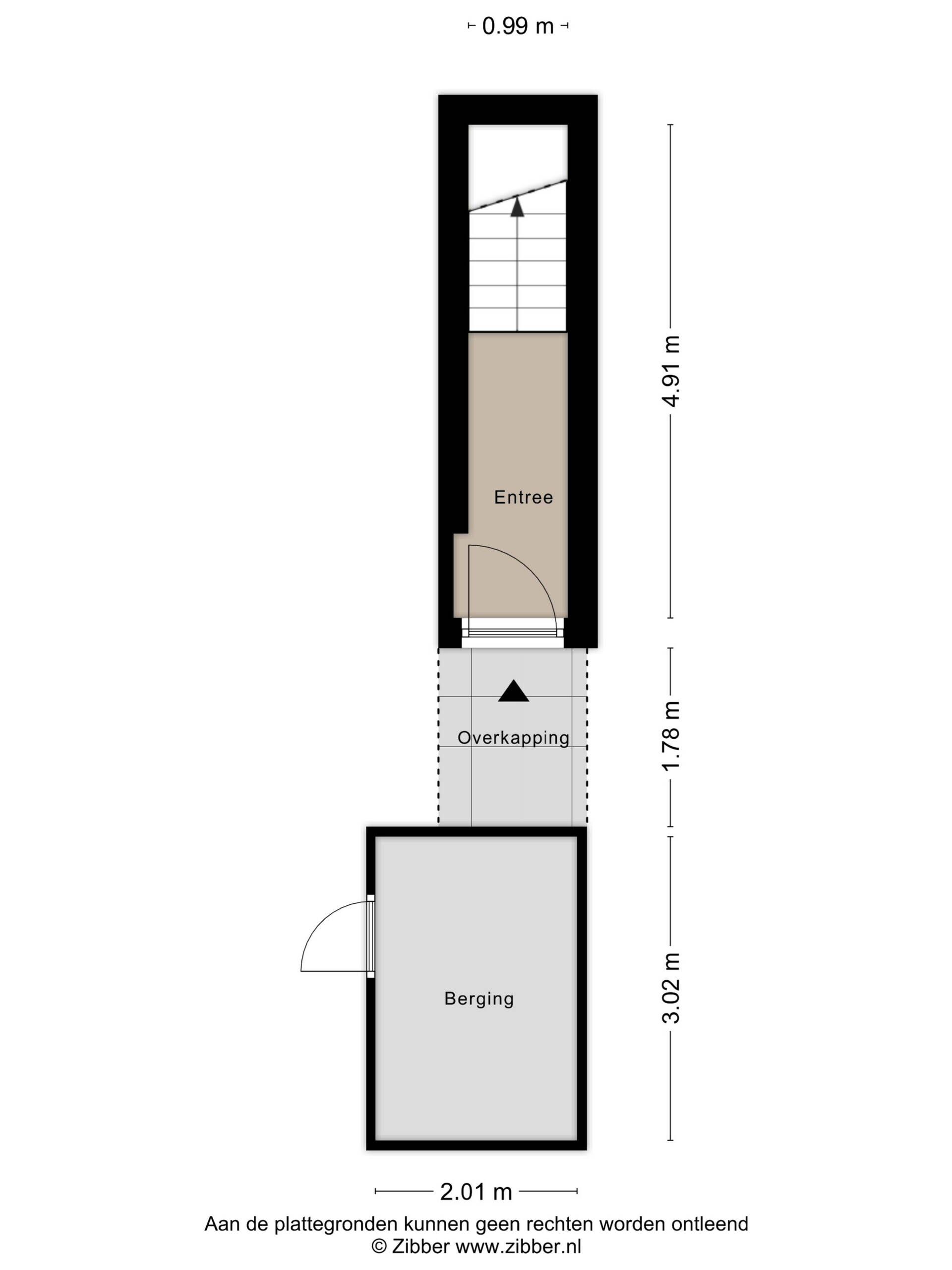
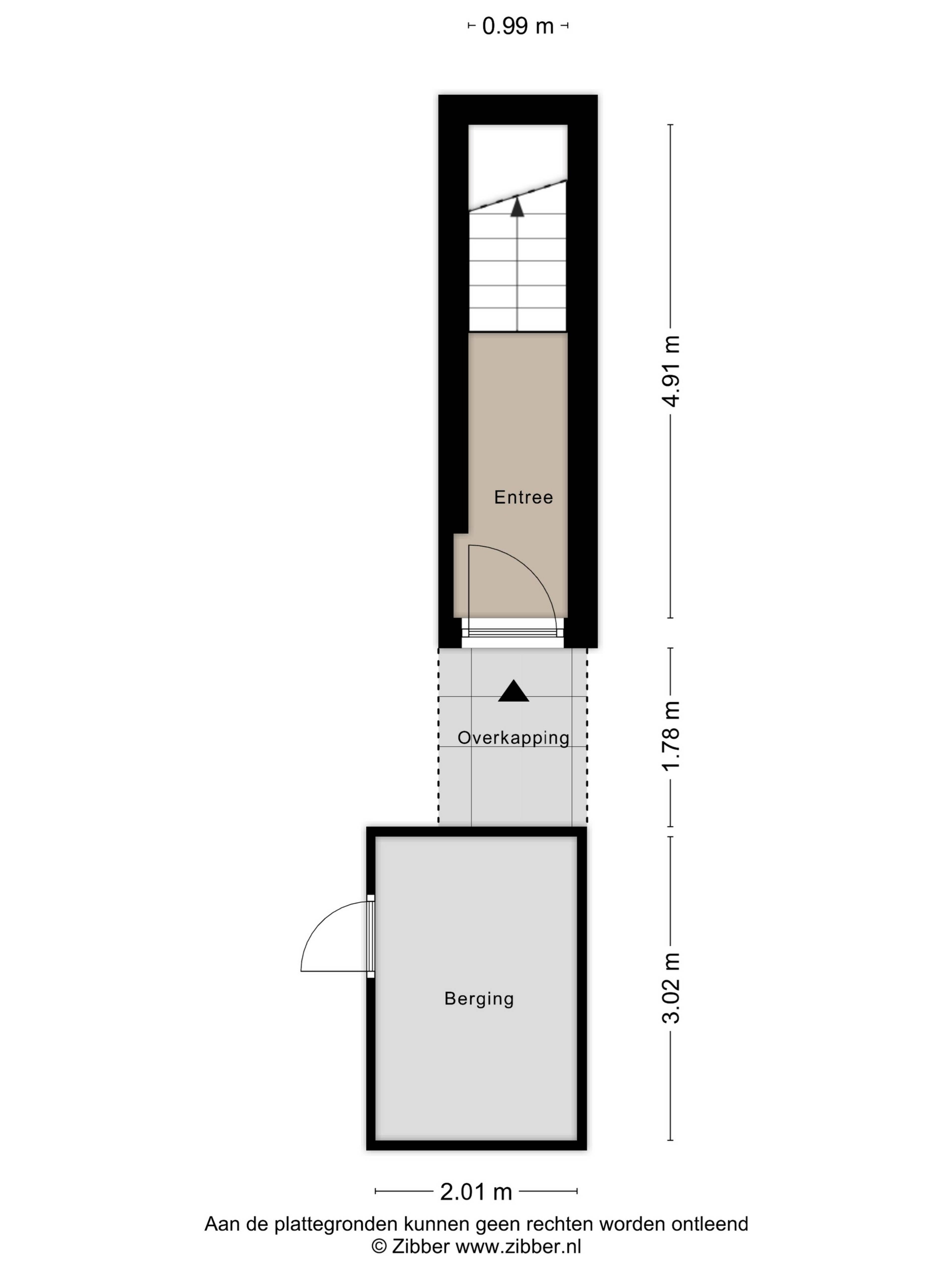
- Eigen berging
- Dicht bij de dorpskern van Zoeterwoude
- Winkels, scholen en openbaar vervoer op loopafstand
- Rustige ligging met voldoende parkeergelegenheid
- Active VvE met een maandelijkse kosten van €39,20
- Eigen Cv-ketel
Locatie:
Reiger 48 is gelegen in een rustige en groene straat in het hart van Zoeterwoude-Dorp, met vrij uitzicht op een plantsoen en water. Het gezellige dorpscentrum met winkels, scholen en sportvoorzieningen is op korte loop- of fietsafstand bereikbaar. De ligging combineert dorpse rust met prima bereikbaarheid: via de A4 en N11 ben je binnen enkele minuten op weg naar Leiden, Amsterdam, Den Haag of Utrecht. Daarnaast is het historische centrum van Leiden binnen 15 minuten per fiets bereikbaar en loopt u binnen 5 minuten naar de bushalte voor de sneldienst Leiden-Zoetermeer. De directe omgeving biedt volop mogelijkheden voor wandelen, fietsen en recreëren in het waterrijke en groene landschap van het Groene Hart.
Begane grond:
Via de eigen entree komt u in de hal met meterkast en trapopgang naar de woonverdieping. Aan de voorzijde van het complex bevindt zich een stenen berging van ca. 6 m² en voorzien van elektra.
Eerste verdieping:
De lichte en royale woonkamer heeft een prachtig vrij uitzicht op de singel met groene oevers en is afgewerkt met een stijlvolle pvc-visgraatvloer. Er is volop ruimte voor zowel een comfortabele zithoek als een royale eethoek.
De open keuken in L-opstelling is uitgerust met diverse inbouwapparatuur en biedt daarnaast veel opbergmogelijkheden, inclusief een handige voorraadkast naast de keuken. Vanuit de keuken stapt u zo het ruime dakterras van ca. 15 m² op, een zonnige plek met volop privacy. Deze verdieping beschikt tevens over een modern toilet met fontein.
Tweede verdieping:
De overloop geeft toegang tot twee ruime slaapkamers en de badkamer. De achterste slaapkamer heeft een fraai uitzicht op het groen en is voorzien van een praktische schuifkastenwand. De slaapkamer aan de voorzijde is eveneens goed bemeten en biedt volop mogelijkheden voor een comfortabele inrichting.
De badkamer is volledig betegeld en ingericht met een ligbad, inloopdouche, wastafel en tweede toilet.
Derde verdieping:
De zolderetage is een ruime en veelzijdige verdieping. Momenteel is hier één slaapkamer ingericht, maar met de aanwezige ruimte en indeling is het eenvoudig om er twee slaapkamers van te maken. Dankzij twee dakkapellen, één aan de voorzijde en één aan de achterzijde, is er veel daglicht. Daarnaast is er voldoende bergruimte en een praktische plek voor de wasmachine en droger.
Deze informatie is met de nodige zorgvuldigheid samengesteld. Aanvaarding van enige aansprakelijkheid voor onvolledigheden, onjuistheden of anderszins, dan wel de gevolgen daarvan, wordt door ons niet aanvaard. Voor woningen ouder dan 30 jaar hanteren wij standaard een asbest- en ouderdomsclausule