Karaktervolle twee-onder-een-kapwoning met ruimte, rust, water en charme
Gelegen aan de Hoge Rijndijk, op een ruim perceel direct aan het water in het populaire Zoeterwoude-Rijndijk, vindt u deze sfeervolle twee-onder-een-kapwoning. De woning beschikt over een royale woonkamer, een ruime leeskamer met open haard, een comfortabele keuken, vier slaapkamers, een diepe tuin aan het water en een gezellige veranda. Daarnaast biedt de woning een groot dakterras, een verzorgde badkamer en een eigen sauna. Voor het parkeren is er een carport, een garage en een eigen oprit met ruimte voor minimaal twee auto’s.
Deze woning combineert het beste van twee werelden: rustig en landelijk wonen met prachtig uitzicht over het water, terwijl de voorzieningen van de stad binnen handbereik zijn. Een bijzondere kans voor wie waarde hecht aan ruimte, rust en water op een toplocatie.
Bijzonderheden
•Bouwjaar 1950
•Woonoppervlakte: ca. 183 m²
•Energielabel C
•Royaal perceel ca. 577 m²
•2-onder-een-kapwoning
•Goed onderhouden
•Grote tuin aan het water
•Veranda aan de woning
•Carport
•Oprit met plek voor minimaal 2 auto’s
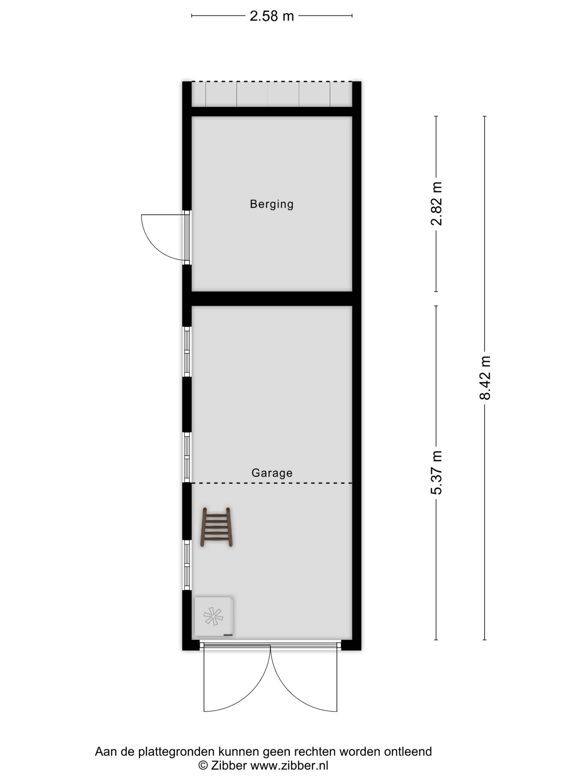
•Garage met berging
•Ruime woonkamer
•Leeskamer met open haard
•Moderne keuken
•4 slaapkamers
•Fijne badkamer
•Sauna
•Dakterras
•Gehele begane grond voorzien van vloerverwarming
•Ideale ligging dicht bij het centrum van Leiden
•Uitvalswegen op korte afstand
•Goede verbinding met het openbaar vervoer
•Oplevering in overleg (voorkeur april 2026)
Ligging
Zoeterwoude-Rijndijk combineert op unieke wijze rust, natuur en uitstekende bereikbaarheid. Het dorp straalt ruimte en landelijke charme uit, terwijl alle dagelijkse voorzieningen dichtbij zijn. Scholen, supermarkten, sportclubs en andere faciliteiten bevinden zich op korte afstand, waardoor het wonen hier zowel comfortabel als praktisch is.
De ligging is bovendien ideaal voor wie de stad of snelwegen nodig heeft. De bruisende binnenstad van Leiden is binnen 10 minuten fietsen bereikbaar, en ook de verbindingen naar Den Haag, Amsterdam, Schiphol en Utrecht zijn uitstekend. Dankzij de nieuwe Corbulotunnel bent u bovendien in korte tijd op de stranden van Katwijk en Noordwijk.
Voor liefhebbers van water is deze woning een ware droom. De directe ligging aan de Oude Rijn biedt talloze mogelijkheden: varen, vissen of simpelweg genieten van het spiegelende water. Hier ervaart u een ideale mix van natuur, ontspanning en gemak, met een landelijke sfeer die goed verbonden is met alle voorzieningen.
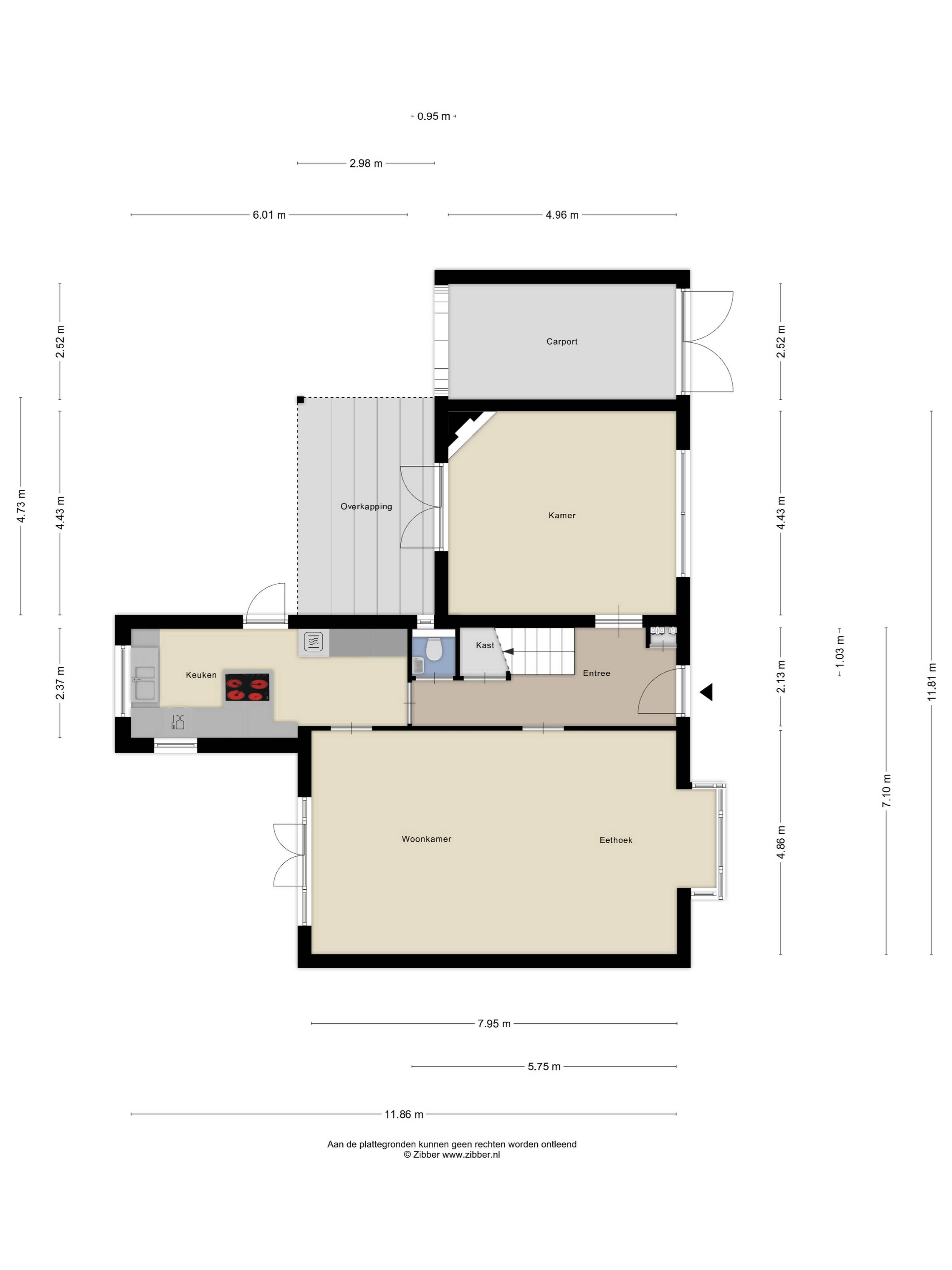
Indeling
Entree
U bereikt de woning via een ruime oprit met plek voor minimaal twee auto’s. De voordeur ligt beschut tussen het groen van de bomen en de verzorgde voortuin, die stijlvol is aangelegd met een gezellig zitje en diverse beplanting. De blikvanger is de indrukwekkende amberboom, die met zijn warme rode bladeren direct een charmante en levendige sfeer aan de voortuin geeft.
Hal
Bij binnenkomst via de voordeur komt u in een ruime en lichte hal. Hier bevindt zich de moderne meterkast, een ruime trapkast met praktische kelderruimte en het toilet met fonteintje. Vanuit de hal heeft u toegang tot de woonkamer aan de linkerzijde en de leeskamer aan de rechterzijde. Ook de trap naar de bovenverdieping is vanaf hier bereikbaar. De hal is fijn verwarmd met vloerverwarming.
Woonkamer
De woonkamer is royaal en licht, met veel natuurlijk licht dat binnenvalt via de grote ramen en de charmante erker aan de voorzijde. De gehele benedenverdieping is afgewerkt met een stijlvolle Noorse leisteenvloer, die een warme en natuurlijke uitstraling geeft. Er is voldoende ruimte voor een grote zithoek én een royale eettafel. De woonkamer is voorzien van vloerverwarming en via de openslaande deuren stapt u direct de tuin in.
Lees- en hobbykamer
Aan de voorzijde van de woning, aan de rechterkant, bevindt zich een aparte kamer. Momenteel wordt deze gebruikt als lees- en hobbykamer, maar het is ook eenvoudig om er een werkkamer, hobbyruimte of praktijkruimte van te maken. De kamer is voorzien van vloerverwarming en een sfeervolle open haard. Via de openslaande deuren stapt u rechtstreeks de veranda op, waar u in alle rust kunt genieten van het buitenleven.
Keuken
De keuken is volledig uitgerust en van alle gemakken voorzien. Met een grote inductieplaat, een vaatwasser en een koel-vriescombinatie heeft u alles binnen handbereik. Daarnaast biedt de keuken veel bergruimte. Ook hier geniet u van de vloerverwarming. Dankzij de vele ramen heeft u een prachtig uitzicht op de tuin en het water. Via de keuken stapt u eveneens direct de tuin in.
Eerste etage
De trapopgang naar de eerste etage is voorzien van een raam, waardoor ook hier prettig daglicht naar binnen valt.
Op deze verdieping bevinden zich twee ruime slaapkamers, beide met grote ramen die zorgen voor een lichte en uitnodigende sfeer. In beide kamers is voldoende ruimte voor een groot bed en royale kastruimte.
Daarnaast is er een praktische wasruimte met aansluitingen voor een wasmachine en droger. Vanuit deze ruimte heeft u directe toegang tot het ruime dakterras, een heerlijke plek om in alle rust van de zon te genieten.
De badkamer is netjes betegeld en volledig uitgerust met een ligbad, douchecabine en wastafel. Het raam zorgt hier niet alleen voor veel natuurlijk licht, maar ook voor goede ventilatie. In de hal bevindt zich een separaat toilet.
Via de badkamer bereikt u een extra kamer, gelegen boven de carport. Deze ruimte wordt momenteel gebruikt als kleine wellness met een eigen sauna, maar kan uiteraard ook dienen als extra slaapkamer, hobbyruimte of werkkamer.
Tweede etage
Op de tweede etage vindt u een praktische ruimte met twee ruime opbergkasten, waarvan één voorzien is van de aansluiting voor de cv-ketel. De kamer is momenteel ingericht als kantoor, maar biedt voldoende mogelijkheden om er eenvoudig een extra slaapkamer van te maken. Dankzij de grootte en indeling is deze verdieping veelzijdig te gebruiken, zowel voor werk, hobby als extra slaapruimte.
Buitenruimte
De buitenruimte van deze woning is een waar verlengstuk van het woongenot. De royale, fraai aangelegde tuin ligt direct aan het water en is rijk aan groen en beplanting. Meerdere zitjes zorgen ervoor dat u op elk moment van de dag een plekje in de zon of schaduw kunt vinden. Aan het water bevindt zich een prachtig betegeld vlonderterras, een ideale plek om te ontspannen of te genieten van het uitzicht.
In de tuin staat een royale garage met daarachter een aparte berging. De carport aan de voorzijde biedt een praktische plek voor het stallen van fietsen of het beschut parkeren van uw auto. Direct aan de woning ligt een ruime veranda, ideaal voor een grote tuintafel of een buitenkeuken. Deze buitenruimte combineert comfort, privacy en een schitterende ligging aan het water, een oase van rust waar u het hele jaar door van kunt genieten.
Disclaimer:
Deze informatie is met de nodige zorgvuldigheid samengesteld. Aanvaarding van enige aansprakelijkheid voor onvolledigheden, onjuistheden of anderszins, dan wel de gevolgen daarvan, wordt door ons niet aanvaard. Voor woningen ouder dan 30 jaar hanteren wij standaard een asbest- en ouderdomsclausule.