Op de 6e etage van een verzorgd appartementencomplex met lift bevindt zich dit ruime 4-kamerappartement van ca. 90 m². De woning beschikt over een royale woonkamer, drie slaapkamers en een heerlijk breed balkon op het zuidwesten, waar u kunt genieten van de middag- en avondzon én een fraai uitzicht over Katwijk.
Het complex is gebouwd in 1973 en beschikt over een afgesloten entree met intercom, liftinstallatie en een eigen berging op de begane grond. Dankzij de ligging op de zesde verdieping ervaart u hier rust, privacy en een vrij uitzicht.
Omgeving
De woning is gunstig gelegen in een groene woonomgeving in Katwijk, met diverse voorzieningen in de directe nabijheid. Winkels, scholen, sportfaciliteiten en medische voorzieningen bevinden zich op korte afstand. Daarnaast zijn uitvalswegen zoals de N206 snel bereikbaar.
Binnen enkele minuten fietsen staat u in de duinen of op het strand. Ook bossen en recreatiegebieden liggen dichtbij, waardoor u hier het beste van wonen aan de kust combineert met alle dagelijkse voorzieningen binnen handbereik.
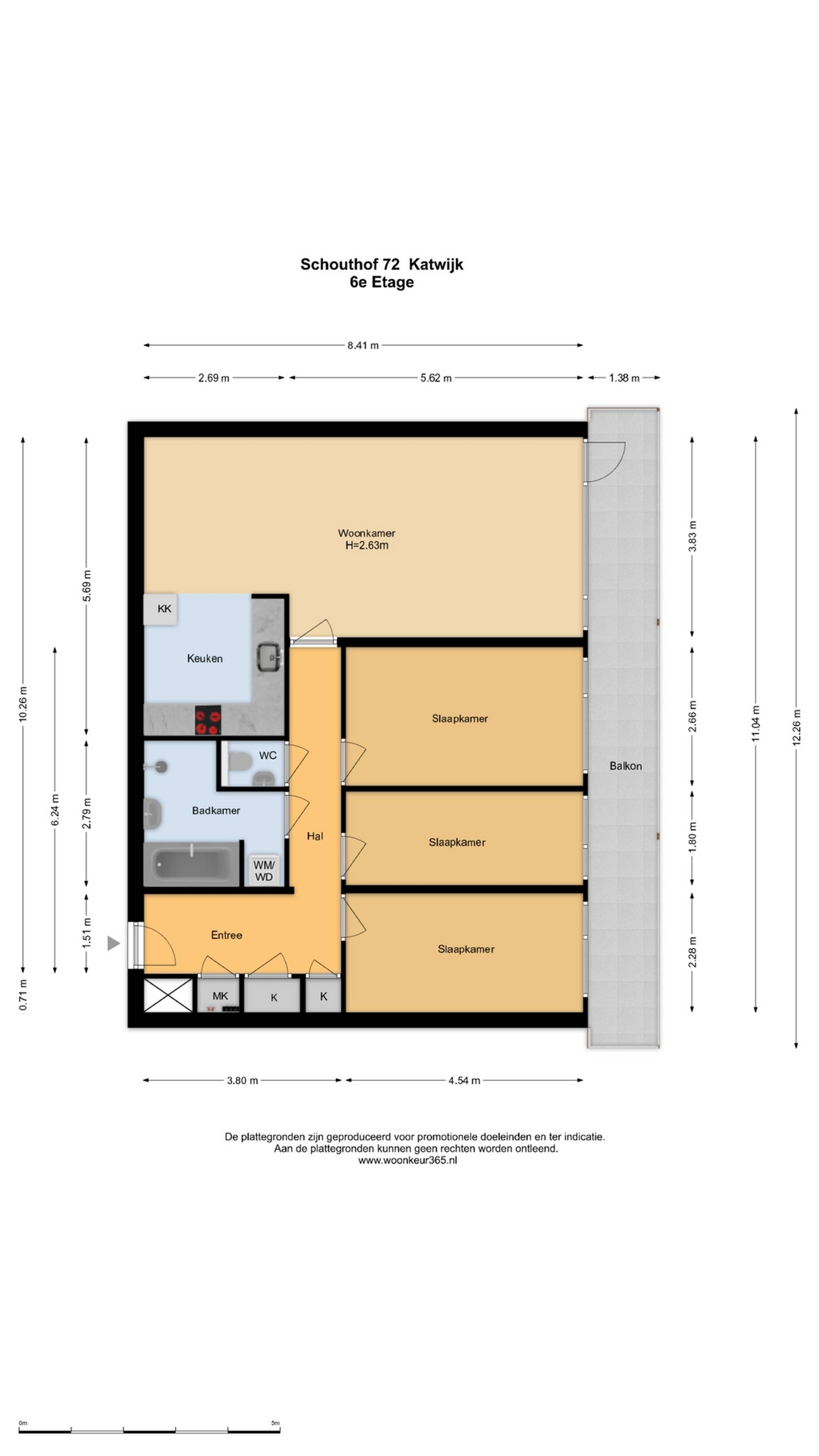
Indeling
Begane grond:
Afgesloten entree met brievenbussen, intercom en toegang tot de lift en het trappenhuis. Tevens toegang tot de eigen berging met elektra.
6e etage:
Entree appartement. Ruime hal met meterkast en praktische bergkasten. Vanuit de hal zijn alle vertrekken bereikbaar.
De royale woonkamer is licht en biedt een prachtig vrij uitzicht over de omgeving. De halfopen keuken is uitgevoerd in een hoekopstelling en voorzien van een gaskookplaat, afzuigkap, oven, vaatwasser, dubbele spoelbak en losse koel-vriescombinatie.
Het appartement beschikt over drie slaapkamers, ideaal voor een gezin, thuiswerkplek of hobbyruimte.
De badkamer is voorzien van een inloopdouche, bad, wastafel en aansluiting voor de wasmachine. Er is een separaat toilet met fonteintje.
Over de volledige breedte van het appartement bevindt zich het balkon op het zuidwesten. Hier geniet u van veel zon en mooie zonsondergangen.
Bijzonderheden
-Gelegen op de 6e etage met lift
-Woonoppervlakte ca. 90 m²
-Bouwjaar 1973
-Energielabel B (geldig tot maart 2036)
-3 slaapkamers
-Balkon over de volle breedte op het zuidwesten
-Vrij uitzicht over Katwijk
-Eigen berging op de begane grond (voorzien van elektra)
-Verwarming en warm water via Intergas CV-ketel (okt-2025)
-Actieve VvE met meerjarenonderhoudsplan
-Raambeschotten onder de ramen zijn van asbesthoudend materiaal
-Servicekosten ca. € 187,- per maand (incl. water)
-Gunstige ligging nabij strand, duinen en uitvalswegen
Op de woning zijn de volgende clausules van toepassing:
-Ouderdomsclausule
-asbestclausule