Klussers en avonturiers, opgelet.
In het hart van historisch Leiden, in de charmante Middelweg, ligt deze ruime 4 kamer bovenwoning met terras. Dit voormalig studentenhuis is klaar voor een frisse start, maar eerst vraagt om een grondige opknapbeurt. Deze bovenwoning maakt onderdeel uit van een kleinschalig complex met op de begane grond een fietsenwinkel en daarboven nog 3 appartementen. Samen vormen zij de recent opgerichte Vereniging van eigenaren.
Het beschikt momenteel over een gezamenlijke opgang, een woonkamer, ruime gesloten keuken en 3 slaapkamers, maar heeft bijvoorbeeld nog geen toilet en badkamer. De woning behoeft de nodige aandacht, maar kan om die reden dus volledig naar eigen smaak (her)ingericht worden.
De ligging is echt ideaal: Het bruisende stadscentrum met zijn vele cafés, restaurants, winkels, musea, buurtsupers, meerdere scholen, kinderopvang, sportfaciliteiten en bushaltes ligt allemaal op loopafstand. Treinstation Leiden Centraal en het recent geopende Singelpark zijn slechts een korte fietsrit verwijderd. De uitvalswegen richting A4 en N11 naar Schiphol, Amsterdam, Rotterdam, Den Haag en Utrecht zijn snel en eenvoudig te bereiken. Ook voor het bos en het strand bent u niet lang onderweg, binnen 20 minuten rijden kunt u een heerlijke wandeling maken.
Begane grond:
Gezamenlijke entree, hal met meterkast en trap naar de verdieping. Voordeur met toegang tot de woning en het terras.
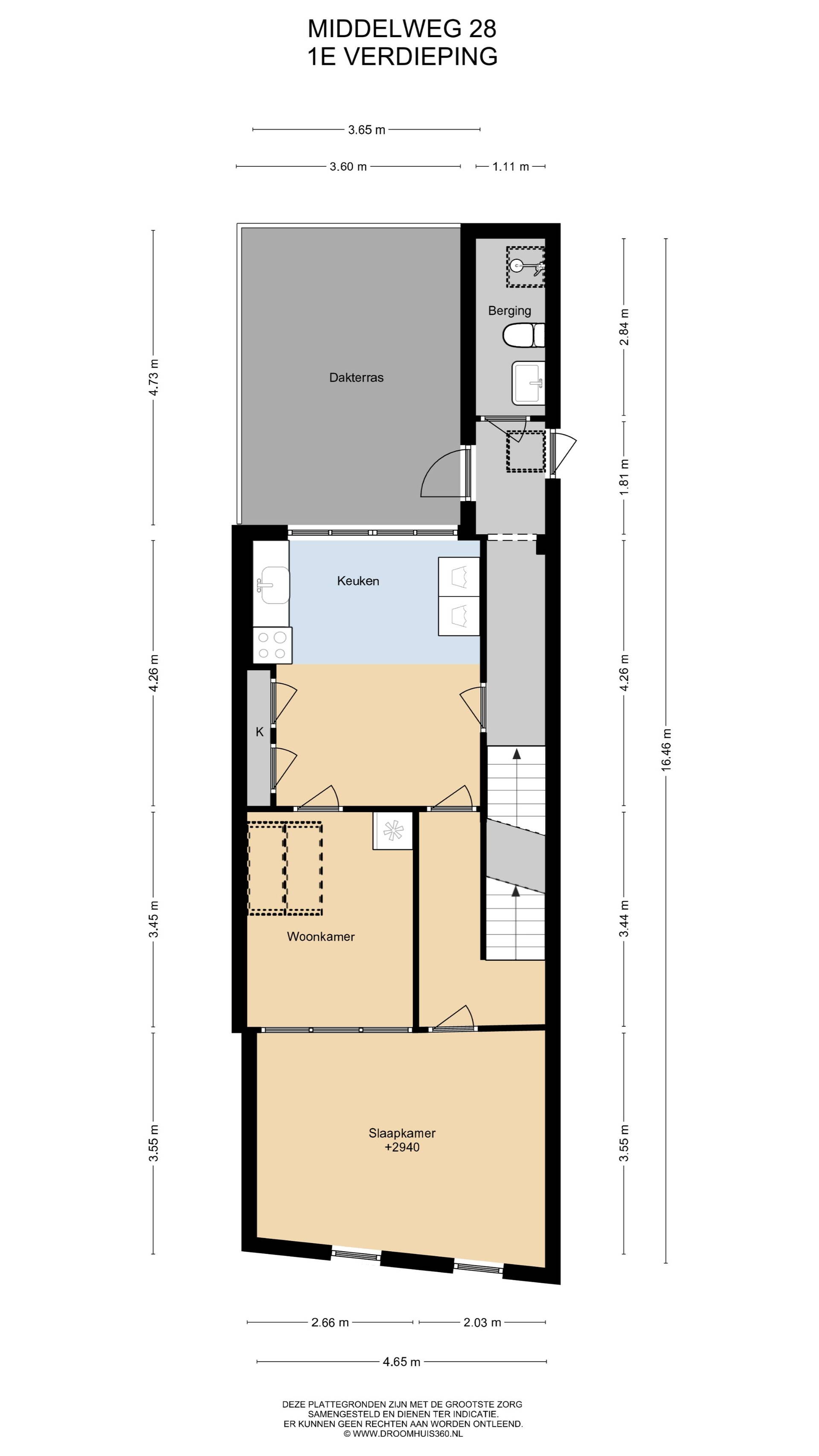
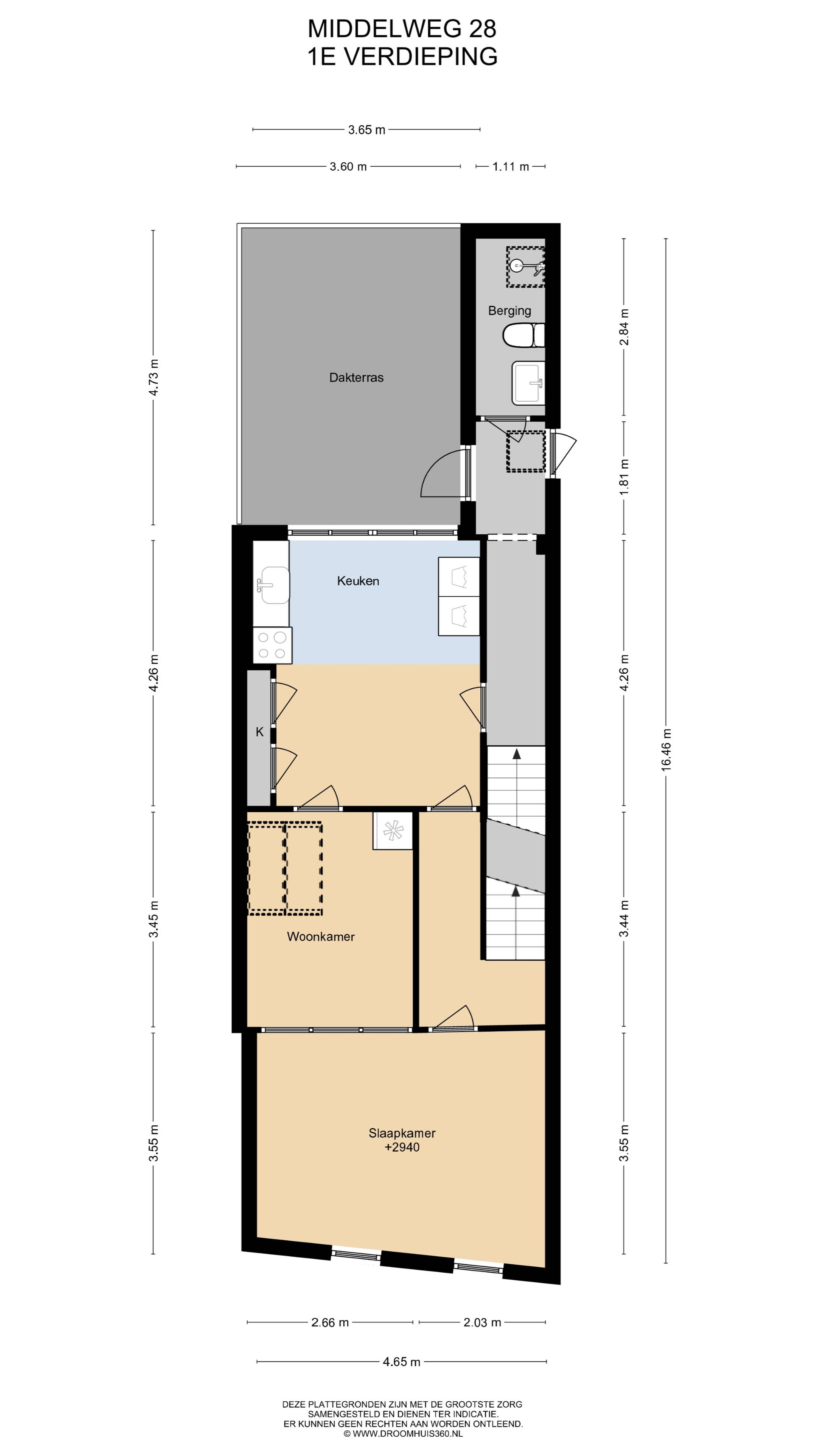
Eerste etage:
Royale keuken, tussenkamer, woonkamer en gang met trap naar de tweede verdieping.
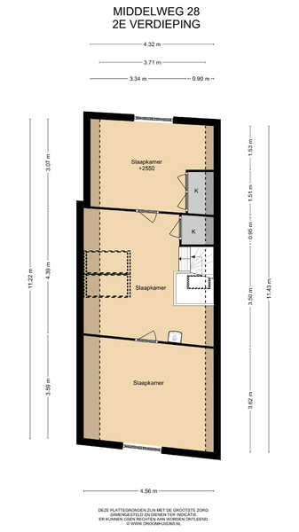
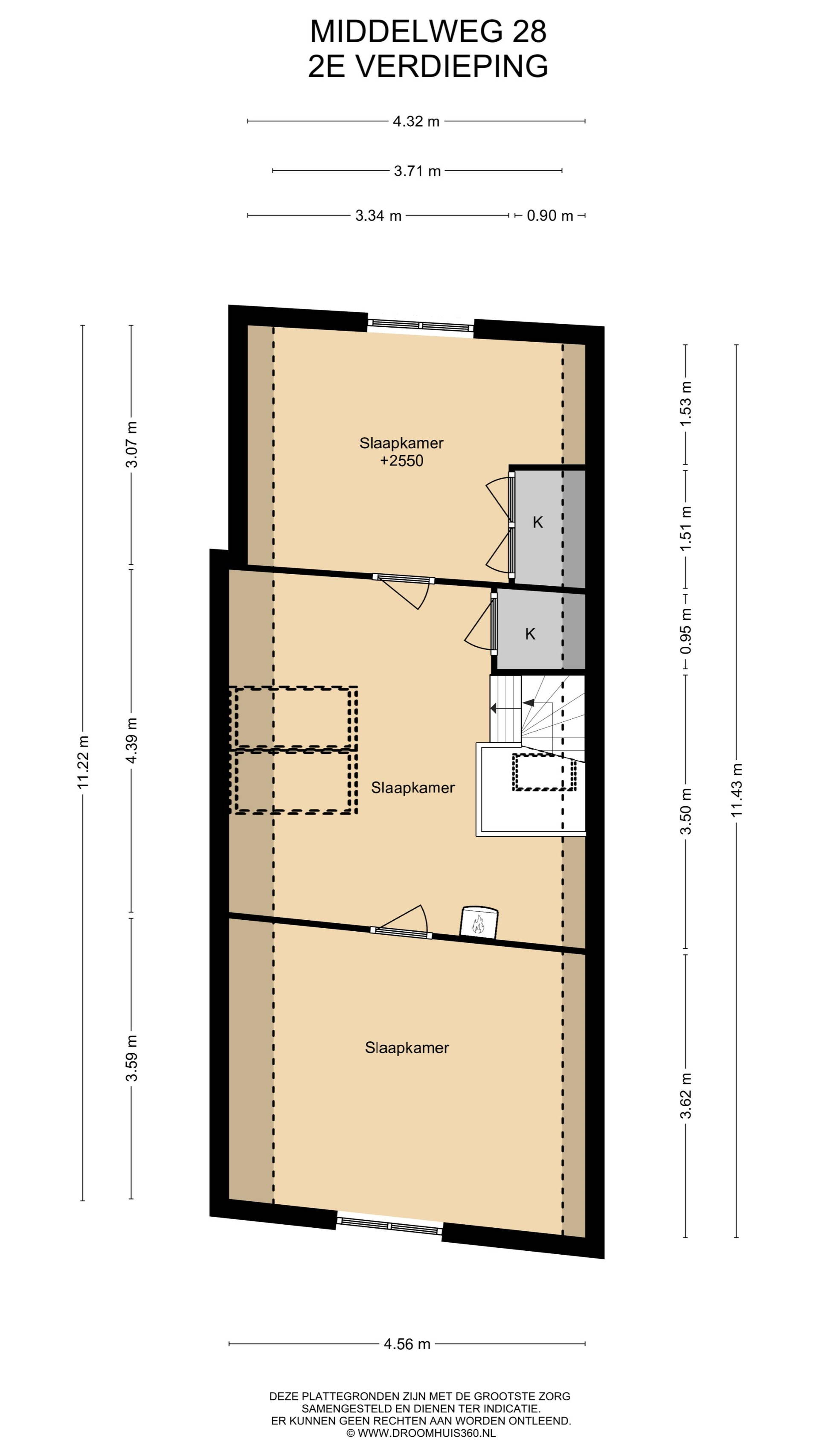
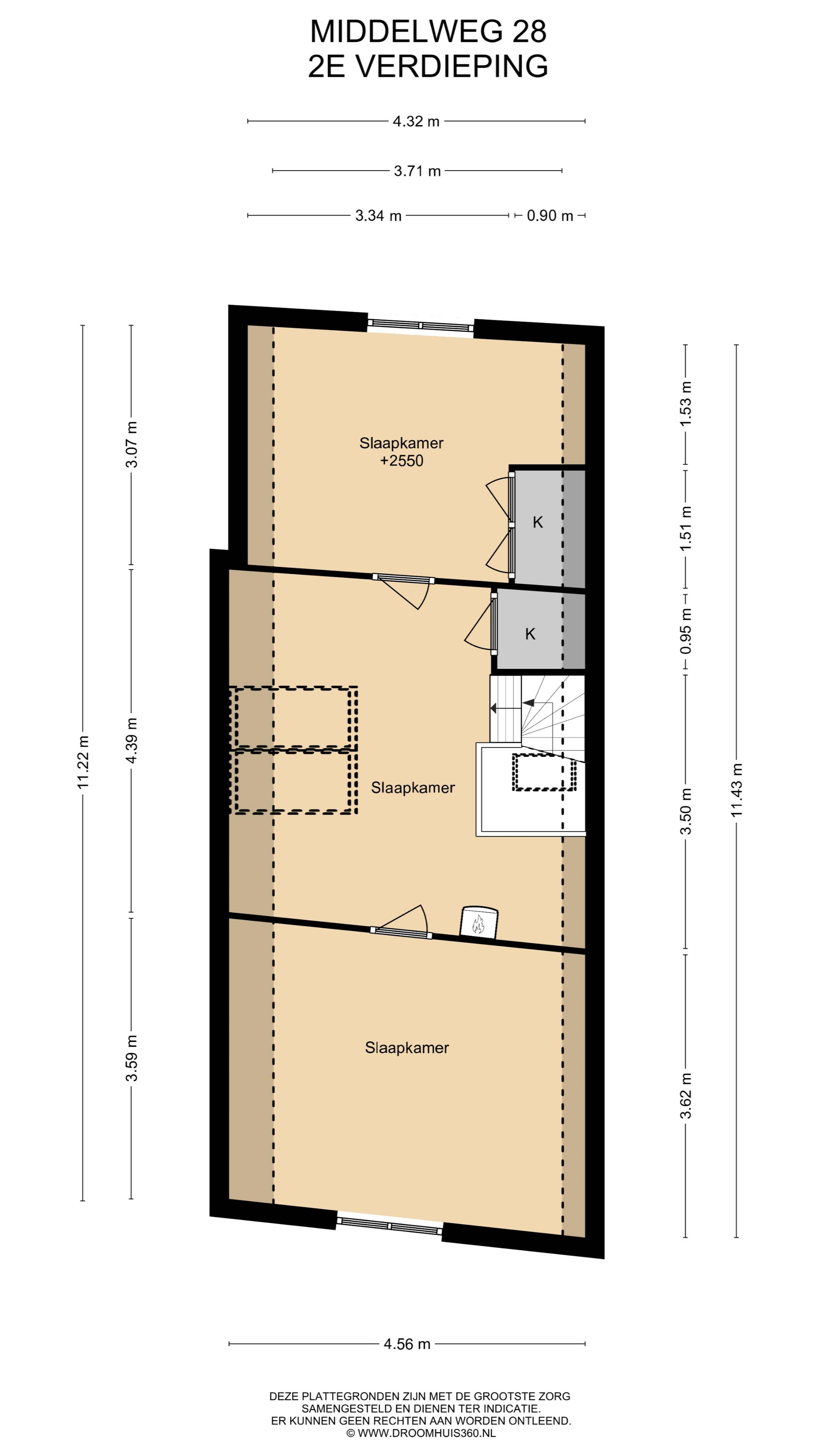
Tweede etage:
Ruime overloop met mogelijkheid tot het creëren van een badkamer en toegang tot twee grote slaapkamers.
Goed om te weten:
Kluswoning
Bouwjaar: ca. 1918
Gebruiksoppervlakte wonen: ca. 93 m2
Gebouw gebonden buitenruimte: ca. 17 m2 (dakterras)
Inhoud: ca. 307 m3
Grotendeels voorzien van dubbel glas
Energielabel: E
Beschermd stadsgezicht / karakteristiek pand
Betaald parkeren (vergunning ca. € 50,- per jaar)
Oplevering in overleg, kan snel
Bij woningen ouder dan 30 jaar hanteren wij standaard een asbest- en ouderdomsclausule.
Aangezien de eigenaar er nooit heeft gewoond is ook de niet-bewoond clausule van toepassing.