Modern 3-kamerappartement aan de Geregracht 9A, Leiden
Gelegen op de tweede verdieping van een kleinschalig appartementencomplex van totaal vier woonlagen, biedt dit lichte en energiezuinige (energielabel A) appartement de perfecte balans tussen levendig stadswonen en rust. Het appartement maakt deel uit van een goed onderhouden appartementencomplex met een actieve Vereniging van Eigenaren en is voorzien van een eigen berging op de begane grond (bereikbaar vanaf de straatzijde).
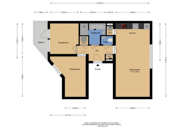
Indeling en kenmerken
Begane grond:
Hal met brievenbussen en trapopgang.
Entree. Hal met meterkast, inbouwkast met wasmachineopstelling, een separaat toilet met fonteintje en toegang tot alle vertrekken.
Het hart van de woning is de zonnige woonkamer met open keuken, gunstig gelegen op het zuidoosten. Hierdoor geniet u van een prachtige lichtinval in de ochtend en middag. De keuken is voorzien van een combi-oven, 4-pits gascomfort, afzuigkap, koelkast en vaatwasser en separate kast met de CV ketel opstelling.
De woning beschikt over een separate toiletruimte en een ruime badkamer met zowel een inloopdouche als een ligbad, wat zorgt voor extra comfort.
Aan de achterzijde bevinden zich twee ruime en rustige slaapkamers, gelegen op het westen en noordwesten. Dit garandeert een goede nachtrust, weg van straatgeluiden. Eén van de slaapkamers biedt toegang tot een fijn overdekt balkon (west), waar u heerlijk van de avondzon kunt genieten.
Uitstekende locatie
Direct tegenover het appartement ligt Het Plantsoen, een prachtig park langs de Singelpark-route.
De gezellige zaterdagmarkt en supermarkten zoals Hoogvliet en Albert Heijn bevinden zich op korte loopafstand. Daarnaast zijn onder andere het Leiden Bio Science Park en de centrale stations van Leiden snel per fiets bereikbaar.
Bijzonderheden
- Bouwjaar 2004
- Gebruiksoppervlakte wonen 65m2
- Gebouwgebonden buitenruimte 4m2 (balkon)
- Externe bergruimte 4m2 (berging)
- Inhoud 197m3
- VVE bijdrage € 146,-- per maand
- CV ketel Intergas, bouwjaar 2024
- Moderne meterkast met 4 groepen
- Energielabel A
- Volledig voorzien van dubbele beglazing
- Eigen berging op de begane grond
- Centrale ligging, maar opvallend rustig
- Parkeervergunning op aanvraag bij de gemeente
- Oplevering in overleg
_____________________________________________________________________________________________
Modern 3-room Apartment at Geregracht 9A, Leiden
Located on the second floor of a small-scale apartment building with four levels, this bright and energy-efficient (Energy Label A) apartment offers an ideal balance between vibrant city living and tranquility. The property is part of a well-maintained complex with an active homeowners’ association and includes a private storage unit on the ground floor, accessible from the street.
Layout
Ground floor:
Central entrance with hallway, mailboxes, and staircase.
Apartment:
Entrance hall with utility meter cupboard, built-in storage with washing machine connection, a separate toilet with hand basin, and access to all rooms.
The sun-filled living room with open-plan kitchen forms the heart of the home and is ideally oriented to the southeast, providing pleasant natural light throughout the morning and afternoon. The kitchen is fully equipped with a combination oven, 4-burner gas hob, extractor hood, refrigerator, dishwasher, and a separate cupboard housing the central heating boiler.
The spacious bathroom features both a walk-in shower and a bathtub, offering additional comfort and flexibility.
At the rear of the apartment, you will find two well-proportioned and quiet bedrooms facing west and northwest. One of the bedrooms provides access to a pleasant covered west-facing balcony, perfect for enjoying the evening sun.
Location
Directly opposite the apartment lies Het Plantsoen, a beautiful park along the Singelpark route.
The lively Saturday market and supermarkets such as Hoogvliet and Albert Heijn are within short walking distance. Additionally, key destinations including the Leiden Bio Science Park and Leiden’s main train stations are easily reachable by bike.
Key Features
•Built in 2004
•Living area 65m²
•Outdoor space (balcony) 4m²
•External storage 4m²
•Volume 197 m³
•Homeowners’ association (HOA) fee € 146,-- per month
•Central heating boiler Intergas boiler (2024)
•Modern electrical panel with 4 groups