For English text, see below
Wonen in het geliefde Noorderkwartier met zonnige tuin
In de populaire en gewilde wijk Noorderkwartier, net buiten de singels van Leiden, ligt dit charmante en energiezuinige tweekamerappartement op de begane grond. Hier woont u rustig in een fijne woonomgeving, terwijl de levendigheid van de stad binnen handbereik is. Het bruisende centrum bevindt zich op loopafstand, net als het groene Huigpark waar u heerlijk kunt ontspannen. Ook Station Leiden Centraal ligt dichtbij. Daarnaast zijn supermarkten, winkels en andere dagelijkse voorzieningen in de directe omgeving aanwezig.
Het appartement maakt deel uit van een kleinschalig complex en beschikt over energielabel A, wat zorgt voor comfortabel en energiezuinig wonen. Via de gedeelde entree, die u deelt met de appartementen op de eerste verdieping en twee appartementen op de tweede etage, bereikt u de woning.
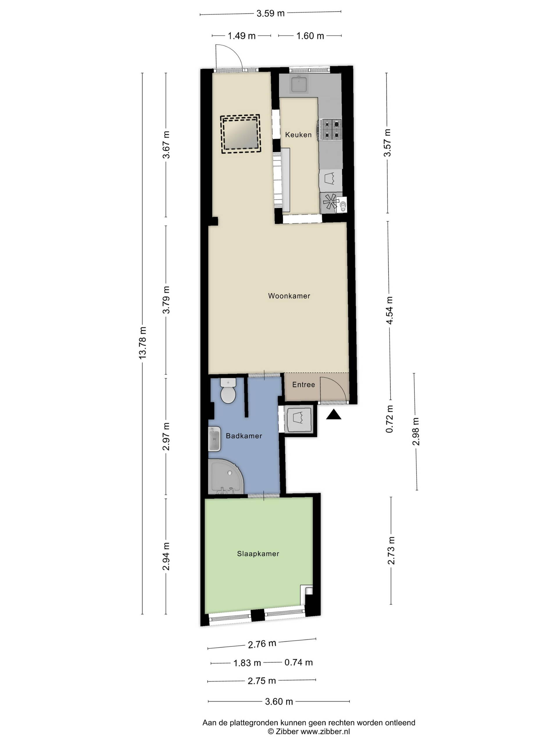
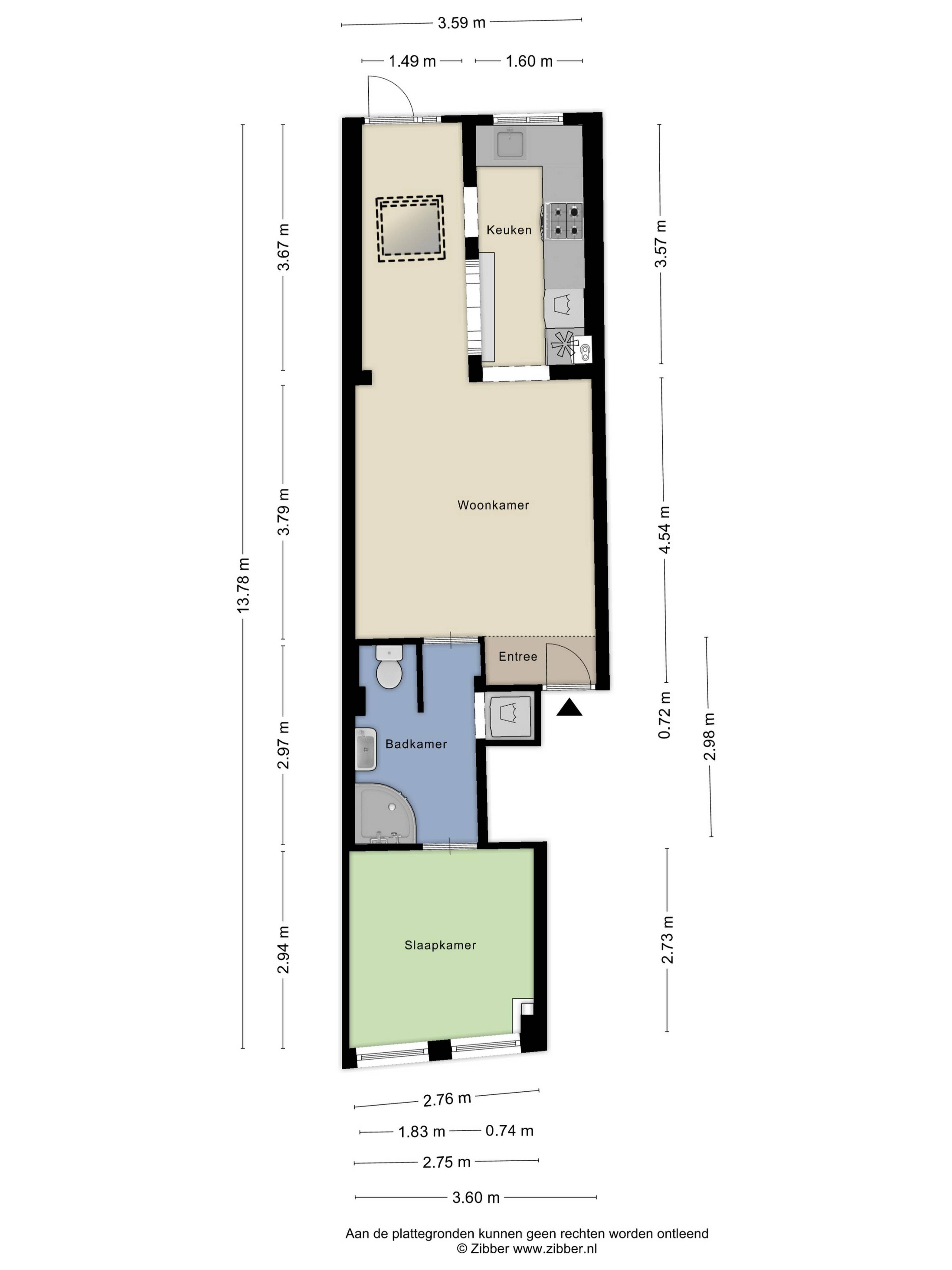
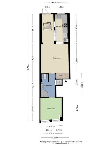
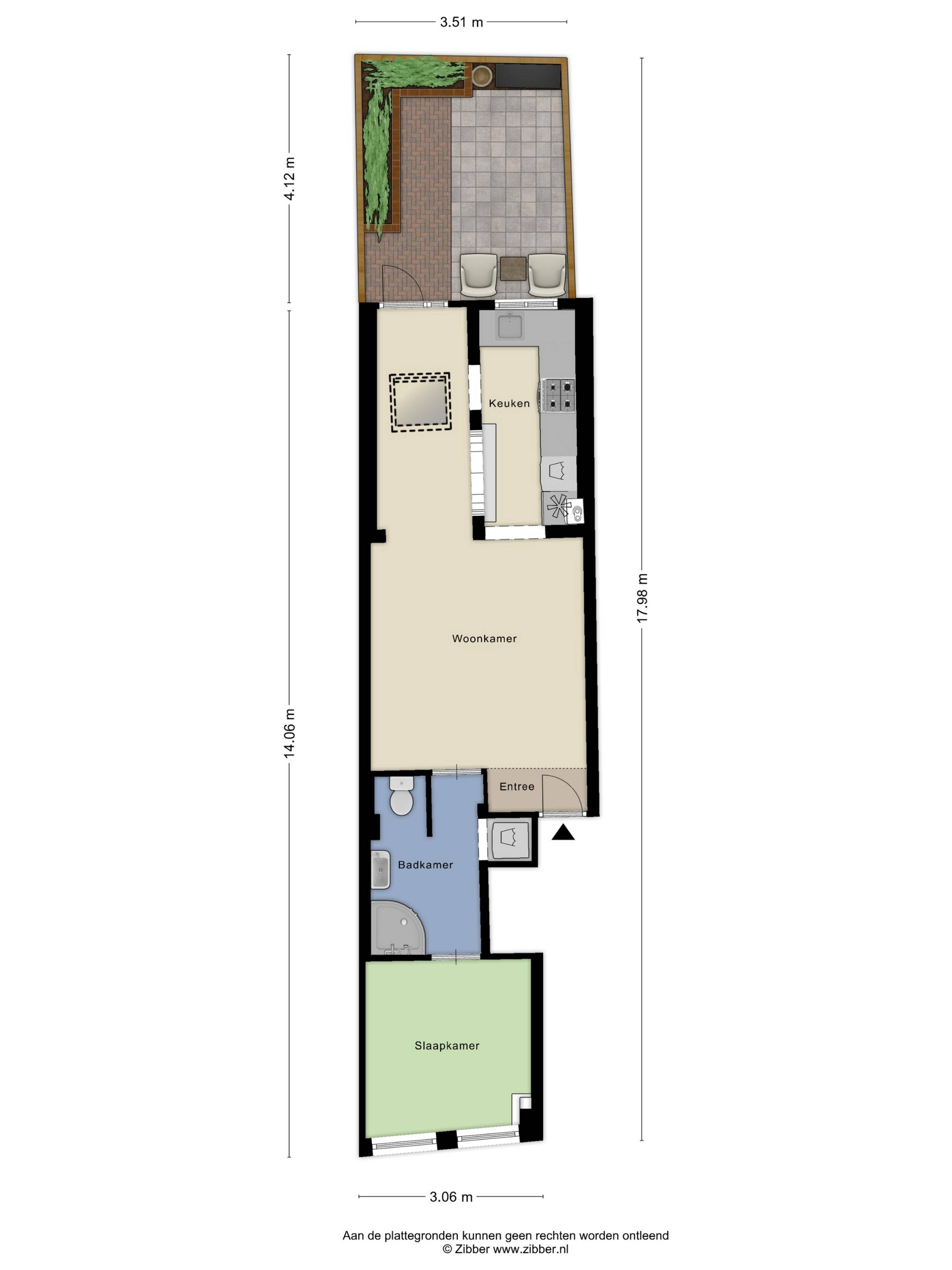
Bij binnenkomst komt u in de woonkamer met open keuken, het hart van het appartement. De keuken is praktisch ingericht en voorzien van een gaskookplaat, afzuigkap, voldoende kastruimte en een ruim aanrechtblad. De koelkast en wasmachine blijven achter, wat het geheel extra aantrekkelijk en instapklaar maakt.
De badkamer ligt centraal tussen de woonkamer en de slaapkamer en is uitgerust met een douche, toilet, wastafel met meubel en een handdoekradiator. Tevens is hier een handige opstelplaats voor de droger, die eveneens achterblijft.
De slaapkamer bevindt zich aan de voorzijde van het appartement en biedt een prettige en rustige ruimte met voldoende plek voor een comfortabel bed en kastruimte.
Als mooie buitenruimte beschikt de woning over een heerlijke tuin van circa 14 m², gelegen op het zuiden. Hier geniet u vrijwel de hele dag van de zon en heeft u een fijne plek om te ontspannen of gezellig buiten te zitten.
Bronkhorststraat 7 biedt daarmee een ideale combinatie van comfort, energiezuinig wonen, een zonnige tuin en een uitstekende locatie in het geliefde Noorderkwartier van Leiden.
Bijzonderheden:
- Gebruiksoppervlakte wonen 42m2
- Inhoud 138m3
- Bouwjaar 1925
- VvE bijdrage €90,-
- Voorschot gas, water en elektra €100,- (tussenmeters voor gas en elektra aanwezig)
- Energielabel A
- CV-ketel Remeha Avanta 2012
- Goede bereikbaarheid met openbaar vervoer en nabijgelegen snelwegen
- Niet-bewoners clausule van toepassing
Bij woningen ouder dan 30 jaar hanteren wij standaard een ouderdoms- en asbestclausule.
English text
Living in the beloved Noorderkwartier with a Sunny Garden – Bronkhorststraat 7, Leiden
Located in the popular Noorderkwartier district, just outside the canals of Leiden, this charming and energy-efficient two-room apartment is situated on the ground floor. Here you live peacefully in a pleasant residential area, while the lively city remains within easy reach. The vibrant city center is within walking distance, as is the green Huigpark where you can relax. Leiden Central Station is also nearby. In addition, supermarkets, shops and other daily amenities are located in the immediate vicinity.
The apartment is part of a small-scale complex and has energy label A, ensuring comfortable and energy-efficient living. Through the shared entrance, which you share with the apartments on the first floor and two apartments on the second floor, you access the property.
Upon entry, you arrive in the living room with an open kitchen, the heart of the apartment. The kitchen is practically laid out and equipped with a gas hob, extractor hood, sufficient cupboard space and a spacious countertop. The refrigerator and washing machine remain, making the property even more attractive and move-in ready.
The bathroom is centrally located between the living room and the bedroom and is equipped with a shower, toilet, washbasin with vanity unit, and a towel radiator. There is also a convenient space for a dryer, which also remains.
The bedroom is located at the front of the apartment and offers a pleasant and quiet space with enough room for a comfortable bed and wardrobe.
As a lovely outdoor space, the property features a delightful garden of approximately 14 m², facing south. Here you can enjoy the sun almost all day and have a pleasant place to relax or sit outside comfortably.
Bronkhorststraat 7 offers the ideal combination of comfort, energy-efficient living, a sunny garden and an excellent location in the beloved Noorderkwartier of Leiden.
Features:
- Living area: 42 m²
- Volume: 138 m³
- Year of construction: 1925
- VvE (Homeowners Association) contribution: €90 per month
- Advance payment for gas, water, and electricity: €100 per month (sub-meters for gas and electricity available)
- Energy label: A
- Central heating boiler: Remeha Avanta 2012
- Good accessibility by public transport and nearby highways
- Non-occupancy clause applies
For properties older than 30 years, we standardly apply an age and asbestos clause.