appartement/flat appartement

Burggravenlaan 1922313 JA  Leiden

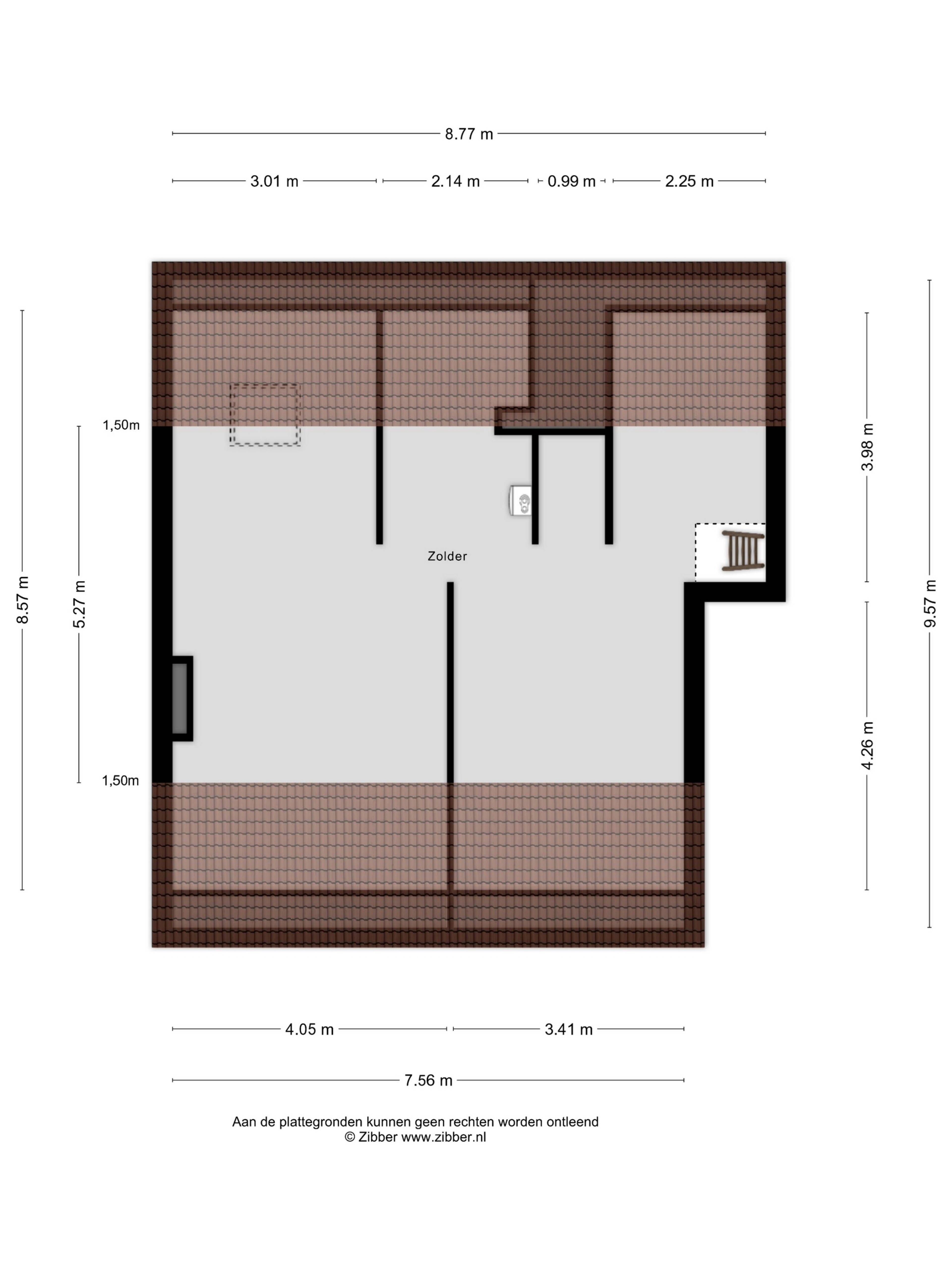
77 m2 4 kamers 3 slaapkamers

425.000 k.k.

Burggravenlaan 192 Leiden
Naar boven