English text see below
Zeer karakteristieke, sfeervolle en zonnig gelegen woning op een toplocatie middenin de historische binnenstad van Leiden met 3 slaapkamers, een badkamer met een separaat toilet en een heerlijke woonkeuken!
Deze fijne woning ligt op een steenworp afstand van alle stadse gemakken zoals de mooie winkelstraten, grachten, het Singelpark, diverse musea, restaurants en uitgaansgelegenheden met terras. De Breestraat, het centrum van Leiden, met verschillende buslijnen is pal om de hoek; de woning zelf is gelegen aan de Langebrug, een rustige en pittoreske straat in de autoluwe zone (dus nauwelijks verkeer). Verder ligt het gunstig ten opzichte van het Centraal Station (5 minuten fietsen), het LUMC, het Bio Science Park en diverse universiteitsgebouwen. De uitvalswegen (A-4, N-11 en A-44) zijn snel te bereiken. Dit is echt een toplocatie!
Bekijk ook de bezichtigingsvideo!
Indeling:
Begane grond;
Entree met direct toegang tot de fraaie woonkamer met aansluitend de gezellige keuken met een eetgedeelte waar voorheen de binnenplaats was. Door o.a. nog de aanwezige hoge ramen naar de woonkamer is dit een heel gezellig zitgedeelte met veel daglicht. De knusse keuken beschikt o.a. over een 4-pitsgasfornuis, een inbouwoven en een (losse) magnetron.
De gehele begane grond is voorzien van een fraaie laminaatvloer.
1ste verdieping
Ruime overloop met toegang tot de royale (slaap)kamer aan de voorzijde, de badkamer en een separaat toilet. De lichte (slaap)kamer beschikt over mooie grote originele ramen met prachtig uitzicht op de Langebrug met de vele monumentale geveltjes.
De lichte badkamer heeft een douche, een groot raam, een wastafel en een wasmachine aansluiting. Hier bevindt zich tevens de CV- ketel. Aan de overloop is een separaat toilet met fonteintje.
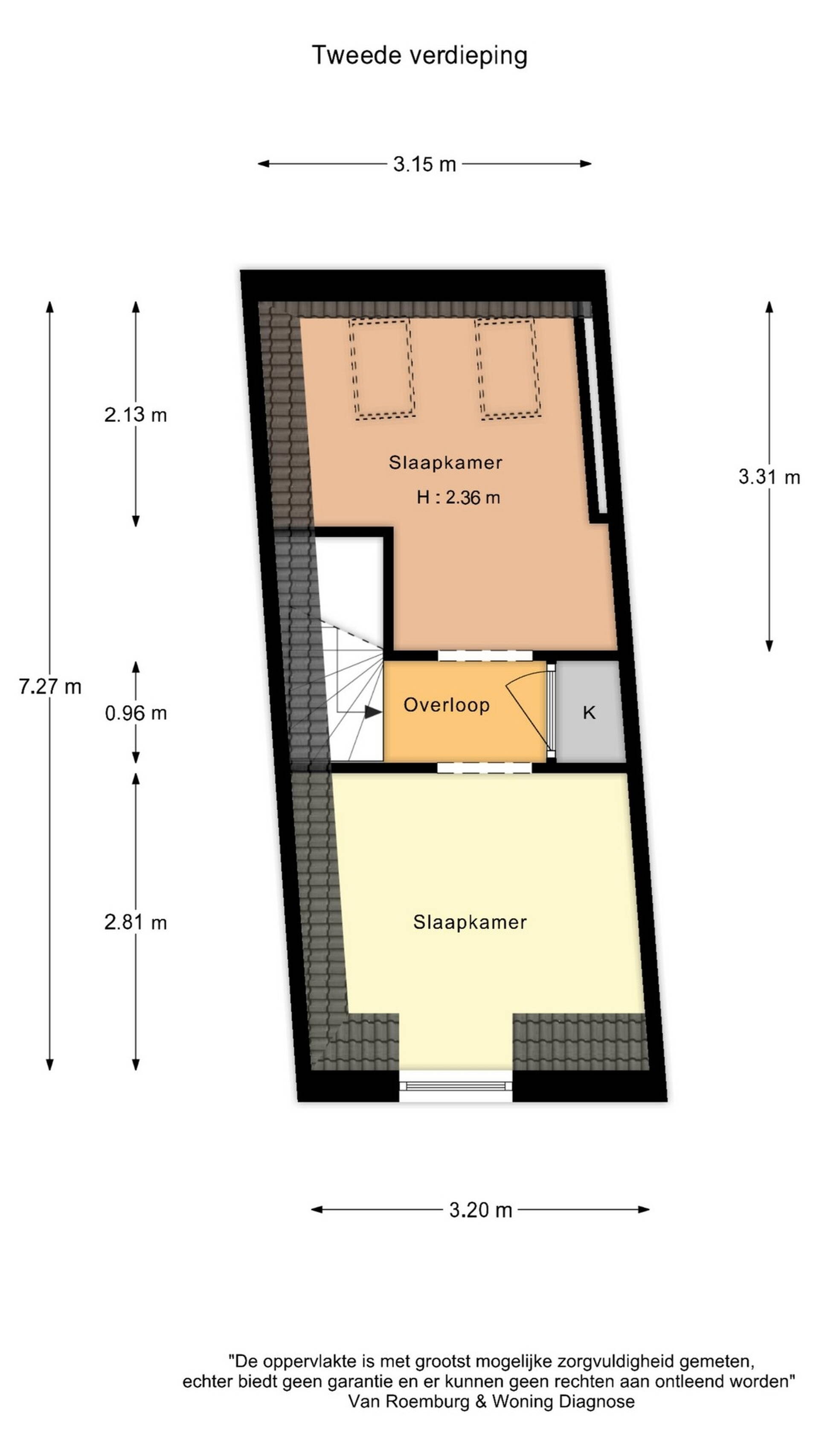
2de verdieping
Overloop met ruime inbouwkast en toegang tot de twee sfeervolle (slaap)kamers. De zonnige kamer aan de voorzijde heeft een dakkapel en de gezellige kamer aan de achterzijde twee dakraampjes. Vanuit de overloop is er middels een vlizotrap toegang tot de zeer grote vliering met heel veel extra bergruimte.
De eerste en tweede verdieping zijn voorzien van een prachtige houten vloer!
Bijzonderheden:
- Bouwjaar 1640
- Beschermd stadsgezicht
- Gebruiksoppervlakte wonen 76m2
- Er is een recent bouwtechnische keuring (d.d. 29 september 2025) beschikbaar
- Inhoud 285m3
- Perceel 39m2
- CV ketel Vaillant, bouwjaar december 2018
- Energielabel C
- Meterkast 4 groepen smelt
- Gedeeltelijk dubbel glas
- Betaald parkeren (vergunning)
- Oplevering in overleg
Bij woningen ouder dan 30 jaar hanteren wij standaard een asbest- en ouderdomsclausule.
-------------------------------------------------------------------------------------------------------
Very Characteristic, Charming, and Sunny Home in a Prime Location in the Heart of Leiden’s Historic City Centre, Featuring 3 Bedrooms, a Bathroom with Separate Toilet, and a Delightful Kitchen-Diner!
This lovely home is just a stone’s throw away from all the city’s conveniences, such as beautiful shopping streets, canals, the Singelpark, various museums, restaurants, and nightlife with terraces. The Breestraat – the main street of Leiden – with several bus lines is right around the corner. The house itself is located on the Langebrug, a quiet and picturesque street in a low-traffic zone (so hardly any cars). It’s also ideally located in relation to Leiden Central Station (5 minutes by bike), the LUMC hospital, the Bio Science Park, and several university buildings. Major highways (A4, N11, and A44) are easily accessible. This truly is a top location!
Also check out the viewing video!
Layout:
Ground floor:
Entrance with direct access to the charming living room, which flows into the cozy kitchen-diner, situated where the courtyard used to be. Thanks to the high windows that remain between the kitchen and living room, this is now a lovely sitting area with lots of daylight. The charming kitchen includes a 4-burner gas stove, a built-in oven, and a (freestanding) microwave.
The entire ground floor features an attractive laminate floor.
First floor:
Spacious landing with access to the large (bed)room at the front, the bathroom, and a separate toilet. The bright (bed)room features beautiful large original windows offering a stunning view of the Langebrug with its many historic façades.
The bright bathroom has a shower, a large window, a sink, and a washing machine connection. The central heating boiler is also located here. Off the landing is a separate toilet with a small sink.
Second floor:
Landing with a large built-in wardrobe and access to two charming (bed)rooms. The sunny room at the front has a dormer window, and the cozy room at the back has two skylights. From the landing, a loft ladder provides access to the very spacious attic with lots of extra storage space.
Both the first and second floors have beautiful wooden flooring!
Details:
- Year of construction: 1640
- Protected cityscape (heritage zone)
- Usable living area: 76 m²
- A recent structural survey (dated September 29, 2025) is available
- Volume: 285 m³
- Plot size: 39 m²
- Central heating boiler (Vaillant), installed December 2018
- Energy label: C
- Fuse box with 4 fuses
- Partially double glazed
- Paid parking (permit required)
- Delivery in consultation
For homes older than 30 years, we standardly apply an asbestos and age clause.