Karakteristieke stadswoning met diepe tuin en volop mogelijkheden in Leiden
Ben jij op zoek naar een woning die je volledig naar eigen smaak kunt vormgeven? Dan is deze karakteristieke tussenwoning een unieke kans. Gelegen in een rustige straat met voornamelijk bestemmingsverkeer, woon je hier in een prettige en ontspannen omgeving, terwijl alle voorzieningen van Leiden binnen handbereik liggen.
Deze woning biedt een solide basis en is bij uitstek geschikt voor wie de handen uit de mouwen wil steken. De indeling is praktisch en de ruimtes zijn verrassend licht, met name de woonkamer aan de voorzijde waar de grote raampartijen zorgen voor een fijne, open sfeer.
Aan de achterzijde van de woning bevindt zich de keuken, met aansluitend de badkamer en separate toiletruimte. De huidige afwerking is gedateerd, maar biedt juist de kans om het geheel volledig te moderniseren en naar eigen inzicht opnieuw in te delen.
Een absoluut pluspunt van deze woning is de diepe achtertuin. Hier heb je alle ruimte om een heerlijke buitenplek te creëren, waar je kunt genieten van rust en privacy midden in de stad. Achter in de tuin bevindt zich een praktische vrijstaande berging.
Kenmerken:
•Woonoppervlakte: ca. 78 m²
•Bouwjaar: 1929
•Energielabel: E
•Drie slaapkamers
•Achtertuin op het zuidwesten
•Parkeren in de straat is mogelijk met een vergunning (de kosten hiervan bedragen 61,- per jaar)
•De eigendomsoverdracht zal plaatsvinden bij BMS Notarissen
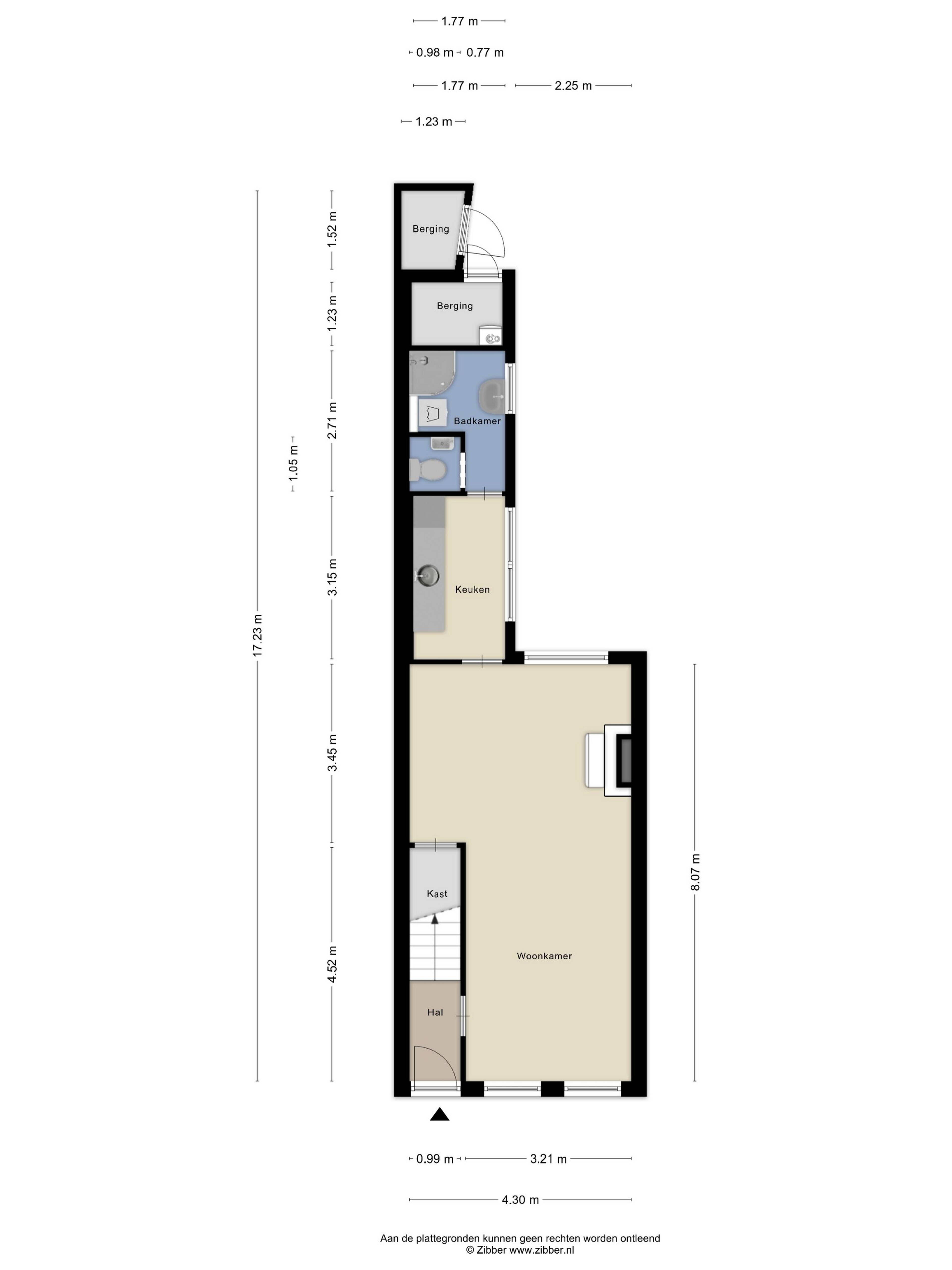
Indeling:
Begane grond:
Entree via de hal met trapopgang en bergruimte. Vanuit de hal bereik je de lichte woonkamer aan de voorzijde. Aan de achterzijde bevindt zich de keuken met aansluitend de badkamer en het toilet. Vanuit de keuken heb je toegang tot de diepe achtertuin.
Eerste verdieping:
Op de eerste verdieping bevinden zich drie slaapkamers, elk voorzien van daglicht en inbouwkasten met diverse mogelijkheden qua indeling. Ideaal voor een gezin, thuiswerkplek of hobbyruimte. Daarnaast is er een zolderverdieping aanwezig, bereikbaar via een vlizotrap, die uitstekend dienst kan doen als bergruimte.
Locatie:
De woning ligt in een centrale en levendige wijk in Leiden, op korte afstand van het historische centrum. In de directe omgeving vind je winkels, supermarkten, scholen, sportvoorzieningen en speelgelegenheden. Ook de bereikbaarheid is uitstekend: zowel het openbaar vervoer als de uitvalswegen richting de A4 en A44 zijn snel te bereiken en Leiden Centraal ligt op korte fietsafstand.
Enthousiast geworden? Wacht niet te lang en plan direct een bezichtiging!
Deze informatie is met de grootst mogelijke zorg samengesteld. Desondanks kunnen wij geen aansprakelijkheid aanvaarden voor eventuele onjuistheden of onvolledigheden.
Bij woningen ouder dan 30 jaar worden standaard een ouderdomsclausule en asbestclausule opgenomen in de koopovereenkomst. Daarnaast zal voor deze woning een niet-bewoningsclausule van toepassing zijn.
De eigendomsoverdracht zal plaatsvinden bij BMS Notarissen.
Characteristic Townhouse with Deep Garden and Great Potential in Leiden
Are you looking for a property that you can fully customize to your own taste? Then this charming terraced house offers a unique opportunity. Situated in a quiet street with mainly local traffic, you will enjoy a pleasant and relaxed living environment, while all amenities of Leiden are within easy reach.
This property provides a solid foundation and is ideally suited for buyers who are willing to roll up their sleeves. The layout is practical and the rooms are surprisingly bright, especially the living room at the front, where large windows create a pleasant and open atmosphere.
At the rear of the house, you will find the kitchen, with the bathroom and a separate toilet adjacent. The current finish is dated, but this offers an excellent opportunity to modernize the entire space and redesign it according to your own preferences.
A major highlight of this property is the deep backyard. Here, you have plenty of space to create a wonderful outdoor area where you can enjoy peace and privacy in the middle of the city. At the back of the garden, there is a practical detached storage shed.
Key features:
•Living area: approx. 78 m²
•Year of construction: 1929
•Energy label: E
•Three bedrooms
•Backyard facing southwest
•Parking available in the street with a permit (approx. €61 per year)
•Transfer of ownership will take place at BMS Notarissen
Layout:
Ground floor:
Entrance via the hallway with staircase and storage space. From the hall, you access the bright living room at the front. At the rear, you will find the kitchen, with the bathroom and toilet adjacent. The kitchen provides access to the deep backyard.
First floor:
The first floor features three bedrooms, each with natural light and built-in wardrobes, offering various layout possibilities. Ideal for a family, home office, or hobby space. There is also an attic, accessible via a loft ladder, which is perfect for additional storage.
Location:
The property is located in a central and lively area of Leiden, within short distance of the historic city center. In the immediate vicinity, you will find shops, supermarkets, schools, sports facilities, and playgrounds. Accessibility is excellent: public transport and main roads (A4 and A44) are easily reachable, and Leiden Central Station is just a short bike ride away.
Interested? Don’t wait too long and schedule a viewing today!
Disclaimer:
This information has been compiled with the utmost care. However, we accept no liability for any inaccuracies or incompleteness.
For properties older than 30 years, an age clause and an asbestos clause will be included in the purchase agreement. In addition, a non-occupancy clause will apply to this property.
The transfer of ownership will take place at BMS Notarissen.