Comfortabel wonen met uitzicht, licht en rust – Sterreschans 185, Oegstgeest
Op een fraaie locatie in de jonge en geliefde wijk Nieuw Rhijngeest ligt dit moderne en uitstekend onderhouden 3-kamerappartement met eigen parkeerplaats en zonnig balkon op het zuidwesten. Een woning waar comfort, licht en bereikbaarheid perfect samenkomen — ideaal voor wie zorgeloos wil wonen in een eigentijdse woonomgeving.
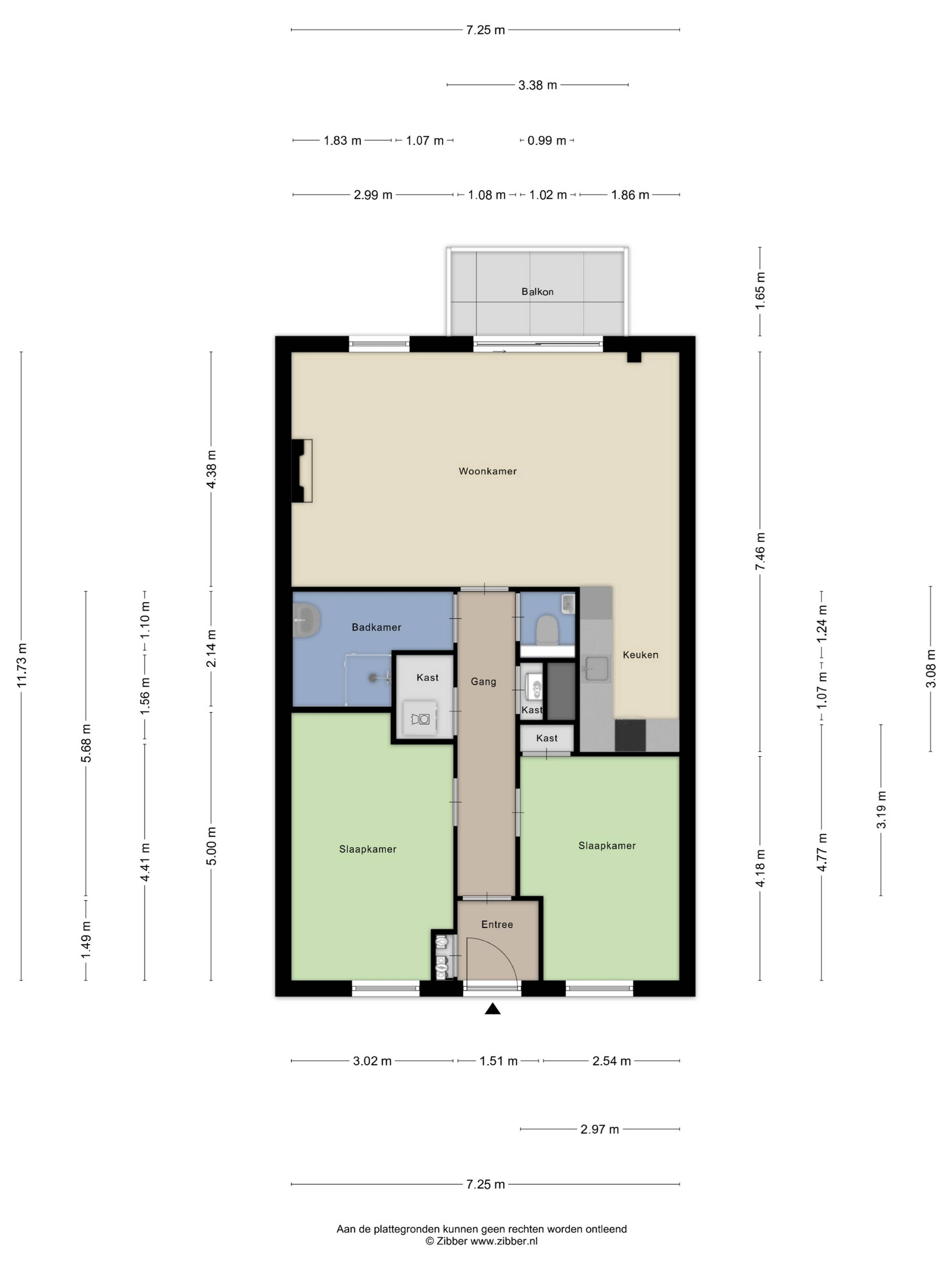
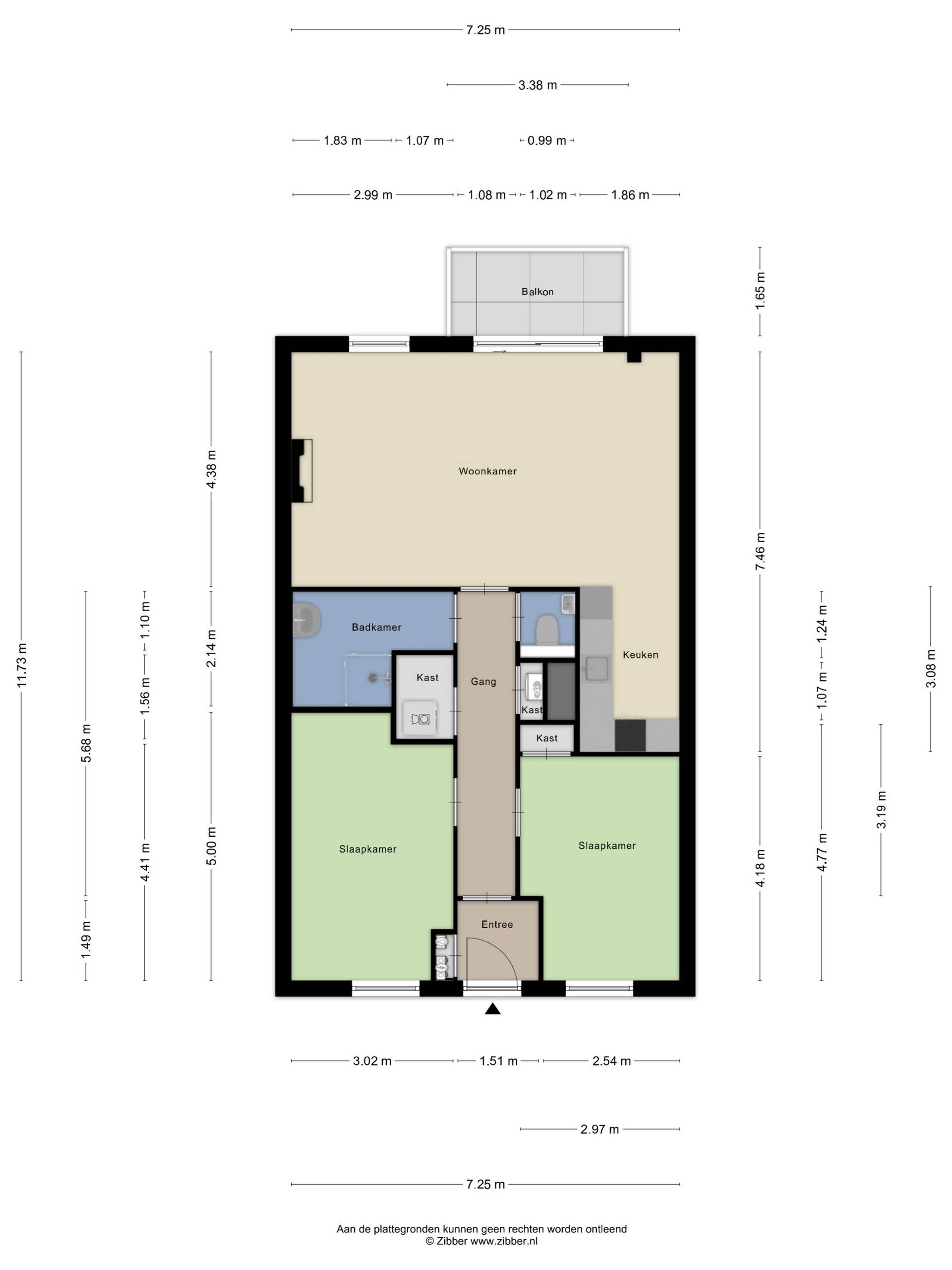
Het appartement bevindt zich op de vijfde verdieping en biedt een aangename woonbeleving dankzij de grote raampartijen en het vrije uitzicht over de omgeving. De combinatie van een lichte leefruimte, twee volwaardige slaapkamers en een praktische indeling maakt dit een woning die zowel starters als doorstromers direct zal aanspreken.
De open keuken sluit naadloos aan op de woonruimte en is compleet uitgevoerd met moderne inbouwapparatuur, waardoor koken en wonen op natuurlijke wijze in elkaar overlopen. Het balkon op het zuidwesten vormt een fijne verlenging van de woonkamer; een plek waar je vanaf de middag tot in de avond van de zon en het uitzicht geniet.
Naast het wooncomfort biedt het appartement praktische extra’s zoals een eigen parkeerplaats, een separate berging en een actieve en goed georganiseerde VvE. Het moderne appartementencomplex beschikt over een liftinstallatie en een verzorgde gemeenschappelijke entree.
De ligging is bijzonder prettig: rustig en groen, maar met alle dagelijkse voorzieningen binnen handbereik. Winkels, scholen, sportfaciliteiten en ziekenhuizen bevinden zich in de directe omgeving. Dankzij de gunstige ligging nabij de A44 zijn steden als Den Haag, Rotterdam en Amsterdam uitstekend bereikbaar. Ook Leiden, het centrum van Oegstgeest en het strand van Katwijk liggen op korte fietsafstand.
Kort samengevat:
•Modern 3-kamerappartement op de 5e verdieping
•Zonnig balkon op het zuidwesten met vrij uitzicht
•Eigen parkeerplaats en berging
•Twee ruime slaapkamers
•Goed onderhouden complex met lift
•Gelegen in een jonge, kindvriendelijke woonwijk
•Centrale ligging nabij uitvalswegen en voorzieningen
•Actieve VvE, bijdrage €183,- per maand
•Oplevering medio Mei 2026
Een comfortabel appartement op een aantrekkelijke locatie, klaar voor een nieuwe bewoner die hier direct kan genieten van ruimte, licht en gemak.
---
Comfortable Living with Views, Light and Tranquility – Sterreschans 185, Oegstgeest
Located in a beautiful spot in the young and highly sought-after Nieuw Rhijngeest neighborhood, this modern and well-maintained 3-room apartment features a private parking space and a sunny southwest-facing balcony. A home where comfort, natural light, and accessibility come together perfectly — ideal for those seeking carefree living in a contemporary residential environment.
The apartment is situated on the fifth floor and offers a pleasant living experience thanks to its large windows and unobstructed views of the surroundings. The combination of a bright living area, two full-sized bedrooms, and a practical layout makes this a property that will immediately appeal to both first-time buyers and those looking to move up the property ladder.
The open kitchen flows seamlessly into the living space and is fully equipped with modern built-in appliances, allowing cooking and living to blend naturally together. The southwest-facing balcony is a wonderful extension of the living room — a place where you can enjoy the sun and the view from the afternoon until the evening.
In addition to its living comfort, the apartment offers practical extras such as a private parking space, a separate storage unit, and an active and well-managed homeowners’ association (VvE). The modern apartment complex features an elevator and a well-maintained communal entrance.
The location is particularly pleasant: quiet and green, yet with all daily amenities within easy reach. Shops, schools, sports facilities, and hospitals are located nearby. Thanks to its convenient location close to the A44 motorway, cities such as The Hague, Rotterdam, and Amsterdam are easily accessible. Leiden, the center of Oegstgeest, and the beach of Katwijk are also just a short bike ride away.
In summary:
•Modern 3-room apartment on the 5th floor
•Sunny southwest-facing balcony with open views
•Private parking space and storage unit
•Two spacious bedrooms
•Well-maintained complex with elevator
•Located in a young, family-friendly neighborhood
•Centrally located near major roads and amenities
•Active homeowners’ association, contribution €183 per month
•Expected delivery: mid-May 2026
A comfortable apartment in an attractive location, ready for a new resident to immediately enjoy its space, light, and convenience.