Ruime gezinswoning met garage, eigen oprit en dakterras.
In een rustige, groene straat in Zoeterwoude-Rijndijk bevindt zich deze lichte en royale eengezinswoning. De woning beschikt over een ruime woonkamer met open keuken, maar liefst vijf slaapkamers, een comfortabele badkamer, een zonnige tuin, een dakterras, een eigen oprit én een garage. Kortom, een ideale woning voor wie op zoek is naar ruimte, comfort en een fijne woonomgeving.
Bijzonderheden:
-Bouwjaar 1977
-Woonoppervlakte ca.134m2
-Perceeloppervlakte: ca. 206m2
-Energielabel B
-Royale woonkamer met open keuken
-5 slaapkamers
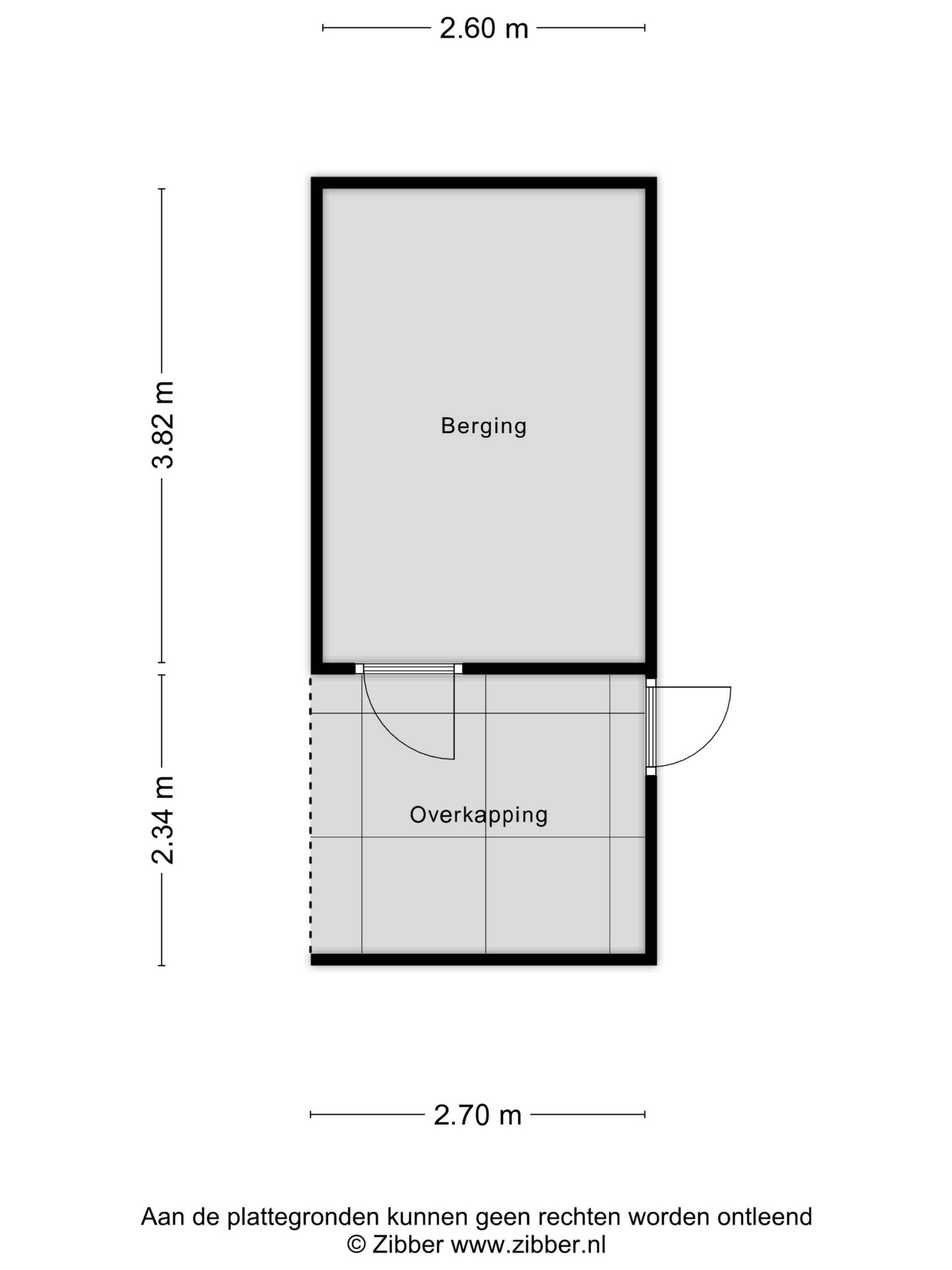
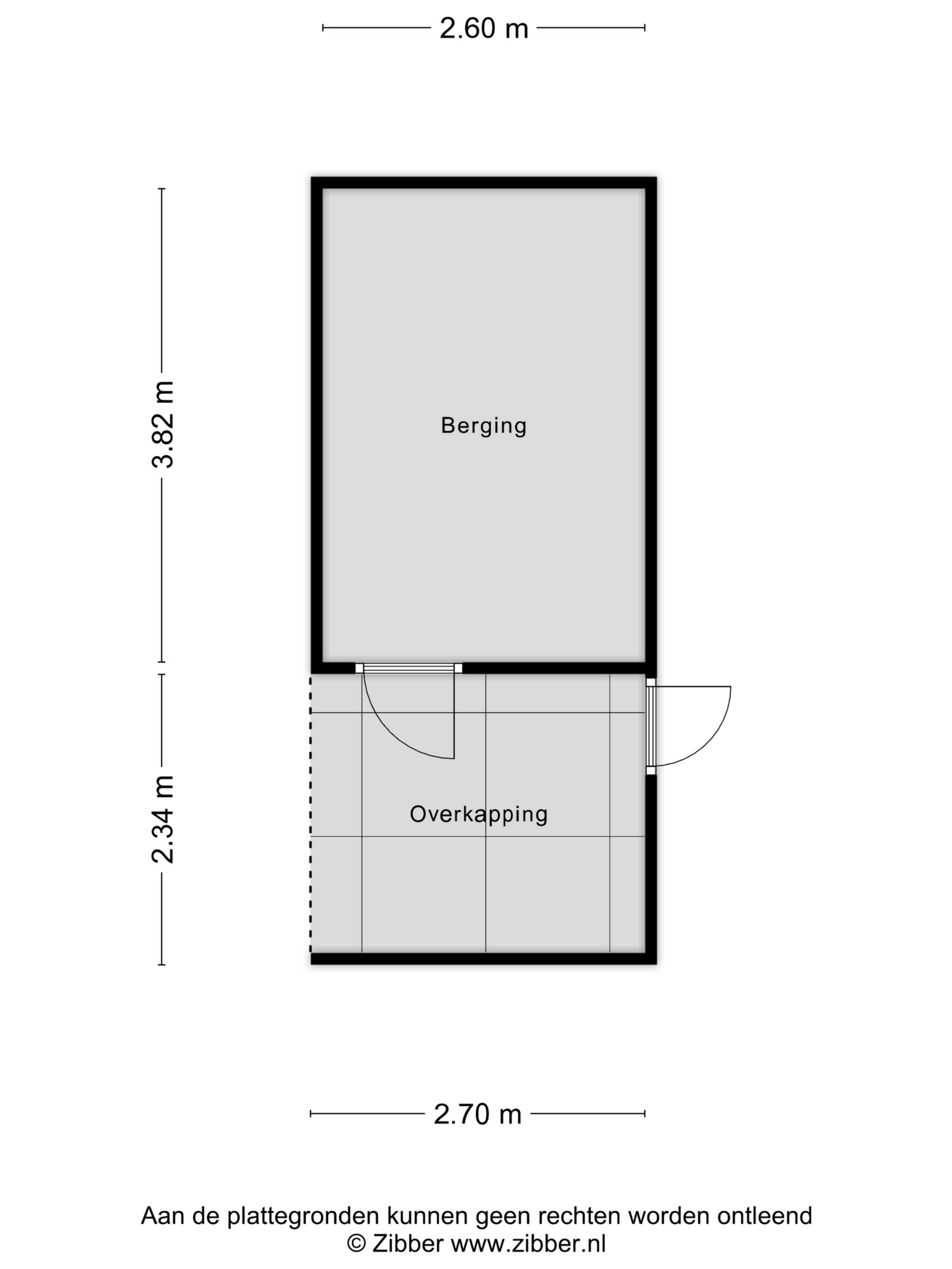
-Ruime tuin met berging
-Garage
-Eigen oprit
-Dakterras
-Netjes onderhouden
-8 zonnepanelen
-Zonneboiler
-Vloerisolatie
-Rustige en kindvriendelijke straat
-Dichtbij uitvalswegen
-Leiden centrum om 15 min fietsen
Locatie:
De woning ligt in het sfeervolle en gewilde Zoeterwoude-Rijndijk, een dorp met een rustig en groen karakter en een aangename woonomgeving. In de nabije omgeving zijn alle dagelijkse voorzieningen aanwezig, waaronder winkels, basisscholen en diverse sportfaciliteiten. Voor liefhebbers van natuur en recreatie bevinden het Groene Hart en de omliggende polders zich op korte afstand, perfect voor wandelen, fietsen of hardlopen. Daarnaast is de ligging bijzonder centraal. Het levendige centrum van Leiden is eenvoudig per fiets te bereiken en biedt een breed scala aan winkels, restaurants, culturele voorzieningen en onderwijsinstellingen. Ook de uitvalswegen richting Den Haag, Amsterdam en Utrecht zijn snel toegankelijk. Het openbaar vervoer is eveneens goed geregeld, met directe busverbindingen naar onder andere Leiden en Gouda.
Begane grond:
Bij binnenkomst treft u in de ruime hal een toilet met fonteintje, evenals een moderne meterkast en voldoende plek voor een garderobe. De woning beschikt over een royale en lichte woonkamer met open keuken, waar moeiteloos ruimte is voor een comfortabele zithoek en een grote eettafel. Dankzij de grote raampartijen geniet de ruimte van een prettige hoeveelheid daglicht. Ook vindt u hier een fijne trapkast. De verzorgde keuken ligt aan de voorzijde van de woning en is praktisch ingericht. Er is volop werk- en bergruimte aanwezig, en de keuken is voorzien van een groot inductiefornuis, een vaatwasser en een losse SMEG koelvriescombinatie.
Eerste etage
Op de eerste verdieping bevinden zich drie slaapkamers. De royale master bedroom ligt aan de achterzijde van de woning en biedt volop ruimte voor een groot tweepersoonsbed en een ruime kledingkast. Dankzij de grote raampartijen is deze kamer bovendien heerlijk licht en voelt deze extra ruim aan. Aan de voorzijde bevindt zich een eveneens ruime slaapkamer, die voldoende plek biedt voor een bed en een kast. Ook deze kamer is prettig licht en flexibel in te delen, bijvoorbeeld als kinderkamer, werkkamer of logeerruimte. De derde kamer wordt nu gebruikt als inloopkast maar is ook prima te gebruiken als slaapkamer. De ruime en nette badkamer is volledig betegeld en praktisch ingedeeld. De ruimte is voorzien van een fijne douche en een ligbad. Daarnaast beschikt de badkamer over een tweede toilet. Verder is de badkamer voorzien van natuurlijke ventilatie.
Tweede etage
De tweede verdieping is ruim opgezet en beschikt over twee volwaardige slaapkamers. Dankzij de dakramen genieten beide kamers van een prettige hoeveelheid natuurlijk licht, wat zorgt voor een lichte en aangename sfeer. Aan de voorzijde bevindt zich een ruime, aparte wasruimte met aansluitingen voor de wasmachine en droger, evenals een praktische wastafel. In deze ruimte is tevens de omvormer van de zonnepanelen geplaatst. Aan de achterzijde van de woning is een afgesloten technische ruimte waar de cv-ketel en zonneboiler zijn opgesteld. Tot slot beschikt deze verdieping over een ruim dakterras aan de achterzijde.
Deze informatie is met de grootst mogelijke zorg samengesteld. Echter, wij aanvaarden geen aansprakelijkheid voor eventuele onvolledigheden of onjuistheden. Voor woningen ouder dan 30 jaar hanteren wij standaard een asbest- en ouderdomsclausule.