Licht, sfeervol en goed onderhouden appartement met zonnig balkon, gelegen aan de populaire Theresiastraat in Bezuidenhout.
** For English see below**
Welkom in Bezuidenhout, één van de meest geliefde wijken van Den Haag. Dit appartement bevindt zich op een toplocatie, op loopafstand van zowel de gezellige Theresiastraat als het groene Haagse Bos. Voor dagelijkse boodschappen, speciaalzaken, horeca en terrassen hoef je de wijk niet uit, terwijl je voor rust en natuur binnen enkele minuten het bos in wandelt.
De bereikbaarheid is uitstekend. Openbaar vervoer (tram en bus) stopt om de hoek en de stations Den Haag Centraal en Station Laan van NOI liggen op korte afstand. Met de auto ben je via de Utrechtsebaan binnen enkele minuten op de A4, A12 en A13, waardoor steden als Rotterdam en Amsterdam goed bereikbaar zijn. Het centrum van Den Haag ligt op slechts 10 minuten fietsen en ook het strand van Scheveningen is eenvoudig te bereiken.
De Theresiastraat vormt het levendige hart van de wijk en biedt een aantrekkelijke mix van landelijke ketens, lokale speciaalzaken en gezellige horeca. Dit maakt het een centrale en bruisende plek voor bewoners.
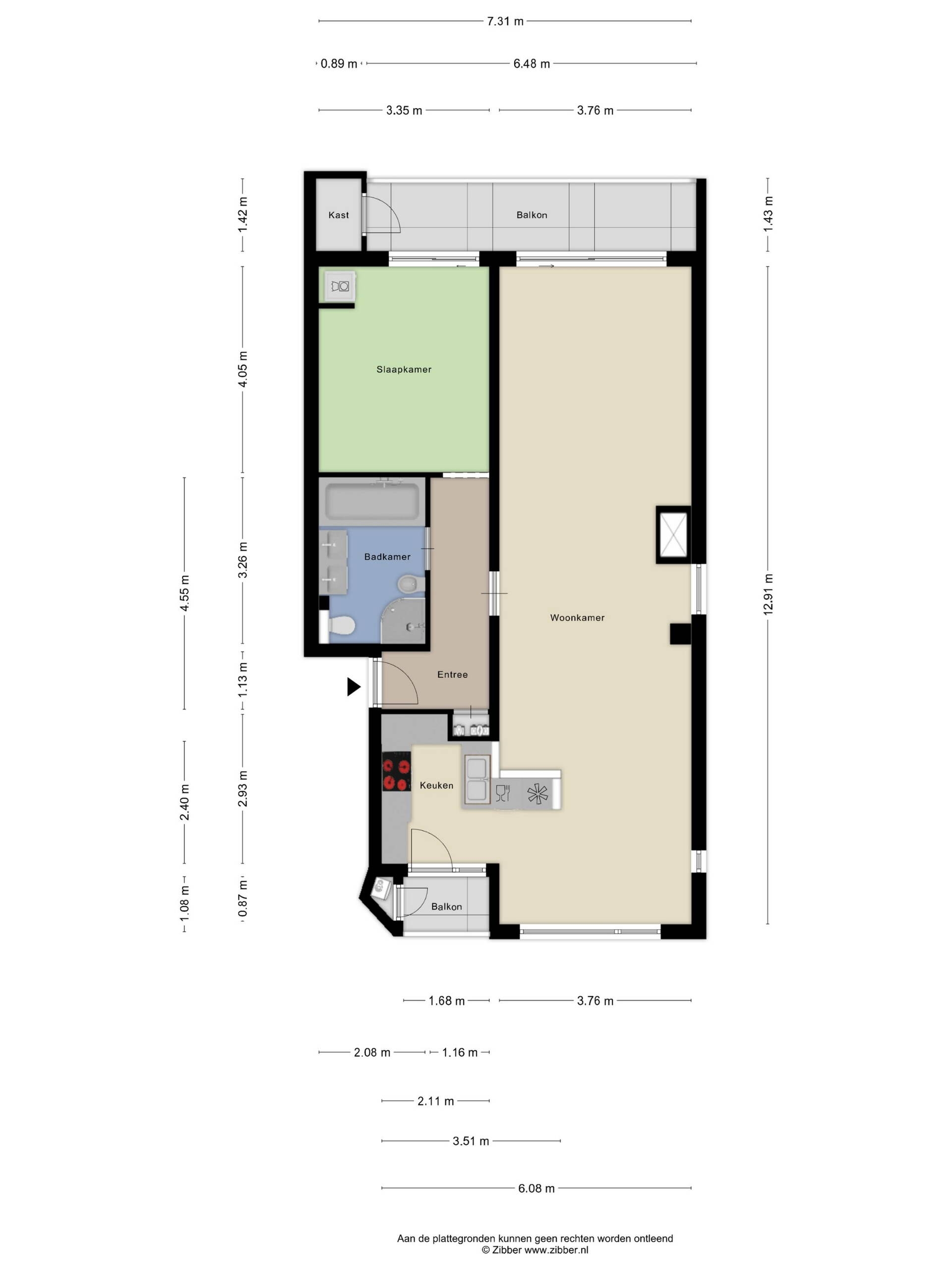
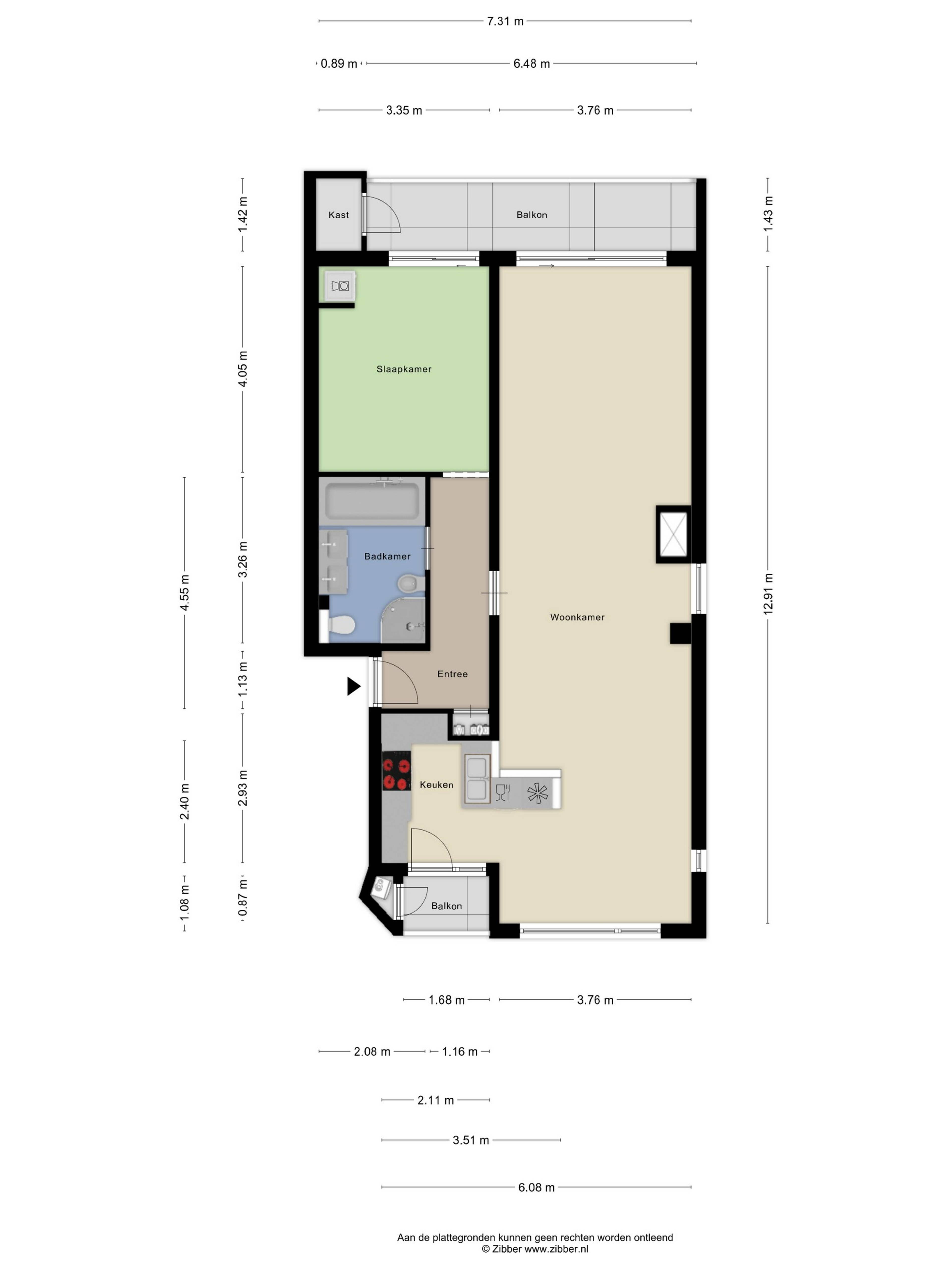
Indeling en kenmerken van de woning
Via de portiektrap bereik je de woning op de eerste verdieping. De entree biedt een ruime hal met voldoende plek voor een garderobe en geeft toegang tot alle vertrekken.
De badkamer is compleet uitgevoerd en voorzien van een ligbad, douche, bidet en dubbele wastafel. Aangrenzend bevindt zich de ruime slaapkamer, met voldoende plaats voor een tweepersoonsbed en een grote kledingkast. Tevens is hier een kast met aansluitingen voor wasmachine en droger en is er via een schuifdeur toegang tot het balkon.
De woonkamer is bijzonder ruim en strekt zich uit over de volledige lengte van het appartement. Dankzij de hoekligging en extra zijramen is de ruimte heerlijk licht en geniet je van een prettig uitzicht. De sfeervolle afwerking, met mooie vloerdelen en een gezellige open haard, maakt dit een fijne leefruimte. Vanuit de woonkamer is er toegang tot het zonnige balkon op het zuiden, een ideale plek om te ontspannen en van de zon te genieten.
Aan de voorzijde bevindt zich de open keuken, die is voorzien van een ruim werkblad en diverse inbouwapparatuur, waaronder een vaatwasser en oven. Vanuit de keuken is er toegang tot het balkon aan de voorzijde van het appartement. Hier hangt de cv-ketel en kan ’s-Avonds van de zon worden genoten.
De huidige indeling beschikt over één ruime slaapkamer, maar de royale woonkamer biedt de mogelijkheid om eenvoudig een extra slaapkamer te realiseren (zoals oorspronkelijk het geval was).
Wat maakt deze woning bijzonder?
•Gelegen op een toplocatie in Bezuidenhout
•Zonnig balkon op het zuiden
•Voorzien van zonnewering
•Zeer lichte en ruime woonkamer met open haard
•Open keuken met inbouwapparatuur
•Mogelijkheid tot het creëren van een extra slaapkamer
•Goede staat van onderhoud
•Gelegen op eigen grond
•Berging aan de achterkant op eigen terrein
•Volledig voorzien van vloerverwarming
Goed om te weten
•Woonoppervlakte: 85m2
•Energielabel C
•Actieve VvE, bijdrage €178,65 per maand
•CV-ketel (Remeha, 2015)
•Oplevering in overleg
•Voorzien van vloerverwarming
•Ouderdoms-, en asbestclausule van toepassing
Een heerlijk licht en ruim appartement op een toplocatie in Den Haag — absoluut een bezichtiging waard!
** English text **
Bright, atmospheric, and well-maintained apartment with a sunny balcony, located on the popular Theresiastraat in Bezuidenhout.
Welcome to Bezuidenhout, one of the most sought-after neighborhoods in The Hague. This apartment enjoys a prime location within walking distance of both the lively Theresiastraat and the green Haagse Bos. For daily groceries, specialty shops, restaurants, and terraces, you don’t need to leave the neighborhood, while peace and nature are just a short walk away in the forest.
Accessibility is excellent. Public transport (tram and bus) stops just around the corner, and Den Haag Centraal Station and Laan van NOI Station are nearby. By car, you can reach the A4, A12, and A13 highways within minutes via the Utrechtsebaan, making cities like Rotterdam and Amsterdam easily accessible. The center of The Hague is only a 10-minute bike ride away, and the beach of Scheveningen is also easy to reach.
Theresiastraat forms the vibrant heart of the neighborhood, offering an attractive mix of national chains, local specialty shops, and cozy restaurants. This makes it a central and lively place for residents.
Layout and features of the property
Via the communal staircase, you reach the apartment on the first floor. The entrance opens into a spacious hallway with ample room for a wardrobe and access to all rooms.
The bathroom is fully equipped and features a bathtub, shower, bidet, and double sink. Adjacent is the spacious bedroom, with plenty of room for a double bed and a large wardrobe. There is also a cupboard with connections for a washing machine and dryer, and sliding doors provide access to the balcony.
The living room is exceptionally spacious and extends the full length of the apartment. Thanks to its corner position and additional side windows, the space is wonderfully bright and offers a pleasant view. The attractive finish, including beautiful flooring and a cozy fireplace, makes this a comfortable living area. From the living room, there is access to the sunny south-facing balcony—an ideal place to relax and enjoy the sun.
At the front of the apartment is the open-plan kitchen, which is equipped with a large worktop and various built-in appliances, including a dishwasher and oven. From the kitchen, there is access to the front balcony, where the central heating boiler is located and where you can enjoy the evening sun.
The current layout includes one spacious bedroom, but the generous living room offers the possibility to easily create an additional bedroom (as was originally the case).
What makes this property special?
•Prime location in Bezuidenhout
•Sunny south-facing balcony
•Equipped with sunshades
•Very bright and spacious living room with fireplace
•Open kitchen with built-in appliances
•Possibility to create an additional bedroom
•Well maintained
•Located on freehold land
•Storage at the rear on private property
•Fully equipped with underfloor heating
Good to know
•Living area: 85 m²
•Energy label C
•Active homeowners’ association (HOA), contribution €178.65 per month
•Central heating boiler (Remeha, 2015)
•Delivery in consultation
•Equipped with underfloor heating
•Age and asbestos clauses apply
A wonderfully bright and spacious apartment in a prime location in The Hague — definitely worth a viewing!