Energiezuinig tweekamerappartement op de tweede verdieping met praktische indeling
In de populaire wijk Noorderkwartier, net buiten de singels van Leiden, ligt dit charmante en energiezuinige tweekamerappartement op de tweede verdieping. Hier woont u rustig in een fijne woonomgeving, terwijl de levendigheid van de stad binnen handbereik is. Het bruisende centrum bevindt zich op loopafstand, net als het groene Huigpark waar u heerlijk kunt ontspannen. Ook Station Leiden Centraal ligt dichtbij. Daarnaast zijn supermarkten, winkels en andere dagelijkse voorzieningen in de directe omgeving aanwezig.
Het appartement maakt deel uit van een kleinschalig complex en beschikt over energielabel A, wat zorgt voor comfortabel en energiezuinig wonen. Het appartement is namelijk volledig gerenoveerd in 2020. Via de gedeelde entree en trapopgang, die u deelt met drie andere appartementen.
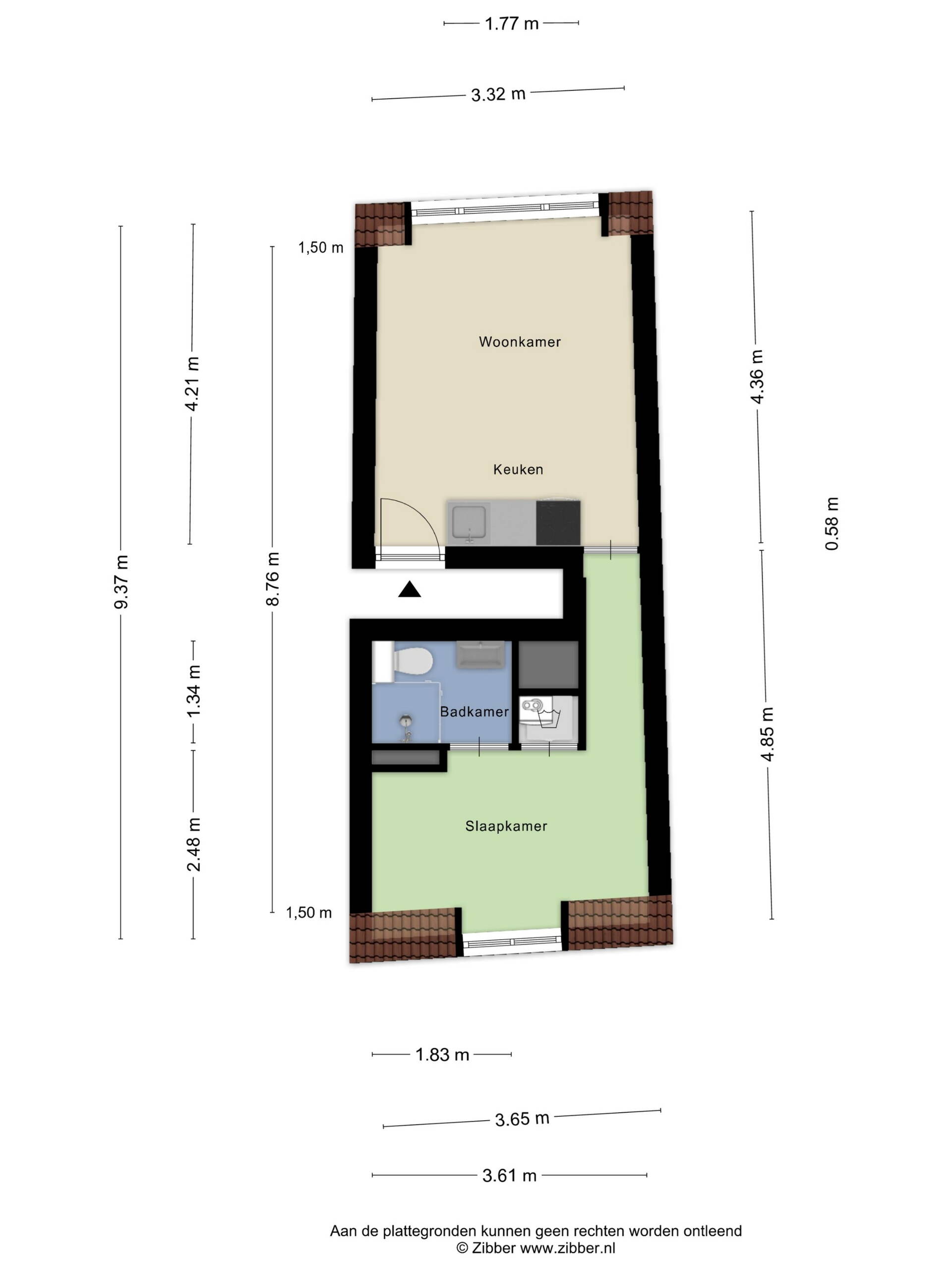
Bij binnenkomst komt u in de woonkamer met open keuken. De keuken is praktisch ingericht en voorzien van een gaskookplaat, afzuigkap, combi-oven en koel-vries combinatie.
De slaapkamer bevindt zich aan de voorzijde van het appartement en biedt een prettige en rustige ruimte met voldoende plek voor een comfortabel bed en kastruimte. Via de slaapkamer is de badkamer te bereiken, die is uitgerust met een douche, toilet, handdoekradiator en wastafel met meubel.
Daarnaast beschikt het appartement over een aparte bergruimte met de cv-installatie en de wasmachine, die achterblijft in de woning.
Bronkhorststraat 7B combineert comfortabel en energiezuinig wonen met een praktische indeling en een centrale ligging in Leiden.
Bijzonderheden:
-Gebruiksoppervlakte wonen 27,4 m2
-Inhoud 90 m3
-Bouwjaar 1925
-VvE bijdrage €90,-
-Voorschot gas, water en elektra €100,- (tussenmeters voor gas en elektra aanwezig)
-Energielabel A
-CV-ketel Vaillant 2021
-Goede bereikbaarheid met openbaar vervoer en nabijgelegen snelwegen
-Niet-bewoners clausule van toepassing
Bij woningen ouder dan 30 jaar hanteren wij standaard een ouderdoms- en asbestclausule.
Energy-efficient one-bedroom apartment on the second floor with a practical layout
In the popular Noorderkwartier district, just outside the canals of Leiden, you will find this charming and energy-efficient one-bedroom apartment on the second floor. Here, you can enjoy a calm and pleasant living environment, while the vibrancy of the city is within easy reach. The lively city center is within walking distance, as is the green Huigpark where you can relax. Leiden Central Station is also nearby. In addition, supermarkets, shops, and other daily amenities are located in the immediate vicinity.
The apartment is part of a small-scale complex and has an energy label A, ensuring comfortable and energy-efficient living. The property was fully renovated in 2020. You enter via a shared entrance and staircase, which is shared with three other apartments.
Upon entering, you arrive in the living room with an open kitchen. The kitchen is practically designed and equipped with a gas stove, extractor hood, combination oven, and fridge-freezer.
The bedroom is located at the front of the apartment and offers a pleasant and quiet space with enough room for a comfortable bed and wardrobe. The bathroom is accessible via the bedroom and is equipped with a shower, toilet, towel radiator, and a washbasin with cabinet.
Additionally, the apartment features a separate storage space with the central heating system and washing machine, which will remain in the property.
Bronkhorststraat 7B combines comfortable and energy-efficient living with a practical layout and a central location in Leiden.
Key features:
•Living area: 27.4 m²
•Volume: 90 m³
•Year of construction: 1925
•Homeowners’ association (VvE) contribution: €90 per month
•Advance payment for gas, water, and electricity: €100 (sub-meters for gas and electricity available)
•Energy label A
•Central heating boiler (Vaillant, 2021)
•Good accessibility by public transport and nearby highways
•Non-occupancy clause applies
For properties older than 30 years, we standardly apply an age and asbestos clause.