English text, see below
Centraal in Leiden, in een autoluwe straat met een speeltuintje, ligt deze ruime en lichte 5 kamer eengezinswoning met 2 badkamers, een groot balkon en een heerlijk zonnige achtertuin met berging en achterom.
Het historische centrum van Leiden en verder alles wat u zich maar kunt wensen ligt op loop- of fietsafstand. Bijvoorbeeld het geheel gerenoveerde winkelcentrum 'De Luifelbaan' met o.a. een Hema en Albert Heijn XL ligt op nog geen 300 meter afstand. Het gezellige centrum van Leiden met al haar winkels en restaurants, alsmede aansluiting openbaar vervoer, NS-station Lammenschans, meerdere scholen, diverse sportaccommodaties zoals voetbal, tennis, hockey, een zwembad en een ijshal liggen in de directe nabijheid. Via de uitvalswegen (A4, N11 en A44) bent u snel op weg richting alle grote steden. Ook voor het bos of het strand bent u niet lang onderweg, binnen 20 minuten met de auto kunt u een heerlijke wandeling maken.
Indeling:
Begane grond:
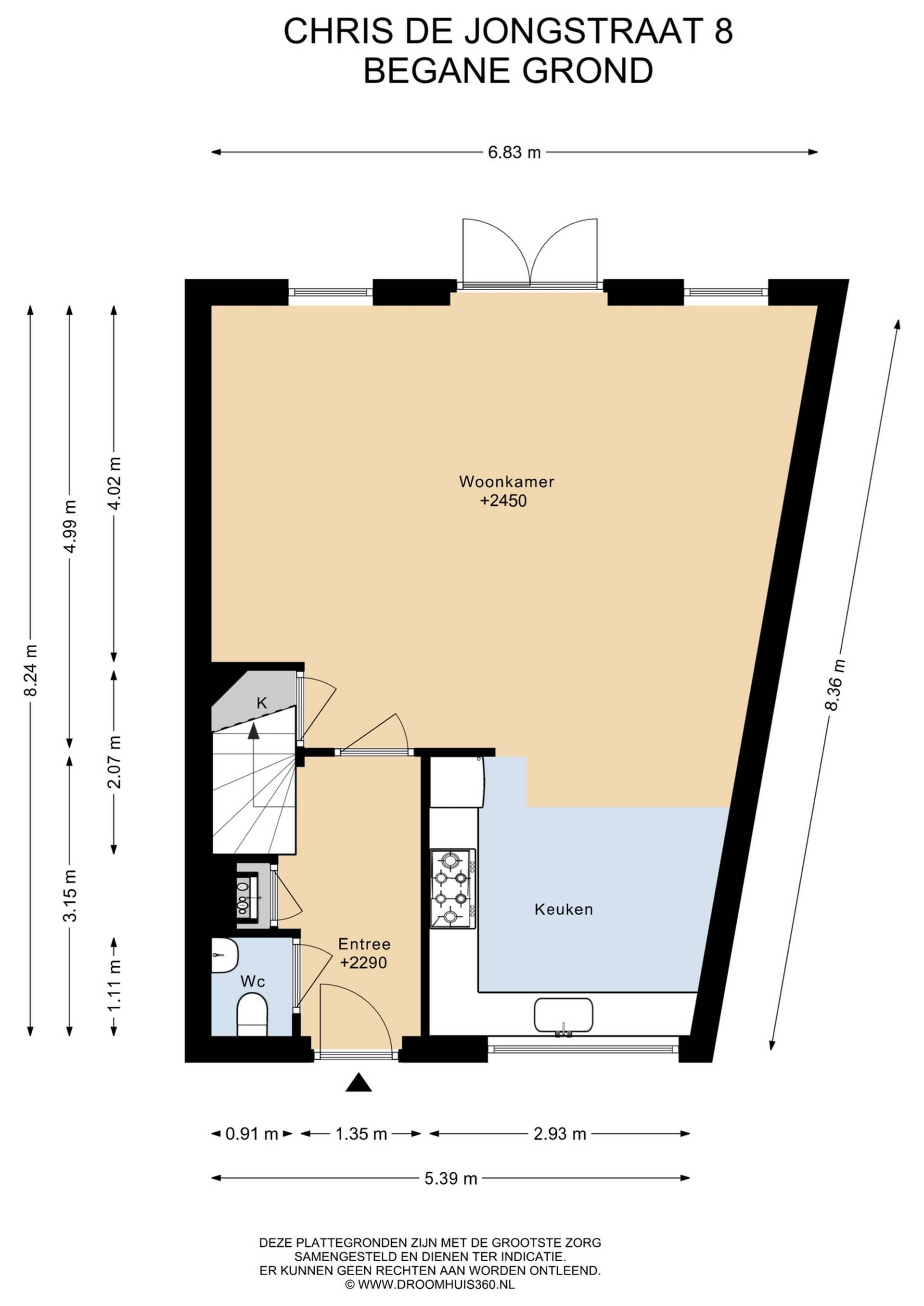
Entree, gang met de meterkast, toilet met fonteintje en toegang tot de woonkamer. De royale woonkamer is voorzien van openslaande deuren naar de tuin, een nette houten vloer, een trapkast en heeft dankzij de grote raampartijen veel lichtinval. De L vormige open keuken is wat gedateerd maar functioneert naar behoren, het is uiteraard voorzien van verschillende (inbouw) apparatuur zoals een 5 pits kookplaat met afzuigkap en oven, een koelvries combinatie en een magnetron. Verder is er veel bergruimte aanwezig.
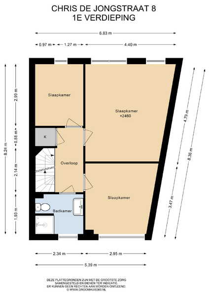
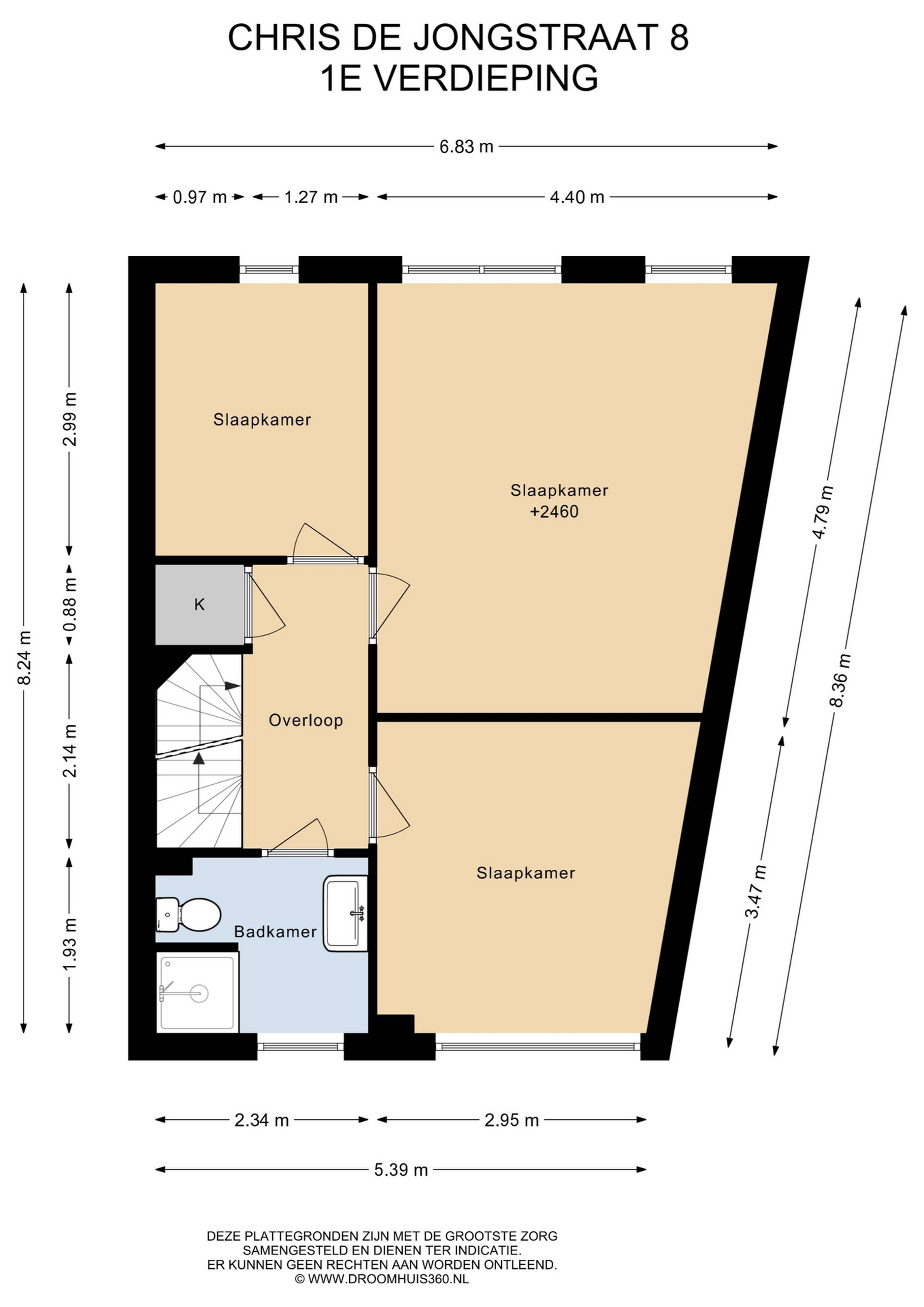
Eerste verdieping:
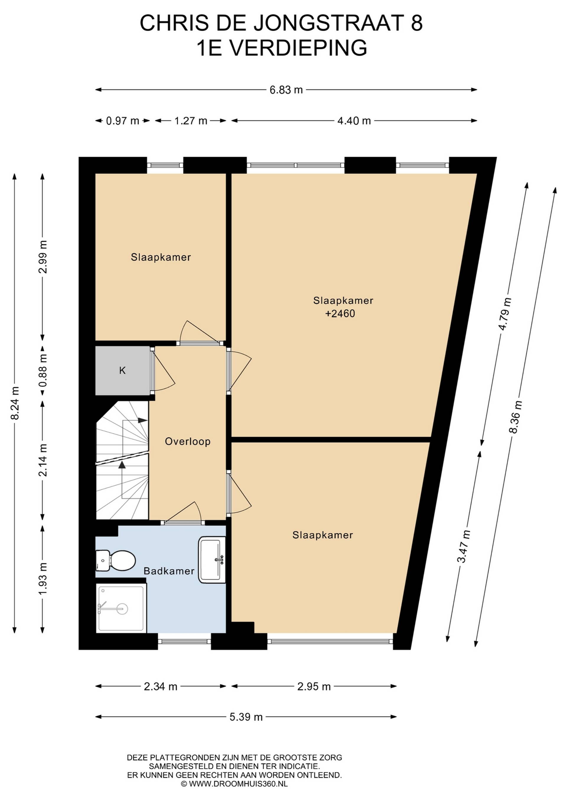
Via de vaste trap komt u op de verdieping. Overloop met toegang tot 3 heerlijk ruime slaapkamers en de badkamer. De badkamer is voorzien van een grote wastafel, een ruime douche en het tweede toilet.
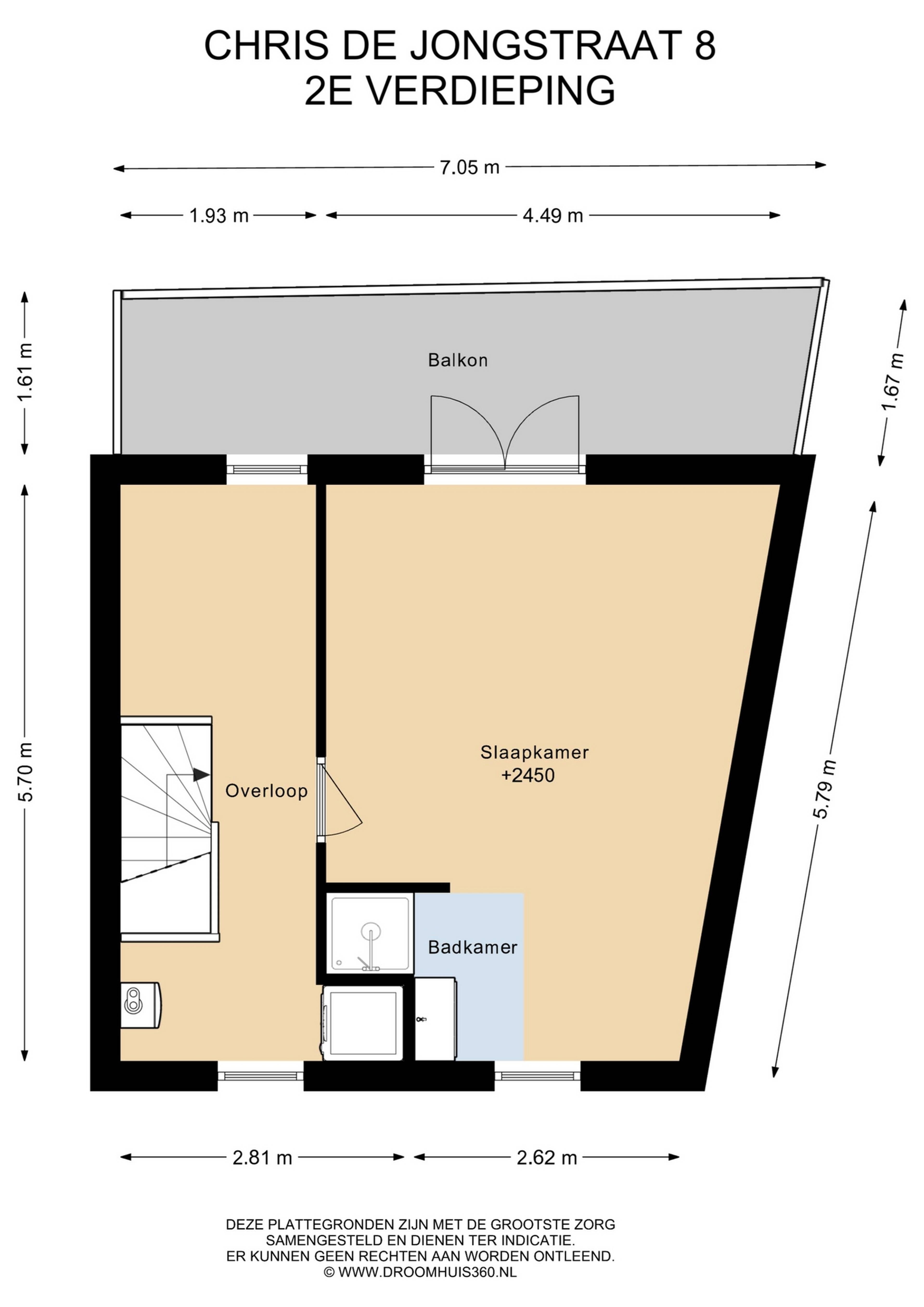
Tweede verdieping:
Ruime overloop met bergkasten, de cv-ketel en toegang tot een zeer grote kamer. Deze slaapkamer is voorzien van een eigen doucheruimte en openslaande deuren naar een ruim terras.
Buiten:
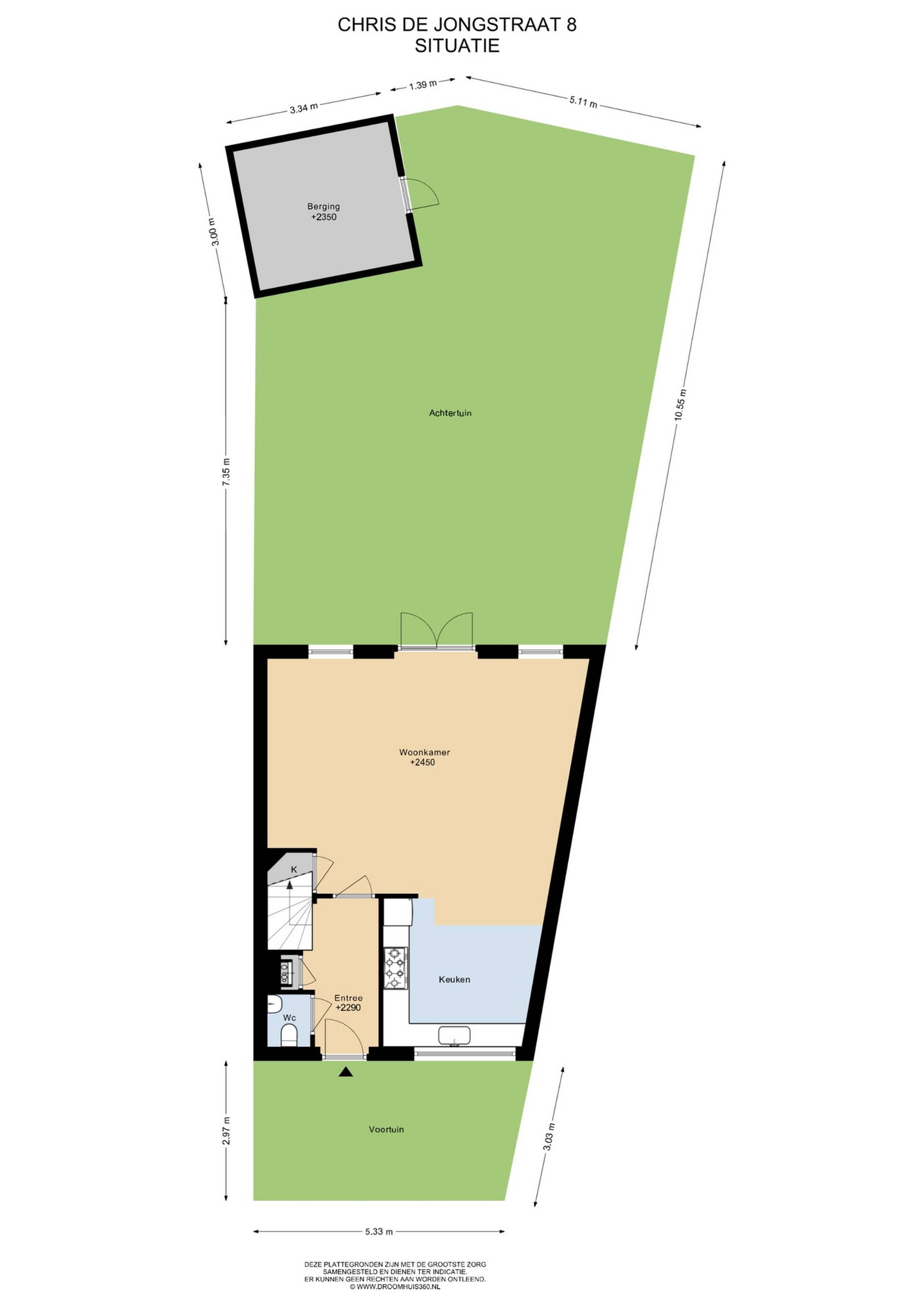
Via de openslaande deuren komt u in de heerlijke achtertuin, gericht op het zuidoosten. De breed weglopende tuin is voorzien van een berging en achterom. Hier schijnt echt de hele dag de zon.
Samengevat:
Met een beetje liefde en aandacht maakt u van deze woning echt uw droomhuis en dat op een toplocatie!
Eigenaren hebben ten behoeve van de verkoop een bouwkundige keuring laten uitvoeren. De uitslag is in een rapport vastgelegd en opvraagbaar bij de makelaar of in te zien tijdens een bezichtiging.
Goed om te weten:
- Bouwjaar 1995
- Gebruiksoppervlakte wonen: 135 m2
- Gebouw gebonden buitenruimte: 11 m2
- Externe bergruimte: 10 m2
- Inhoud woning: 445 m3
- Totaal perceeloppervlak: 164 m2
- Ruime en lichte woning met zonnige achtertuin en berging
- Voorzien van 12 zonnepanelen
- Energielabel A
- Betaald parkeren: Bewonersvergunning ca € 60,- per jaar
- Er is een actieve bewonersvereniging; kosten ca € 40,- per jr, deelname niet verplicht
- Oplevering in overleg
This spacious and bright 5-room single-family home with 2 bathrooms, a large balcony and a lovely sunny backyard with storage room and back entrance is located centrally in Leiden, in a car-free street with a playground.
The historic center of Leiden and everything else you could wish for is within walking or cycling distance. For example, the completely renovated shopping center 'De Luifelbaan' with, among others, a Hema and Albert Heijn XL is less than 300 meters away. The pleasant center of Leiden with all its shops and restaurants, as well as public transport connections, Lammenschans railway station, several schools, various sports facilities such as football, tennis, hockey, a swimming pool and an ice rink are in the immediate vicinity. Via the arterial roads (A4, N11 and A44) you can quickly reach all major cities. It doesn't take long to get to the forest or the beach either, you can take a lovely walk within 20 minutes by car.
Layout:
Ground floor:
Entrance, hallway with the meter cupboard, toilet with sink and access to the living room. The spacious living room has French doors to the garden, a neat wooden floor, a stair cupboard and has a lot of light thanks to the large windows. The L-shaped open kitchen is somewhat dated but functions properly, it is of course equipped with various (built-in) equipment such as a 5-burner hob with extractor hood and oven, a fridge-freezer combination and a microwave. There is also plenty of storage space.
First floor:
You reach the first floor via the staircase. Landing with access to 3 wonderfully spacious bedrooms and the bathroom. The bathroom has a large sink, a spacious shower and the second toilet.
Second floor:
Spacious landing with storage cupboards, the central heating boiler and access to a very large room. This bedroom has a private shower room and patio doors to a spacious terrace.
Outside:
Through the French doors you enter the lovely backyard, oriented to the southeast. The wide garden has a storage room and rear entrance. The sun really shines all day here.
In summary:
With a little love and attention, you can really turn this house into your dream home in a prime location!
Owners have had a structural inspection carried out before the sale. The results are recorded in a report and can be requested from the estate agent or viewed during a viewing.
Good to know:
- Year of construction 1995
- Usable living area: 135 m2
- Building-related outdoor space: 11 m2
- External storage space: 10 m2
- House contents: 445 m3
- Total plot area: 164 m2
- Spacious and bright house with sunny backyard and storage room
- Equipped with 12 solar panels
- Energy label A
- Paid parking: Resident's permit approximately €60 per year
- There is an active residents' association; costs approximately € 40 per year, participation not mandatory
- Delivery in consultation